Avenue South Residence
11 Silat Avenue
S$ 1,800,000
Starting From2
Beds
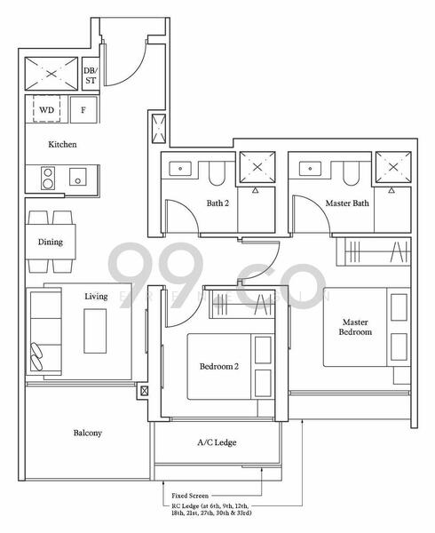
2
Baths
721
sqft (floor)
S$ 2,497
psf (floor)
1.2 km (14 mins) from CC31 Cantonment MRT
About this property
Unblocked Sentosa fireworks and sea view! Doorstep to amenities!
*SINCERE SELLER*
Newly TOP unit! With full condo facilities and great accessibility to upcoming MRT stations such as Keppel and Cantonment MRT stations.
- Unblocked Panoramic Sentosa Fireworks and SeaView!!
- Daily Shuttle Service to Outram Mrt.
- Spacious Living and Dining area.
- Bright and Breezy.
- Best Facing. No Afternoon sun.
- Perfect for singles, young couples and small families!
Schools With 1km
- Radin Mas Primary School
- CHIJ Kellock Primary School
- Zhang De Primary School
Call/WhatsApp Serene @ 9***** for a viewing now!
Amenities
Air-conditioning
Balcony
Cooker hob/hood
High floor
Common facilities
24 hours security
Car park
Clubhouse
Gymnasium room
Affordability
Tell us your monthly income and expenses to see if this home fits your budget.
Avenue South Residence

The 99-years leasehold development is situated along Silat Avenue in District 3 and comprises 2 blocks of apartments with multi-storey and basement carparks in addition to the alterations to existing 5 blocks of conserved 4-storey flats, including shops and childcare centre. Expected to be completed in year 2023, this residential development is the creation of a joint venture of UOL Group, United Industrial Corporation (UIC) and Kheng Leong Company (KLC). The UOL Group has successfully expanded beyond Asia as they venture into the real estate market and is known for using prefabricated, pre-finished volumetric construction in their development, which is expected to be applied as well in this project. The residence is envisioned to be a gateway to the live-work-play lifestyle of the future with its strategic location in the area that will be developed as the Greater Southern Waterfront align with the Urban Redevelopment Authority’s vision to revitalise the CBD. There are plans to restructure the area to have a good mix of commercial and residential activities. Also, being right at the fringe of Singapore’s CBD, the residence is in the center of several interesting places for food and leisure and is easily connected to more than 10 shopping malls within the area of Pasir Panjang, Orchard and MBFC. With this strategic location, it is an attractive proposition for those working in CBD while it can also be a good investment should owners wish to earn additional income as rental demand is high in the area. Avenue South Residence offers ease of commuting as nearby to it is the Tiong Bahru MRT Station. It is also expected by 2025, there will be more MRT stations to commence operations i.e. Cantonment MRT station and Keppel MRT station. By driving, it would take approximately 10 minutes to reach Raffles Place while it is only a 6 mins’ drive to the Central Business District and Orchard Road. There are also plenty of bus stops close to the residence. Mariner’s Corner RestaurantLim Lam Hong ConfectioneryTok Panjang Peranakan CaféBurnt Ends SMU School of Information SystemCHIJ Kellock (Primary)CHIJ St Theresa’s ConventCrescent Girls’ SchoolCantonment Primary School Singapore General HospitalNational Heart Centre Singapore Tiong Bahru PlazaConcord Shopping Cenre The development features 2 stunning high-rise towers consisting of 56 storeys that overlook the core central business District of Singapore. There are mainly 5 types of units with different number of bedrooms being the main distinction, including a penthouse. Unit size ranges from 474 square feet to as large as 1,668 square feet. Project Name: Avenue South ResidenceType: CondominiumDistrict: D03 Alexandra / CommonwealthConfiguration: 1,074 residential unitsSite area: 245,972 square foot Unit types for Avenue South Residence:1 bedroom – 474 - 527 square feet2 bedrooms – 646 – 807 square feet3 bedrooms – 936 – 1,109 square feet4 bedrooms – 1,496 square feetPenthouse – 883 – 1,668 square feet The following projects are by the same developer as Avenue South Residence:The Clement CanopyPrincipal GardenAmber 45Bortanique @ BartleySeventy St Patrick’s The following developments are in the same neighbourhood as Avenue South Residence:Stirling ResidencesArtraAvenue South ResidenceQueens PeakThe CrestMargaret Ville
View project details














