Whistler Grand
109 West Coast Vale
S$ 4,000 /mo
Starting From2
Beds
1
Bath
603
sqft (floor)
Ready to move in Condominium
About this property
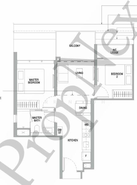
2 Bedroom - Sea and Reservoir View Unit for Rental near Je/Clementi
Near Nus,Qifa, Nan Hua Pri
2 Bedroom, 1 Bathroom unit with a peaceful Pandan Reservoir-facing and Sea view. Perfect for tenants who want tranquility and a Home Oasis.
Key Highlights
• Quiet reservoir-facing orientation with no road noise
• Functional 2 Bedroom layout with well-planned living and dining space
• Full condo facilities including pools, gym, clubhouse, tennis court and co-working spaces
• Excellent connectivity via Jurong East MRT, Clementi MRT, major bus routes and West Coast Highway/AYE
• Close to Jurong Lake District, NUS, NUH, One-North and International Business Park
• Wide food options at West Coast Plaza, Clementi Mall, 3 major Food Centres in West coast and 2 In Clementi and nearby eateries
• Daily conveniences including Sheng Siong, NTUC in West Coast and Clementi
• Within proximity to Nan Hua Primary, Qifa Primary, Commonwealth Secondary, Japanese School and NUS
• Near West Coast Park, Pandan Reservoir and cycling/running routes to Rail Corridor
• Ideal for professionals, couples or small families seeking West-side convenience with a calm living environment
Amenities
Air conditioner
Balcony
Common facilities
Aircon facilities
Barbeque pits
Car park
Children's playground
Whistler Grand

Whistler Grand is a 99-year leasehold luxury condominium located along West Coast Vale in District 5, 126752, Singapore. The project comprises two 36-storey towers, hosting 716 residential suites. Whistler Grand is currently in development by City Development Limited (CDL), with an expected completion date in 2022. Units at Whistler Grand come in 1 to 5-bedroom layouts, with built-up areas of 441 - 2,422 sqft, some of which feature dual key systems. Founded in Singapore in 1963, City Development Limited (CDL) is a large multinational real estate developer with projects spanning 29 countries and cities worldwide. Their portfolio includes a long list of award-winning residential, commercial and hospitality projects ranging from luxury executive condominiums to The Millenium & Copthorne hotels found in key cities worldwide. Whistler Grand is located in Clementi, near the West Coast. The residence overlooks Pandan Reservoir to the west, one of Singapore’s largest service reservoirs and a popular fishing spot and jogging trail. The area is surrounded by business centres, including the international business district and Pantech business hub, as well as well-known college campuses such as Singapore Polytechnic and the National University of Singapore (NUS) campus. As such, Whistler Grand is a highly attractive option for business professionals, families, and other residents studying or working in the neighbourhood. The abundance of parks and other outdoors locations further transforms Whistler Grand into a relaxing and delightful place to stay. Residents staying at Whistler Grand can expect to be surrounded by cafes, eateries, and an array of other services and amenities, whilst living within a peaceful residential suburb. Additionally, Whistler Grand offers a variety of world-class facilities, including swimming pools, a spa lagoon, gymnasium, community gardens, tennis courts, botanical patio, nightclub, and sky lounge. Whistler Grand is located around 3 kilometres away from Clementi MRT Station (East West Line), equivalent to about an 8-minute drive. Bus stops are located along West Coast Vale, right outside the building, with direct links to nearby train stations. Whistler Grand’s proximity to the Ayer Rajah Expressway (AYE) and other major roads also makes travel highly convenient. Residents driving to the international business district can expect to arrive in less than 10 minutes via Jurong Town Hall Road. Alternatively, driving to Orchard Road shopping district will take approximately 25 minutes via the AYE. Faber Valley Pub & RestaurantVishal’s RestaurantNobiro Japanese Restaurant & Sake Bar Commonwealth Secondary SchoolNan Hua Primary SchoolSingapore Polytechnic Ng Teng Fong General HospitalFaber Clinic & SurgeryNEWest Medical Clementi MallWest Coast PlazaJem Whistler Grand is a leasehold condominium project spanning two 36-storey towers and 716 residential units. The site covers an area of approximately 211,000 sqft. Units are available in all sorts of sizes from 1-bedroom and up, with 3-bedroom and 4-bedroom units also offering dual key security. Current estimated sales prices fall between approximately S$ 600,000 to S$ 3,545,000, depending on unit layout and size. Project Name: Whistler GrandType: 99-year Leasehold CondominiumDistrict: 05 Unit Types:1-bedroom (441 - 614 sqft)2-bedroom (603 - 850 sqft)3-bedroom (958 - 1,173 sqft)4-bedroom (1,270 - 1,464 sqft)5-bedroom (1,442 sqft)5-bedroom penthouse (2,217 - 2,422 sqft) The following projects are by the same developer as Whistler Grand:Piermont GrandHaus on HandyAmber ParkSouth Beach ResidencesThe Tapestry The following developments are in the same neighbourhood as Whistler Grand:Parc ClematisParc RivieraKent Ridge Hill ResidencesWhistler GrandThe RochesterOne-North Residences
View project details



































