Waterbay
45 Edgefield Plains
S$ 4,499 /mo
Negotiable3
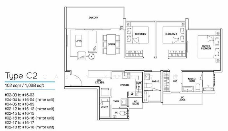
Beds
2
Baths
1,098
sqft (floor)
430 m (5 mins) from PE1 Cove LRT
Available from 1 Feb 2026
About this property
3 Bed 2 Bath Condo in Punggol
- partially furnished with white goods
- with condo facilities (swimming pool, gym, tennis court, security, bbq pit)
- mins walk to Cove LRT and Punggol MRT
Groceries and Mall
- Cold Storage
- Sheng Siong
- NTUC Fairprice
- Waterway Point
Contact Casey for your exclusive viewing
Common facilities
24 hours security
Swimming pool
Waterbay

Waterbay is a leasehold executive condominium development that is located at Edge Field Plains in District 19. It is an executive condominium project that was completed recently. The project was completed in 2016 with a total of 383 units available. The executive condominium development is located close to public transportation that allows residents to move easily from one place to another from the executive condominium. There are many shops and amenities close to the executive condominium development which would ease the process for residents and they do not need to go far to find what they need as it is built in a strategic place. The project was developed by Qingjian Realty Pte Ltd, a medium-scale property development company held privately, and it has built about 10 property projects in Singapore. - Waterbay is a beautiful executive condominium development that has many charms to it. There are various facilities that residents can enjoy while living in Waterbay. Residents of Waterbay would not have to travel far to get their basic necessities as everything is close within their reach. Residents can enjoy the Cascading Waterfall, tennis court, garden walk, sun lounge, 50m lap pool, floating haus, pool lounge, children’s lounge, reading pavilion, poolside pavilion, hydro gym, rain shower, spa lounge, club house, BBQ, children playhouse, outdoor fitness place. There are also well established shops and eateries in the surrounding area. There is a number of public transportation close to Waterbay that residents can make use of. The closest MRT station to the executive condominium is the Punggol MRT. The closest bus stops are located at Punggol Secondary School, Meridian LRT station, Oasis Station and Kadaloor Station. For those with vehicles, the shopping district located at Orchard Road can be easily accessed via the Kallang Paya Lebar Expressway, Central Expressway and Nicoll Hwy in 30 to 35 minutes. Old Chang Kee @ SPC PunggolPizza Hut Delivery – Punggol PlazaLao Huo Tang – Waterway PointGenki Sushi – Waterway PointDin Tai Fung Waterway Point Branch Edge Field Primary SchoolPunggol Secondary SchoolOasis Primary SchoolPunggol View Primary SchoolGreendale Secondary School Lifeline Punggol Medical Clinic Pte LtdVita Care Family Clinic ( Punggol Central )Avenue K Clinic @ PunggolMutual Healthcare Medical Clinic Fair Price Punggol Oasis TerracesGiant Express Edgefield PlainsSri Exchange & Magazine ClubAng Mo SupermarketFortune Supermarket Waterbay is an executive condominium development that is made up of a total of 329 units in 34-storey high buildings. There is 1 type of unit available with various layouts that residents can browse through. The size for the unit is 1,345 square feet. The layouts for the units in Waterbay aim to provide residents with homes that is comfortable for working adults, couples or families looking to own a spacious and manageable executive condominium unit. Project Name: WaterbayType: Executive condominiumDistrict: 19Configuration: 383 residential units Unit Types:4 bedrooms (1,345 sqft) The following developments are projects developed by the same developer as Waterbay:BellewatersEcopolitanJade ScapeLe Quest The following developments are in the same neighborhood as Waterbay:The Florence ResidencesAffinity At SerangoonRiverfront ResidencesLa FiestaKingsford WaterbaySengkang Grand Residences
View project details










