Treasure Crest
52 Anchorvale Crescent
S$ 5,200 /mo
Negotiable3
Beds
3
Baths
1,249
sqft (floor)
180 m (2 mins) from SW1 Cheng Lim LRT
Ready to move in Condominium
About this property
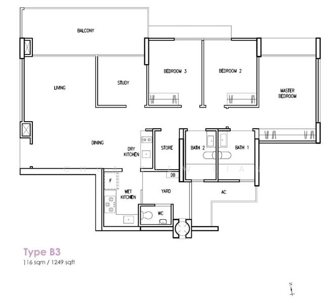
Family-friendly 3 plus study with yard ready for move in
This well-maintained 3-bedroom + study unit with a private yard offers the perfect blend of space, flexibility, and convenience — especially ideal for families looking to bring their own furniture and make the space truly their own.
- Well-planned 3-bedroom + study configuration with ample natural light and ventilation throughout
- A rare empty unit — ideal for tenants who prefer to bring in their own furnishings and personalize the space from day one
- The unit has been carefully kept in excellent shape by the owner, offering a clean and comfortable environment from the moment you move in
- A modern EC with full condo facilities. Gated and secure – ideal for families with children.
- Just 3-5 mins walk to Cheng Lim LRT (1 stop to Sengkang MRT / Compass One)
- Easy access to Anchorvale Village, Seletar Mall, Waterway Point, and Sengkang General Hospital
- Surrounded by parks and greenery – perfect for walks, cycling, and weekend family time
- Schools Nearby (Within 1km): Springdale Pri Sch, Nan Chiau Pri Sch (Popular Choice!), Compassvale Pri Sch, Punggol Green Pri Sch
- Multiple childcare centres and preschools in the vicinity
- Sheng Siong, U Stars Supermarket, Prime, and Cold Storage – all within easy reach
Available Immediately!
Contact Now to Arrange a Viewing!
Amenities
Air-conditioning
Balcony
Cooker hob/hood
Swimming pool view
Common facilities
24 hours security
Car park
Drop off point
Lift lobby
Treasure Crest

Treasure Crest EC is a beautifully designed and a unique development located in 50 Anchorvale Crescent, District 19, Singapore. The construction of this development is done by a famous development company known as the Sim Lian (Anchorvale) Pte Ltd and the expected date for the completion of this development is 2019. Treasure Crest EC offers great facilities and features to its residents. There is a lovely barbecue area in the development where the residents can spend some unforgettable time with their family and friends. Furthermore, the residents of the development can also enjoy a swimming pool, a tennis court and a gymnasium facility in the development. The development offers complete car parking facility for its residents. Most importantly, the development is equipped with latest security gadgets and provides 24 hour security to its residents to make sure that the residents are protected from any kind of external threats while they are in the development. Treasure Crest EC was developed strategically keeping in mind the importance of accessibility of the location. The residents do not have to worry about moving to and from the location even if they do not have their own vehicles. Public transportation is also available in the locality, making the area of the development even more attractive. The residents of the development can use the NE16 Sengkang MRT Station, NE15 Buangkok MRT Station and NE17 Punggol MRT Station to easily move to and from the location. The development is easily accessible and is connected via major roads and highways of the area from where the residents can reach any place in the city easily just by driving for a few minutes. Treasure Crest EC is located in a great area and is surrounded by a variety of amenities. The residents do not have to worry about anything in the area because everything is easily accessible in the locality. There are many great educational institutions in the area providing top class education services to the residents of the area. The residents do not have to worry about the education of their children. Few of the famous educational institutions in the area areNan Chiau High SchoolAnchor Green Primary SchoolNan Chiau Primary School It is considered to be a great place for those who love to do shopping because there are many great shopping spots in the area from where the residents can shop for almost anything they want. Few of the famous shopping spots near the development areSheng Siong Supermarket Pte LtdU Stars Supermarket @ 330Prime SupermarketRainbow Supermart Many great food points are also available in the area where the residents can enjoy some fine quality dining facility with their family and friends. Few of the great food points near the development areChef RecipeMcDonald�sPastamania � SengKang Sports & Recreation CentreLegend Cafe Treasure Crest EC is a beautiful development and the buyers have the option to select from different designs of the units. The built up area of the units in the development ranges between 958sf- 1345sf.Project Name: Treasure Crest ECDistrict: 19Configuration: 504 unitsThe buyers can select from the following designs: 3 bedrooms unit4 bedrooms unit The owners also have the option to rent out the units, making the development attractive from investment point of view as well. The rent of the units in the development increases accordingly to the selection of the design of the unit. The development company of the Treasure Crest EC has developed many famous projects in the country and has always focused on giving value back to the stakeholders. The development company made sure that the Treasure Crest EC becomes a landmark for future developments and attracts people from all over the city. Few of the great projects developed by the same developer are as followsHillion ResidencesWandervale EC As discussed earlier, the Treasure Crest EC development is situated in a great area and is surrounded by many beautiful developments which are making the area attractive and charming. Few of the famous developments in the area areBellewatersWatervaleRivercove Residences ECH2O ResidencesLush Acres
View project details