Sophia Hills
13 Mount Sophia
S$ 2,500 /mo
NegotiableMaster Room
1 tenant
max (female)
220
sqft (floor)
420 m (5 mins) from CC1/NS24/NE6 Dhoby Ghaut MRT
450 m (5 mins) from DT21 Bencoolen MRT
Ready to move in Condominium
About this property
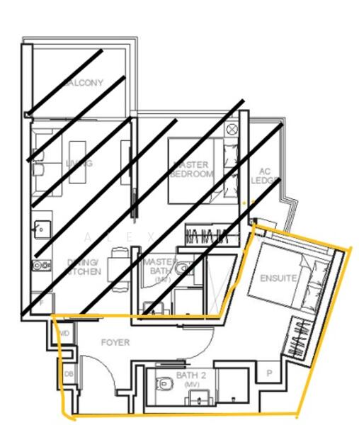
Beautiful and Serene Ensuite Room for Rent, Dual Key Unit
- Just minutes’ walk to Plaza Singapura and Dhoby Ghaut MRT
- Serene greenery view offering privacy and a tranquil environment
- Complimentary shuttle bus service for residents, running to Bencoolen MRT/City Hall MRT areas (often running every 30 mins interval).
Fully furnished with:
- Single bed
- Omnidesk Table
- Computer Monitor
- Abundent built-in storage for clothes, luggage, and personal items
- Day & Night curtains
- Bar Fridge
- Attached bathroom
- Washer (Shared with another single in the other unit)
- Shared entrance foyer with 2 private doors leading to individual units
Rental Includes
- High speed broadband
- Utilities
Amenities
Air conditioner
Swimming pool view
Common facilities
24 hours security
Adult fitness stations
Barbeque pits
Drop off point
Sophia Hills

Sophia HillsSophia Hills, is a very well-designed development built in a historic residential enclave in the heart of Singapore. Its 493 units are spread across 12 low and medium rise blocks and the development also features 3 fully restored conserved buildings that it will use as a restaurant, childcare centre and clubhouse. In terms of its positions, Sophia Hills is ideal, with a Cineplex, shopping malls, wide choice of restaurants and 3 MRT lines (Circle, North East and North South) all within very easy walking distance. Commuters will be able to get into the CBD within 20 minutes or less and it’s within District 9.Hoi Hup Sunway Mount Sophia Pte Ltd is a joint venture amongst Hoi Hup Realty Pte Ltd, Sunway Developments Pte Ltd and SC Wong Holdings Pte Ltd.Sophia Hills – Unique Selling PointsAccessibility and connectivity are the two key words when it comes to Sophia Hills, with many of the island’s greatest attractions within walking distance, as well as a very wide variety of retail, entertainment and dining options. Its proximity to 3 MRT lines, plus the CBD also means it is very handy for commuters. The development itself is very impressive as well however, as is its immediate environment sat up on a quiet residential and historic enclave, something that the design of Sophia Hills makes the most of.Sophia Hills – AccessibilitySophia Hills is very centrally and therefore conveniently located. Plaza Singapura is just over 5 minutes’ walk away with over 300 retail outlets including a Cold Storage, and the other malls along Orchard Road an easy walk or short bus ride away. The Cathay Cineplex is 300 yards from the development, while Little India is a 10 minute walk. The nearest MRT to Sophia Hills is Dhoby Ghaut on the Circle, North East and North South Lines, giving quick and easy access to all areas of the island. Raffles Place is two stops away, Clarke Quay just one.Sophia Hills - Amenities & AttractionsDining near Sophia Hills:The ClanThe Cathay RestaurantSaveurSalvo’sShopping near Sophia Hills:Plaza SingapuraOrchard RoadSchools and Education near Sophia Hills:St Margaret’s Primary SchoolSchool of the ArtsSMUSophia Hills - Project informationSophia Hills sits on Mount Sophia, a hill in a residential enclave in the Rocher area of central Singapore. It is a large, expansive development, and consists of 12 blocks (1 x 7 storey block, 1 x 5 storey block, 4 x 6 storey blocks and 6 x 4 storey blocks). One interesting and commendable feature of the Sophia Hills development is that 3 conserved buildings are being restored in order to utilise them as a clubhouse, a restaurant and childcare centre. The number of different blocks leads to a good variety in the types of units available. 2 bed options are standard, with study and as dual key, while the 3 bed units, as well as the standard offering, also come with a utility room or a utility room and private lift lobby.Project Name: Sophia HillsAddress: Mount SophiaSite area: Approx. 255,771 sqftTenure: 99 yearsDistrict: 9Configuration: 493 unitsUnit types:16 x 1-bedroom units (463 – 517 sqft)88 x 1-bedroom + study units (560 sqft)66 x 2-bedroom units (570 – 721 sqft)6 x 2-bedroom + study units (721 sqft)228 x 2-bedroom Dual Key units (689 – 753 sqft)33 x 3-bedroom units (850 – 980 sqft)40 x 3-bedroom + utility units (1,023 – 1,130 sqft)6 x 3-bedroom + utility + private lobby units (1,313 sqft)10 x 4-bedroom + utility +private lobby units (1,539 sqft)Parking lots:493 normal lots4 handicap lots9 kindergarten lots8 restaurant lotsExpected TOP: August 2018Expected legal completion: August 2021Sophia Hills - Historical DataAs of June 2016, the caveated transactions for Sophia Hills stood at 81. The recorded transaction prices for those sales ranged from $960K to $3M, with around 84 percent of them coming in at $1.5M or below, but just 2 under the $1M mark. The median prices for these transactions work out at $2,287 for the 1 bed units, $2,240 psf for the standard 2 bedders (the dual key 2 bed units have a median psf of $1,884) while the largest units in Sophia Hills, the 4 bedroom + utility + private lift lobby are at $1,946 psf.Sophia Hills - Related ProjectsThe following project is by the same developer as Sophia Hills:Hundred Palms ResidenceSophia Hills - Nearby ProjectsThe following developments are in the same neighbourhood as Sophia Hills:Liv on WilkieParc Sophia8 @ Mount SophiaEquity Heights
View project details
















