Pullman Residences
18 Dunearn Road
S$ 9,500 /mo
Negotiable3
Beds
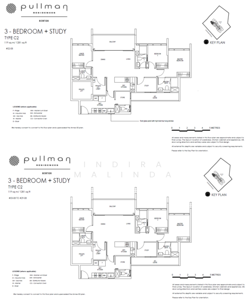
3
Baths
1,281
sqft
170 m (2 mins) from DT11/NS21 Newton MRT
Ready to move in Condominium
About this property
Spacious 3 Bedroom Condominium for Rental at 18 Dunearn Road
Amenities
Air conditioner
Balcony
Barbeque pavilion
Barbeque pits
Common facilities
24 hours security
Barbeque pits
Basketball court
Drop off point
Pullman Residences

Pullman Residences is a luxury condominium located at 18 Dunearn Road, within the prestigious Newton/Novena enclave of District 11, Singapore. Completed in 2025 by EL Development (Horizon) Pte Ltd, a subsidiary of Evan Lim & Co. Pte Ltd, the project comprises 340 residential units housed within a striking 30-storey tower. This freehold offers a comprehensive range of unit types, spanning one - to four-bedroom apartments and exclusive penthouses, catering to both owner-occupiers and high-end urban dwellers. As Singapore’s first Pullman-branded residential development, Pullman Residences introduces hotel-inspired living into a private residential setting, with curated services and management standards associated with the Pullman luxury hospitality brand. Pullman Residences distinguishes itself as a branded freehold residence in District 11, a segment with limited supply and strong long-term desirability. Unlike conventional condominiums, the development integrates hotel-style living services, including concierge support, estate management, and premium maintenance standards, all overseen under the Pullman brand framework. Architecturally, the development stands out for its louvred vertical façade, which enhances natural ventilation, shading, and visual distinction. Residential units are elevated approximately 17 metres above ground, improving privacy while offering clearer views of the city and greenery. Its strategic positioning between Newton and Novena, combined with freehold tenure and branding comparable to Ritz-Carlton or W Residences, yet at a more accessible entry point, positions Pullman Residences in a niche category appealing to both luxury homeowners and long-term investors. The Pullman Residences is very attractive for city living due to its excellent transport connectivity. The Newton MRT Station (NS21/DT11) is only a short walk away, serving as an interchange for the North-South and Downtown lines, providing direct rail access to Orchard Road, Marina Bay, and the Central Business District (CBD). The Novena MRT Station (NS20) is also close by, connecting to the northern and medical areas. If you prefer to drive, you will have instant access to Dunearn Road, Newton Road, and Bukit Timah Road, allowing you to reach anywhere on the island quickly. It’s easy to be on Orchard Road in minutes. The area surrounding the development has established itself as a mature, amenity-rich community, with notable landmarks such as Newton Food Centre, Novena's commercial cluster, and numerous other retail and lifestyle hubs. The Dunearn Road location of Pullman Residences, which covers 95,443 sq ft, has ample open land, allowing construction to reach 30 floors. The tall building was designed to enhance views from the top and keep the building’s footprint small. Pullman Residences Freehold Condominium 11 340 Pullman Residences is thoughtfully planned to deliver a complete luxury living environment, with facilities distributed to support both leisure and wellness needs. Residents have access to: Grand concierge lobby Party lawn & garden courtyard Kids’ playground Tennis court with half a basketball court 50m lap pool, jacuzzi, kids’ pool & aqua gym Pool deck, dining pavilion with bbq Gym, club lounge This service-led model enhances daily convenience while maintaining exclusivity and consistency in upkeep. Pullman Residences sits within a school catchment, with several primary schools located nearby, including: Anglo-Chinese School (Primary) Anglo-Chinese School (Junior) Joseph’s Institution Junior These institutions strengthen the project’s appeal for owner-occupiers, prioritising long-term family planning and educational continuity. The Newton and Novena precincts offer a diverse dining landscape, ranging from iconic local eateries to refined international restaurants: Newton Food Centre Tentsuru KUBES Indian Restobar The proximity to Orchard and Novena further expands dining options across casual, mid-range, and fine-dining formats. Healthcare accessibility is a significant advantage of Pullman Residences’ location. The development sits close to: Nihon Premium Clinic Mount Elizabeth Novena Hospital Novena Medical Centre This proximity provides reassurance for families, professionals, and retirees alike. For day-to-day grocery needs and household essentials, residents benefit from a range of well-established supermarkets located nearby: FairPrice Square 2 Sol Mart - Square 2 Cold Storage These supermarkets offer a comprehensive range of fresh produce, imported goods, and daily necessities, enabling residents to meet everyday needs conveniently without having to travel far. Regarding the buildings' layout, they are designed to take advantage of the site's elevated residential areas and to provide private, functional spaces for the building's residents. Vertical louvres and exterior design elements will enhance the building's appearance and overall environmental performance. One Bedroom: 463 sqft (104 units) Two Bedroom: 667 sqft (112 units) Three Bedroom: 1,163 sqft (56 units) Four Bedroom + Study: 1,281 sqft (28 units) Four Bedroom: 1,378-1,389 sqft (28 units) Collectively, these attributes position Pullman Residences as a tightly planned, freehold city-fringe development that balances architectural presence with practical, high-rise urban living. Pullman Residences is developed by EL Development (Horizon) Pte Ltd, a subsidiary of the established builder Evan Lim & Co. Pte Ltd. The group is recognised for its focus on quality construction, strong locations, and design-led developments such as Rhapsody on Mount Elizabeth. Other residential developments by the same developers: Parc Centennial Iluminaire on Devonshire Symphony Suites Collectively reinforcing the developer’s presence across both city-fringe and suburban markets. Pullman Residences is surrounded by a cluster of established residential developments that define the Newton/Novena landscape: Newton One 26 Newton Suites @ Newton L’VIV Each contributes to the area’s reputation as a high-demand residential zone with strong rental and resale appeal. Pullman Residences is an attractive option for residents and investors alike, thanks to its freehold status and its excellent location in District 11 (City Fringe). Pullman Residences offers hotel-style services and is close to top-quality schools and hospitals, as well as excellent transport options. With these features combined, Pullman Residences would make a wonderful home or long-term property investment. With limited new freehold offerings in this tightly held district, Pullman Residences offers a premium level of quality in its architecture and future-readiness. Explore the latest sales and rental listings for Pullman Residences to find units that match your lifestyle and investment needs.
View project details






















