Orchard Scotts
11 Anthony Road
S$ 9,300 /mo
Starting From3
Beds
2
Baths
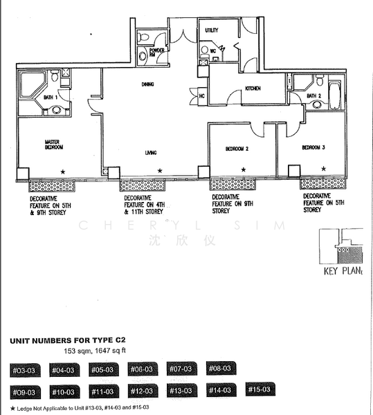
1,647
sqft (floor)
840 m (10 mins) from NS21/DT11 Newton MRT
Available from 22 Dec 2025
About this property
Spacious 3 bedroom in the heart of Orchard
- 1,647sqft unit
- 3 Bedroom, 2 Bathroom
- NO Balcony for all units, fully useable space
- Full condo facilities including 60m lap pool, tennis court and basket ball court
*NOTE: rental pricing is subject to GST
*No agent fees. View all available units at the same time!
Schools:
- 1km to ACS Primary, ACS Jr, St Margaret's Primary
Accessibility:
- American Club and Tanglin Club | 7mins drive
Mall & Supermarts:
- Scotts Square mall, Fairprice Finest | 9mins walk
- Paragon mall | 12mins walk
Prime development within the serenity of Anthony Road and Cairnhill Road. Pls reach out to arrange for a viewing
Amenities
Bed
Cooker hob/hood
Dining room furniture
Dryer
Common facilities
24 hours security
Barbeque pits
Basement car park
Basketball court
Orchard Scotts

Virtually everybody would love to live a luxurious lifestyle in a prestigious neighborhood. Orchard Scotts @ Orchard gives such luxury to its occupants. Orchard Scotts is a 99-years leasehold development located at 11 - 16 Anthony Road in District 09, Singapore. Known for its magnificent structure, captivating architecture and its alluring greenery, Orchard Scotts stands out among all other condos in its vicinity. From the interior design of its apartments to the broken wall characteristic of the pool design, that shows a high description of art and readiness to give maximum satisfaction to the residents. The building which stands 20 storey high and comprises of 387 units, was developed by Far East Development in 2007. Ever since it's completion it has been known to be one of the most luxurious condominium in Singapore, occupied by high class individuals and families. Anthony Road, Clemenceau Avenue North, and Peck Hay Road, stand as boundaries surrounding Orchard Scotts which is few minutes� walk from Newton train station and numerous bus services. It is also a walking distance to notable designer stores such as paragon and Ngee Ann City. Residents who are mobile can drive to business hub which is about 10 minutes� drive through Orchard road. Some other closest train stations to the condominium are:Orchard MRT Station(1.02 km )Somerset MRT Station (1.07 km) from the condominium Orchard Scotts is fully equipped with contemporary facilities, which are there to give you an enriched everyday experience. Some if these facilities are 24 hours security which help in keeping the vicinity safe, basement car park, basketball practice court for basketball practices and exercise which help to improve your cardiovascular health, BBQ pits which provides grilled meat during outdoor relaxation and party, fitness station, Jacuzzi to give you a warm soak after a stressful working activity aiding relaxation, gymnasium, outdoor dining area, playground for kids, sauna, spa pool, swimming pool which helps in physiotherapy and health improvement, and tennis courts. The vicinity also offers natural relaxation via the scenery of its flamboyant greenery. These facilities, makes the condominium a family friendly location to live. Being situated in a very vibrant area, Orchard Scotts stand in close proximity to various amenities ranging from medical centre, social Centre, educational and religious Centre. One major medical centre which is a walking distance from the condominium is the Mount Elizabeth Hospital, which are quick to respond to emergency calls and are efficient in their services. Some other hub and Centre which provide relaxation, entertainment and world-class shopping includes Premier Club, Tanglin Club, the Grand Hyatt, The Sheraton Towers, The Goodwood Park, Marriott Hotel amongst many others, which makes the vicinity to be more exciting and relaxing to reside. If you love to explore the food delicacies in which Singapore offers, Orchard Scotts and its environment present the best, ranging from affordable steaks to casual Western delicacies. Some of the notable food havens areNewton Hawker CentreAntoinette PatisserieAkashi Japanese RestaurantAkanoya RobatayakiBistro Du BinNo doubt, your taste buds will be served with best eateries of Singapore. Education in this area is of high standard, knowing that it is a luxurious environment with high class residents. Some prestigious schools within walking and driving distance from Orchards Scotts are:Anglo-Chinese School (Junior) (closest to the condominium with 0.2 km)Anglo-Chinese Junior School (Newton) (0.31 km from the condominium)Chatsworth International School - Orchard Campus (0.81 km from the building)All these schools listed are of international standards. Orchard Scotts is a 99-year leasehold condominium, which is 20 storeys high, consisting of 387 units. It constitutes different sizes of apartments such as 2-bedroom apartments which has a size of 958-1087 sqft, 3-bedroom apartments which measures 1,109 - 2,174 sqft and the 4-bedroom apartment which is the largest, measuring 2,228 - 3,369 sqft. This apartments are built with facilities to give it's occupants a luxurious level of satisfaction.Project Name: Orchard ScottsDistrict: 9Configuration: 387 units Unit Types: 2 Bedroom units (958-1087 sqft)3-bedroom units (1,109 - 2,174 sqft)4-bedroom units (2,228 - 3,369 sqft) Some other condominium those are close to Orchard Scotts areLeedon Residences111 Emerald Hill1919283 Studio336 River Valley
View project details