JadeScape
314 Shunfu Road
S$ 4,300 /mo
Negotiable2
Beds
1
Bath
646
sqft
450 m (5 mins) from CC16 Marymount MRT
810 m (10 mins) from TE8 Upper Thomson MRT
Available from 28 Apr 2026
About this property
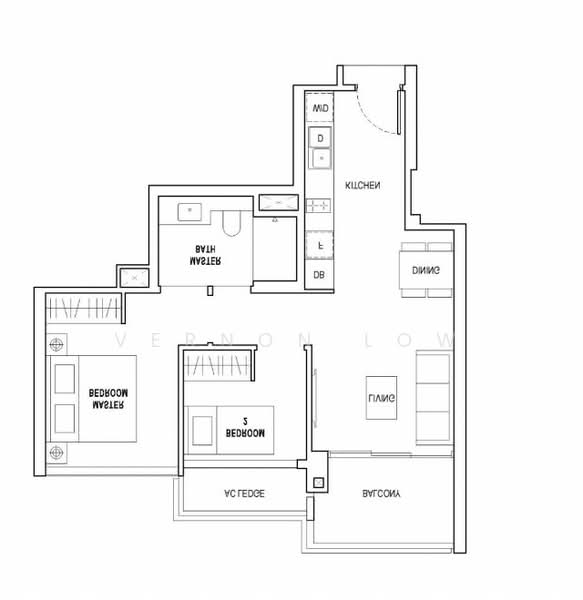
Cosy Unit, High Floor, Must View
Available 1st June
◆ 2 Bedroom 1 Bath For Rent
◆ High Floor
◆ Able to place 4 seater dining table
◆ Good distance between sofa and TV wall
◆ Common bedroom can fit single bed, comes with built in wadrobe.
◆ Master Bedroom can fit in queen size bed and comes with attached bathroom
◆ 2 door access bathroom. Can be access from master and living room.
◆ Unblock view
◆ Can place outdoor furniture in the balcony.
◆ Full Length window, allow plenty of lightings into the home
◆ No west sun
Fittings
◆ Comes with oven, washer dryer, induction stove, fridge, dish washer
◆ Comes with curtains and lightings installed
About Jadescape
◆ Comes with full condo facilities such as gym, 2 x 50 m lap pool, jet pool, function rooms, 24 hours security, tennis courts, kid pool, adventure playgrounds, karaoke room, grill pits, virtual golf
Location
◆ Mins walk from MacRitchie Nature Reserves, short 4 mins drive from Bishan-Ang Mo Kio Park
◆ 5 mins walk from Marymount MRT, 8 mins walk from Upper Thomson MRT
◆ Thomson Plaza, ShunFu Market, Upper Thomson Road all nearby. Plenty of food options and groceries shopping choices.
◆ Within 1 km of Catholic High School
◆ Within 2 km of Ai Tong Primary, Ang Mo Kio Primary, Teck Ghee Primary, Kuo Chuan Presbyerian, Marymount Convent School, Kheng Cheng School, Townsville Primary
Contact 9***** Vernon for more details!
Amenities
Air-conditioning
Balcony
Cooker hob/hood
Dryer
Common facilities
24 hours security
Clubhouse
Fitness corner
Gymnasium room
JadeScape

JadeScape is a large-scale private condominium development located along Shunfu Road within District 20 (Ang Mo Kio/Bishan/Thomson), a well-established residential corridor in central Singapore. The development occupies a substantial land parcel near Marymount and Upper Thomson, offering residents a balance between city accessibility and a quieter, low-rise neighbourhood setting. Developed by Qingjian Realty (Marymount) Pte Ltd, JadeScape was completed in 2023 as a 99-year leasehold project. It comprises 1,206 units spread across multiple residential blocks, making it one of the larger contemporary condominium developments in the district. JadeScape offers a wide range of unit configurations, from compact one-bedroom apartments to larger family-sized units and penthouses. The development is positioned towards owner-occupiers and families seeking a modern residential environment within a mature estate, rather than a purely investor-led or lifestyle-centric proposition. One of JadeScape’s key strengths lies in its scale and comprehensiveness, offering an extensive range of facilities rarely found within a single residential development in District 20. The project is designed to operate as a self-contained residential community serving residents at different life stages. Another defining feature is its proximity to two MRT lines, the Circle Line and the Thomson-East Coast Line, which enhances commuting flexibility across different parts of Singapore. This dual-line accessibility strengthens its appeal for households with varied commuting patterns. JadeScape incorporates smart-home features, including digital locks and bright lighting, in select units, reflecting the developer’s emphasis on contemporary living solutions. Combined with its proximity to established schools, parks, and retail nodes, the development appeals to families prioritising long-term liveability in a central residential district. JadeScape has a sound public transport system. Residents can easily walk to Marymount Station (CC16) or take a short drive to get to Upper Thomson Station (TE13). Both stations help residents of JadeScape reach the Central Business District, Orchard area, Marina Bay, and the other regions in northern Singapore. In addition, many roads connect to JadeScape. Access to the Pan Island Expressway (PIE) and Central Expressway (CTE) by car makes it easy for residents to drive to destinations such as Bishan, Novena, Orchard Road, and downtown areas. The central area's commercial and lifestyle clusters, along with nearby Thomson Road, make it easy for JadeScape residents to enjoy what their area has to offer. As a fully facilitated condominium community, JadeScape offers numerous communal amenities for recreation and fitness. Facilities within the development include: Concierge Children’s Playground Lawn Function Room Gymnasium Room Jacuzzi Lift Lobby 24-Hour Security Swimming Pool Tennis Courts Theatrette Karaoke Room Games Room Kid’s Pool Barbeque Pits Garden Pets Corner Foot Reflexology Path Sauna Virtual Golf Jogging Trail These facilities are distributed across landscaped grounds and podium areas, allowing residents to enjoy a variety of recreational options without leaving the development. JadeScape is situated near a range of educational institutions, reinforcing its suitability for families with school-going children: Ai Tong School Catholic High School Raffles Institution The availability of multiple schools within a reasonable commute adds to the development’s family-oriented appeal. Residents of JadeScape have access to a wide range of dining options across the Shunfu, Marymount, and Upper Thomson areas: SOD Cafe Eastern House of Seafood San Ren Xing This ensures sufficient variety without reliance on long-distance travel for meals. Healthcare access around JadeScape is well supported by medical facilities within the Thomson and central Singapore areas: Mount Alvernia Hospital Thomson Medical Centre Edgedale Medical Clinic (Bishan) This provides residents with access to both routine medical services and specialised care. Daily shopping needs are conveniently met through supermarkets and retail outlets located within nearby commercial centres: Shunfu Mart Sheng Siong Supermarket FairPrice Finest Zhong Shan Park These options ensure everyday necessities remain easily accessible without dependence on future retail developments. JadeScape occupies a sizeable residential site along Shunfu Road, within a predominantly private housing enclave. The site planning incorporates multiple residential blocks arranged around landscaped communal spaces. JadeScape Condominium 99-year Leasehold 20 2023 408,000 sq ft 1,206 Up to approximately 23 storeys One-bedroom: 527 sqft Two-bedroom: 646 sqft Two-bedroom Deluxe: 764 sqft Two-bedroom Premium: 775 sqft Three-bedroom: 904 sqft Three-bedroom Deluxe: 1,012 – 1,055 sqft Three-bedroom Premium: 1,152 sqft Four-bedroom: 1,259 sqft Four-bedroom Deluxe: 1,421 sqft Four-bedroom Suite: 1,647 sqft Five-bedroom Suite: 2,099 sqft The development’s layout prioritises internal greenery and facility zoning, supporting a residential environment distinct from surrounding landed housing. JadeScape was built by Qingjian Realty (Marymount) Pte Ltd., a division of Qingjian Group, a primary regional developer that builds large-scale housing projects in Singapore. Qingjian is known for using modern methods and technologies in the construction industry and for developing efficient homes that offer a smart living experience. Most of Qingjian Realty's Homes incorporate advanced technologies and offer comprehensive amenities and Lifestyle Offers to consumers, preferably on land that has already been developed into residential neighbourhoods in Singapore, where they deliver the most significant benefit. Other developments by Qingjian Realty reflect a similar emphasis on modern design and large-scale planning: The Arden Altura Bloomsbury Residences These developments underscore Qingjian Realty’s consistent approach to delivering contemporary residential environments supported by thoughtful master planning and long-term liveability. Within the broader Bishan/Thomson residential landscape, JadeScape is surrounded by established private condominiums and landed housing areas such as: Thomson Impressions Sky Vue The Gardens at Bishan These surrounding developments contribute to a mature residential environment supported by existing infrastructure and amenities. JadeScape is a modern condo in a conveniently located, established residential neighbourhood. It is a large-scale project with a full suite of facilities, including two MRT lines to support long-term occupancy rather than short-term living. For owner-occupiers and families seeking space, public transport access, and proximity to good schools, JadeScape offers a balanced residential option in District 20. Browse current sales and rental listings at JadeScape to identify a home that matches your space needs and long-term living objectives. There are also commercial units in JadeScape for sale and rental.
View project details




































