J Gateway
2 Gateway Drive
S$ 3,800 /mo
1
Bed
1
Bath
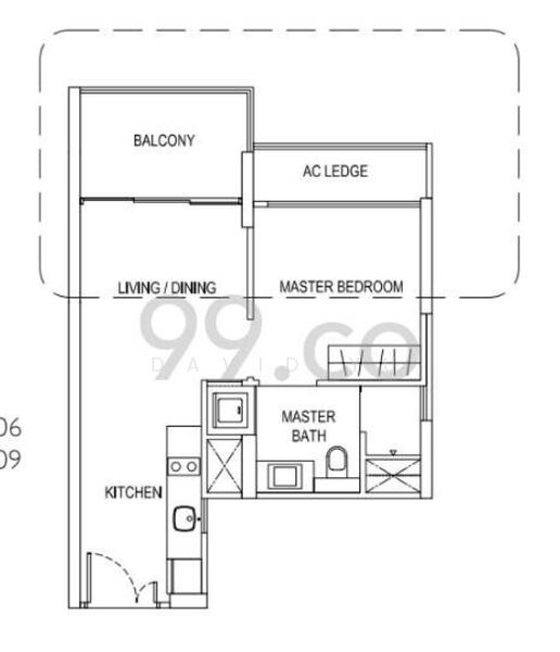
474
sqft (floor)
400 m (5 mins) from NS1/EW24/JE5 Jurong East MRT
Available from 19 Jan 2026
About this property
Cheap! Cheap! Cheap! High floor near MRT 1 bedroom for rent, call now!
— Available : 2 January 2026.
- Fully or Partial furnished available.
- Not face MRT Track, quiet facing.
- Very well kept, Move in Condition.
- High floor.
- Near to Shopping malls & Supermarkets & Cinemas & Amenities.
- Bright & Breezy.
- Full details on request.
- With facilities as: Swim Pool, BBQ, Gym, Function room, basement car park & 24 hours Security.
- One call view many Condo units with me.
— The photos for illustration purpose only and that the actual unit may differ.
Tenant please kindly SMS, WhatsApp or Call 8***** for:
******Name/Budget/Move in date/No. of People stay.******
请致电询问详情.
中文客户请加我微信联系 WeChat ID: DavidYu66
EMAIL: D*****@*****
More of my Ads and pictures at my Website:
www.h*****
Please call 8***** David for viewing appointment today!!!!!!
Amenities
Air conditioner
Air-conditioning
Balcony
Bed
J Gateway

J Gateway is a leasehold condominium that is located at Gateway Drive in District 22. It is a newly developed high rise condominium building. The project was completed in the year 2017 with a total of 738 units available for sale or rent. The condominium is located close to public transportation that allows residents to move easily from one place to another from the condominium. There are many shops and amenities close to the condominium which would ease the process for residents and they do not need to go far to find what they need. The project was developed by MCL Land (Gateway) Pte Ltd, a big-scale real estate organization that has undertaken around 28 real estate projects in Singapore. The company’s aim is to innovate, create and connect where they are constantly pursuing to build homes that are innovate and creative for their customers. - J Gateway is a beautiful condominium that has many charms to it. There are various facilities that residents can enjoy while living in J Gateway. Residents of J Gateway would not have to travel far to get their basic necessities. Residents can enjoy the swimming pool, lap pool, children’s pool, Jacuzzi, function room, meeting room, tennis court, indoor and outdoor gymnasium, barbeque are, dining pavilion and children’s playground. There is a number of public transportation close to J Gateway that residents can make use of. The closest MRT station to J Gateway is Jurong East MRT Station. The closest bus stops are located at Jurong East MRT Station, Block 203, Seventh-Day Adventist Church and IMM Building. For those with vehicles, the business hub and shopping district located at Orchard Road can be easily accessed via the Ayer Rajah Expressway in 18 minutes. Miam Miam French Japanese Café KitchenZaffron Kitchen WestgateOh My CaféMen Don TeiBeng Hiang RestaurantFuhua Primary SchoolShuqun Secondary SchoolYuhua Primary SchoolMy First Skool at WestgateSpring College InternationalUnity West GateOutpatient & Retail PharmacyEu Yan SangWatsonsGuardianWestgateJCube Shopping MallBig Box SingaporeKuriyaFairPrice Xtra JEMFairPrice Jurong Gateway RoadGiant IMMMumbai Mart J Gateway is a condominium development that is made up of a total of 738 units in a 38 storey building. There are 6 unit types available with various layouts that residents can browse through. The sizes for the units range between 474 square feet to 2,024 square feet. The layouts for the units in J Gateway aim to provide residents with homes that is comfortable for working adults, couples or families looking to own a spacious and manageable condominium unit. The selling price for the units in J Gateway ranges between S$ 840,000 to S$ 3,200,000. The rental price for the units ranges between S$ 2,500 to S$ 8,200. Project Name: J GatewayType: CondominiumDistrict: 22Configuration: 738 residential units Unit Types:1 bedroom Suite (474 sqft – 506 sqft)2 bedrooms Suite (689 sqft – 721 sqft)3 bedrooms Suite (893 sqft – 1076 sqft)4 bedrooms Suite (1163 sqft – 1,432 sqft)3 bedrooms Penthouse (1,485 sqft – 1,658 sqft)4 bedrooms Penthouse (1,905 sqft – 2,024 sqft) The following are projects that have been developed Wing Tai Holdings Ltd, the developer of J Gateway:Lake GrandeMargaret VilleMera Springs The following developments are in the same neighborhood as J Gateway:J GatewayLakevilleThe LakeshoreThe Lakefront ResidencesThe CentrisCaspian
View project details



























