DUO Residences
1 Fraser Street
S$ 7,400 /mo
2
Beds
2
Baths
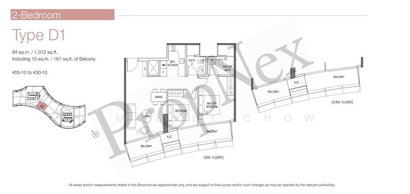
1,012
sqft (floor)
340 m (4 mins) from EW12/DT14 Bugis MRT
Ready to move in Apartment
About this property
Rare Large 2bed2bath, High Floor, Fully Furnished, Immediate Avail
One of the best 2 bedroom layout! Why?
- Spacious living and dining
- Tuck-in Kitchen (Not open-kitchen or at entrance)
- Ideal for professionals or couples who want more space than typical 2-bed units in the area
Unit Highlights:
• 2 Bedroom, 2 Bathroom
• 1,012 sqft (larger than most DUO 2BR units)
• High floor with balcony & city views
• Fully furnished & move-in ready
• Good natural light
• Immediate availability, just bring your luggage!
Amenities:
• DUO Galleria (retail & dining) – within development
• Bugis Junction – 3 mins walk
• Suntec City – 7 mins walk
• Supermarkets, cafes & eateries nearby
Transport
• Bugis MRT (DTL / EWL) – 4 mins walk (underground link way)
• City Hall – 1 MRT stop / 5 mins drive
• Marina Bay / CBD – 8–10 mins drive
• Easy access to major expressways
Flexible Viewing
Contact Kimberly 8877**** for viewing now!
Amenities
Air conditioner
Balcony
Basic lights
Bed
Common facilities
24 hours security
Drop off point
Fitness corner
Function room
DUO Residences

DUOLocated in the unique Bugis area, one that has been cited for major development, but development that will add to much of its charm not destroy it, DUO is very much at the forefront of that. As well as a 5 star hotel, office space and retail podium, DUO has 660 luxurious residential units based in a distinctive 49 storey tower that overlooks Kampong Glam. Surrounded by a myriad of dining and shopping options for all tastes and budgets, DUO is also connected to Bugis MRT Station via an underground walkway meaning trips to the CBD, Marina Bay and Orchard could not be easier.Owned by Khazanah Nasional Berhad, Malaysia’s strategic investment fund, and Singapore’s investment company called Temasek Holdings Pte. Ltd, M+S Pte Ltd was established in June 2011 to develop Marina One Residences and DUO.DUO – Unique Selling PointsAs you would expect from a M + S development, DUO is very well designed and built with elegant and stylish touches throughout. It also gives a nod to its surrounding area, giving it a unique look and feel. The neighbourhood and surrounding area is crammed with dining, retail and partying options, and has a truly eclectic look and feel that is unique to Singapore. DUO is opposite Kampong Glam, a conserved area, with its winding streets full of quirky boutiques and interesting bars and restaurants.DUO – AccessibilityOne of the attractions of DUO is its proximity to so many retail, entertainment and dining options, but those needing to get away are catered for as well. DUO is directly linked, via underground walkway, to Bugis MRT Station on the East West and Downtown Lines. City Hall is one stop away, meaning commuting to work in the CBD or weekend shopping trips to Orchard are quick and easy. Changi airport is a 15 minute drive via the ECP.DUO - Amenities & AttractionsDining near DUO:Kampong Glam Bars and RestaurantsMultitude of optionsShopping near DUO:Arab StreetBugis JunctionBugis+Golden Mile Shopping ComplexSim Lim SquareSchools and Education near DUO:Stamford Primary SchoolSt Margaret’s Primary SchoolBroadrick Secondary SchoolNorthlight Secondary SchoolTanjong Katong Girls SchoolDUO - Project informationDUO is a massive development encompassing residential, commercial and office space. The 660 residential units are housed in a 49 storey tower and consist of studios up to penthouses, via 2, 3 and 4 bed units. The 1 and 2 bed units also come with the option of having a study.Another 39 storey tower is home to a 5 star hotel and 20 levels of premium office space, while a podium level provides around 56,000sqft of retail space.Throughout the residential units the fixtures, fittings and appliances are all by Miele, Snaidero and Villeroy & Boch. Facility-wise, Duo has a vast array to satisfy everyone from children upwards, the highlights being a 50 metre lap pool, sky pool, kids pool, herb garden, games terrace, gymnasium and dance deck.Project Name: DUO ResidencesAddress: 1 Fraser StreetType: Integrated Development with Residential, Retail and Grade A officesSite area: approx. 1.73 million sqftTenure: 99-year leasehold from July 2001District: 07Configuration:660 premium residential units over a 49-storey tower20 levels of prime Grade A office space with a total lettable floor area of approximately 570,000 sqftFive-star Andaz Singapore hotel by Hyatt Hotels & ResortsPodium level retail gallery with a total lettable floor area of approximately 56,000 sqft.Residential Unit types:54 x studio (420 to 527 sqft)289 x 1-bedroom (538 – 743 sqft), 1-bedroom + study (689 – 721 sqft)218 x 2-bedroom (818 – 1,023sqft), 2-bedroom + study (947-1,184 sqft)59 x 3-bedroom (1,432 – 1,722 sqft)34 x 4-bedroom (1,841 – 1,927 sqft)6 x Penthouses (2,390 – 4,392 sqft)Expected TOP: 2017DUO - Historical DataSales at DUO were very strong, due to a combination of a very good all round package and the reputation of the developer. As of May 2016, 625 of the available 660 residential units had been sold. The median prices from those figures, gives us $2,243 psf for studios, $1,999 for 1 bed units, while the 4 bedders and penthouses were at $2,322 and $2,065 respectively.DUO - Related ProjectsThe following project is by the same developer as DUO:Marina One ResidencesDUO - Nearby ProjectsThe following developments are in the same neighbourhood as DUO:Concourse SkylineBurlington SquareCity Gate
View project details















