Commonwealth Towers
230 Commonwealth Avenue
S$ 4,000 /mo
1
Bed
1
Bath
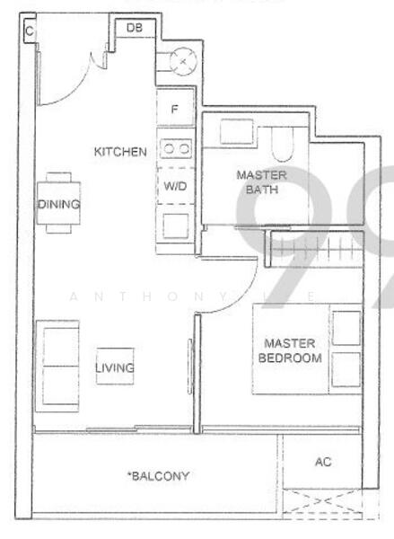
441
sqft (floor)
200 m (2 mins) from EW19 Queenstown MRT
Ready to move in Condominium
About this property
Fully furnished, Queenstown MRT Station, 1 Bedroom, Balcony Apartment
www.h*****
Commonwealth Towers Condo At Queenstown – 1 Bedroom + Balcony
Blk 232 – Facing North
High Floor
The landlord will accepts 1 year or 2 years rent duration
10 reasons why you want to rent this unit –
. This condo is connected directly into Queenstown MRT station – no rain or sun heat is going to get to you.
. This condo is so near Orchard Road, CBD and Marina Bay.
. This unit is fully furnished – just bring your luggage – and enjoy the stay.
. This unit is beautifully furnished – come see for yourself.
. Large size balcony to let you enjoy a morning breakfast – watch the sunrise – and ahh … the wonderful Orchard Road within sight.
. This condo has a tennis court – very few condos have space for a tennis court nowadays.
. Two large swimming pools – one has a 50m lap length – what a thrill.
. PCN just besides this condo – walk/ jog/ cycle all the way to Clarke Quay, Boat Quay, Marina Bay, MBS, Gardens by the Bay, and even to Marina Barrage.
. Margaret Drive Hawker Centre just next door – what a convenience.
. And of course, me, your friendly property agent settling you in in this wonderful 1 bedroom unit.
Call Lee at 9238/9390 to view the apartment!
Walking Distance :
- Queenstown MRT station
- Ikea
- Anchorpoint
- Queensway shopping centre
- ABC Brickworks hawker centre
Full Condo Facilities -
- Swimming Pools
- Gym
- Tennis Court
- Function Rooms
- Reading Room
- BBQ Pavilions
- 24hr Security
- Etc
About this condo -
2 towers,
Highest floor - 43
Total number of units - 845
whatsapp, wechat, sms or call Lee at +65 9238/9390 –
wechat Lee at Lee9238/9390 –
email to Lee at p*****@***** –
- so that I can assist you further.
To Property Owners -
Your property is a big investment item, contact Lee at 9***** , a full time property agent with a good track record to help you achieve maximum returns -
C & H Top 50 Producers – Year 2024 to 2020, 2019 to 2015
Amenities
Air-conditioning
Balcony
Bed
City view
Common facilities
Barbeque pits
Fitness corner
Function room
Gymnasium room
Commonwealth Towers

Commonwealth Towers This two towered development benefits from very close proximity to Queenstown MRT Station, on the East West Line, meaning resident of Commonwealth Towers can be in Orchard Road, the CBD or Marina Bay in less than a quarter of an hour and it’s within District 3. Commonwealth Towers - Accessibility The fact that Commonwealth Towers is so close to the MRT – it is across the road from Queenstown MRT Station – is a huge plus point for this development and will be the reason most people buy. Queenstown is on the East West Line, three and five stops from the North East and North South Lines respectively. This means residents of Commonwealth Towers can easily be on Orchard Road, The CBD or Marina Bay within 15 minutes. Commonwealth Avenue can and does get busy with traffic, but it is not far to Queensway, and hence the AYE and MCE, giving drivers access to areas in the north, south, east and west of the island. There are not too many amenities on the doorstep, but that will more than likely change as gentrification tales hold of the area, and the impact is lessened to a large extent by the MRT. Commonwealth Towers - Amenities & Attractions Shopping near Commonwealth Towers: Anchor Point Alexandra Central Valley Point Great World City Schools and Education near Commonwealth Towers: New Town Primary School Queenstown Secondary School ACS International
View project details





















