City Gate
371 Beach Road
S$ 3,000 /mo
Starting FromStudio
1
Bath
300
sqft (floor)
350 m (4 mins) from CC5 Nicoll Highway MRT
Ready to move in Condominium
About this property
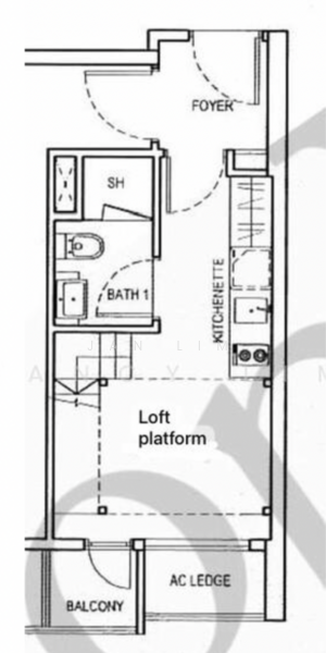
High-Floor Loft Living, Singapore Flyer View, Move In Now
This well-designed loft features an exceptionally efficient layout, maximising both living and bedroom space despite its compact footprint. The loft design smartly separates living and resting areas, making the home feel open, functional, and comfortable. Ideal for singles or couples seeking a modern city lifestyle.
Sheltered 5-Min Walk to Nicoll Highway MRT
Immediate vacancy – move in anytime. To arrange a viewing contact 9*****
Amenities
Balcony
Fridge
Microwave
Oven / microwave
Common facilities
24 hours security
Barbeque pits
Bbq pavillion
Car park
City Gate
City Gate is a prominent mixed-use apartment located at Beach Road, Singapore 199597, in the sought-after District 07 (Beach Road / Bugis / Rochor). Developed by Bayfront Ventures Pte Ltd and completed in 2019, this iconic development comprises 311 residential units, offering a variety of one-bedroom to four-bedroom penthouses to accommodate different residential preferences. City Gate is a 99-year leasehold development and also features a three-storey commercial podium, which includes a selection of shops, restaurants, a food court, and a supermarket, making it a self-contained development with a strong emphasis on convenience.City Gate is situated in a highly desirable location in District 07, offering excellent connectivity to major destinations such as the Central Business District (CBD), Orchard Road, and key expressways, including the Kallang-Paya Lebar Expressway (KPE), East Coast Parkway (ECP), and Marina Coastal Expressway (MCE). This makes it easy for residents to access Singapore's core areas and surrounding districts.The development boasts a comprehensive range of state-of-the-art amenities, including swimming pools, a fully equipped fitness centre, and a sky park offering panoramic views of the sea and city skyline. These features enhance the lifestyle of residents, ensuring both relaxation and convenience.City Gate is in a great spot at the meeting point of Beach Road and Jalan Sultan. It is near many amenities and attractions. These include cultural sites, shopping areas, and places to eat. The development connects well with the lively city scene. Its fancy living spaces also make it an exceptional choice for people who want modern living in a central area.City Gate's location is excellent because it is easy to reach. Residents are just a short walk from Nicoll Highway MRT station (CC5) on the Circle Line. This makes it simple to get to other places on the island. For those who prefer to drive, the development is well-connected to major expressways such as the Kallang-Paya Lebar Expressway (KPE), East Coast Parkway (ECP), and Marina Coastal Expressway (MCE), facilitating smooth commutes to critical areas like the Central Business District (CBD) and Orchard Road.The area around City Gate has something for everyone. There are many places to visit nearby. You can visit Kampong Glam, Bugis Junction, and Suntec City. Each spot offers plenty of shopping, food, and fun activities. A day of shopping or a night out is simple here. The attractions close by make living at City Gate even nicer.City Gate is well thought out for meeting the different needs of its residents. It provides a range of options for fun, fitness, and socializing. The development includes:BBQ AreaClubhouseFitness CornerFunction RoomGymJacuzziJet PoolLoungeMini Golf RangeOutdoor Dining AreaPlaygroundReflexology PathSwimming PoolViewing DeckWater FeatureYoga CornerThese amenities offer many choices for relaxation and exercise. They help residents enjoy a balanced and happy lifestyle. The nicely cared-for green areas add to the calm feel. This creates a place where residents can relax and participate in fun activities.Families living in City Gate gain from being close to several schools, including:Hong Wen SchoolStamford Primary SchoolNanyang Academy of Fine ArtsThese choice schools provide various options for families with children of different ages, ensuring that education is accessible from home.Residents of City Gate have access to several medical facilities, including:Raffles HospitalSheng Hua Chinese Medical ClinicW Eye ClinicNovaHealth TCM Clinic @ City HallThese medical centres offer comprehensive healthcare services, providing residents convenient access to essential medical care nearby.City Gate is near many places to eat. This gives residents different food choices to enjoy. Some popular restaurants are:Bumbu RestaurantGinger RestaurantRice & Spice Indian RestaurantMan Fu Yuan RestaurantThese restaurants offer many kinds of food. You can find local favourites and meals from around the world. This way, there is something for everyone to enjoy.City Gate's location is further enhanced by the convenience of nearby supermarkets, including:Ace Marketplace (465 North Bridge Road)EZ Go Mart (7500A Beach Road, The Plaza)DON DON DONKI @ Suntec CityMeidi-Ya SupermarketThese supermarkets make it easy for people to get their daily needs and fresh food. This makes grocery shopping simple and quick for residents.City Gate is in the heart of Beach Road, District 07, and covers 22 floor plan options ranging from 431 sq ft to 1,819 sq ft. The development's design is a harmonious blend of modern architectural elegance and the vibrancy of city life. The sleek facades offer stunning views of the Singapore skyline, while the spacious layouts ensure that each unit benefits from abundant natural light and optimal space utilization. City Gate Mixed-Use Development 07 (Beach Road / Bugis / Rochor) 311 residential units 30 One City Gate has many different types of units. They range from one-bedroom apartments to fancy penthouses. Each unit is made to use space and light and function well. They feature modern kitchens, large living areas, and lovely city views.Bayfront Ventures Pte Ltd, a World Class Land and Fragrance Group partnership, built the city Gate. These companies are recognized in the Singapore property market for making new and high-quality homes and mixed-use spaces. Together, they created City Gate, offering a modern development that combines comfort and ease.Bayfront Ventures Pte Ltd is also behind other prominent developments, including:Urban Vista The area around City Gate has many other well-known housing projects. These projects help create a lively community feel. Some of the developments close by are:DUO ResidencesSouthbankConcourse SkylineThese nearby projects make the Beach Road and Bugis area more attractive. They offer different living choices for people who want this place's lively city life.City Gate is an excellent choice for those who want to live in the centre of Singapore. It has modern facilities and good transport links. The area is growing fast, making it a smart choice for anyone seeking a fancy city lifestyle. You can find a one-bedroom apartment or a spacious penthouse here. City Gate is the perfect place for modern and comfortable living.Check the Residential units in City Gate for sale and units for rental. And also don’t miss also the commercial units for sale and rental units too.
View project details







