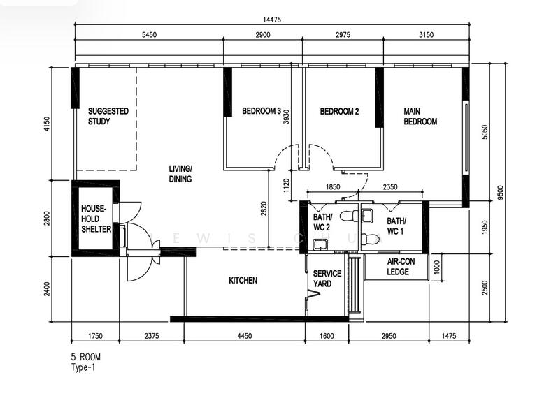
618B Tampines Street 61 - 2 Units for Sale
Map View
We’ve shown you all the matches
Almost there!
Refining your recommendations.
This may take a few seconds...
618B Tampines Street 61
618B Tampines Street 61 522618(D18) Pasir Ris / Tampines
Summary
618B Tampines Street 61
Read more
Project details
TypeHDB
PriceS$ 879K - 889K
Completion year2016
Tenure99-year Leasehold
No. of blocks1
No. of floors15
Total units104
Top facilities
Adult fitness stations
Car park
Children's playground
Drop off point
DeveloperHousing & Development Board (HDB)
Explore PropertyGuru
Properties by ownership







