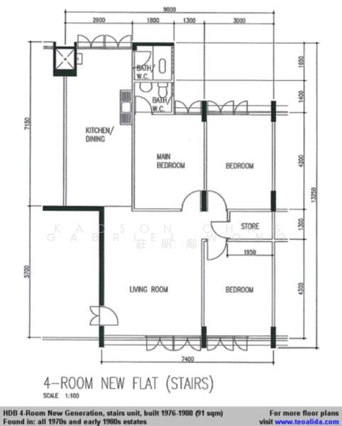
324 Clementi Avenue 5 - 2 Units for Sale
Map View
We’ve shown you all the matches
Almost there!
Refining your recommendations.
This may take a few seconds...
324 Clementi Avenue 5
324 Clementi Avenue 5 120324(D05) Buona Vista / West Coast / Clementi New Town
Summary
324 Clementi Avenue 5
Read more
Project details
TypeHDB
PriceS$ 788K - 5M
Completion year1977
Tenure99-year Leasehold
No. of blocks1
No. of floors12
DeveloperHousing & Development Board (HDB)
Explore PropertyGuru
Properties by ownership













