161A Punggol Central - 2 Units for Sale
Map View
We’ve shown you all the matches
Almost there!
Refining your recommendations.
This may take a few seconds...
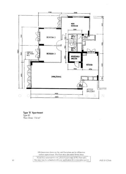
161A Punggol Central
161A Punggol Central 821161(D19) Hougang / Punggol / Sengkang
Summary
161A Punggol Central
Read more
Project details
TypeHDB
PriceS$ 726K - 750K
Completion year2002
Tenure99-year Leasehold
No. of blocks1
No. of floors19
DeveloperHousing & Development Board (HDB)
Explore PropertyGuru
Properties by ownership















