624 Ang Mo Kio Avenue 4 - 1 Units for Rent
Map View
We’ve shown you all the matches
Almost there!
Refining your recommendations.
This may take a few seconds...
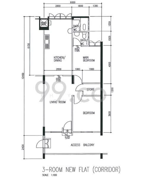
624 Ang Mo Kio Avenue 4
624 Ang Mo Kio Avenue 4 560624(D20) Ang Mo Kio / Bishan / Thomson
Summary
624 Ang Mo Kio Avenue 4
Read more
Project details
TypeHDB
PriceS$ 800 - 3K
Completion year1980
Tenure99-year Leasehold
No. of blocks1
No. of floors13
DeveloperHousing & Development Board (HDB)
Explore PropertyGuru
Properties by furnishing

















