93 Commonwealth Drive
93 Commonwealth Drive
S$ 400,000
Negotiable2
Beds
1
Bath
753
sqft (floor)
S$ 531
psf (floor)
520 m (6 mins) from EW20 Commonwealth MRT
About this property
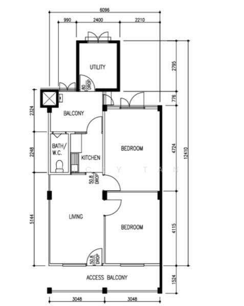
Near commonwealth MRT, high floor, with utility room. corner unit
No Extension Stay | North-South Facing Unit | Corner unit
Don’t miss this rare opportunity to own a high-floor corner HDB unit at 93 Commonwealth Drive — perfect for those seeking privacy, convenience, and a well-upgraded home in a prime city-fringe location.
— ideal for small families or couples seeking comfort and convenience.
-- Rare corner unit with recess area purchased for extra privacy
-- Upgraded layout with a utility room
-- 2 bedrooms + utility room + Store room— efficient and functional space
-- High floor with unblocked south-facing view — bright, breezy, and well-ventilated
-- No extension of stay required — move in or transact immediately
-- Pure selling — fast and smooth transaction process
-- All races eligible
— new set of aircon
— marble flooring
— renovated and Move in condition
Pls contact Ricky at 9***** for viewing appointment , thanks
Location Highlights:
-- 0.5 km to Commonwealth MRT – quick and easy access to the city
-- 1.0 km to Holland Village – vibrant dining and shopping options
-- 0.3 km to Queensway Secondary School
-- 0.5 km to Luther Preschool – ideal for families with young children
-- 1.0 km to CS Fresh @ Holland Shopping Centre
-- 0.6 km to Kodak Colour Centre
-- 0.5 km to Commonwealth Crescent Neighbourhood Centre – for daily essentials
Unit Features:
--Air-conditioned bedrooms and living area
-- Well-ventilated layout with excellent natural light
-- Ample open parking space right outside
-- Quiet and peaceful environment
Don’t miss this rare opportunity to own a beautiful, conveniently located home in a mature estate.
Schedule a viewing today and make this delightful property yours! contact Ricky now at 9***** , thanks
Don’t miss this rare opportunity to own a high-floor corner HDB unit at 93 Commonwealth Drive — perfect for those seeking privacy, convenience, and a well-upgraded home in a prime city-fringe location.
— ideal for small families or couples seeking comfort and convenience.
-- Rare corner unit with recess area purchased for extra privacy
-- Upgraded layout with a utility room
-- 2 bedrooms + utility room + Store room— efficient and functional space
-- High floor with unblocked south-facing view — bright, breezy, and well-ventilated
-- No extension of stay required — move in or transact immediately
-- Pure selling — fast and smooth transaction process
-- All races eligible
— new set of aircon
— marble flooring
— renovated and Move in condition
Pls contact Ricky at 9***** for viewing appointment , thanks
Location Highlights:
-- 0.5 km to Commonwealth MRT – quick and easy access to the city
-- 1.0 km to Holland Village – vibrant dining and shopping options
-- 0.3 km to Queensway Secondary School
-- 0.5 km to Luther Preschool – ideal for families with young children
-- 1.0 km to CS Fresh @ Holland Shopping Centre
-- 0.6 km to Kodak Colour Centre
-- 0.5 km to Commonwealth Crescent Neighbourhood Centre – for daily essentials
Unit Features:
--Air-conditioned bedrooms and living area
-- Well-ventilated layout with excellent natural light
-- Ample open parking space right outside
-- Quiet and peaceful environment
Don’t miss this rare opportunity to own a beautiful, conveniently located home in a mature estate.
Schedule a viewing today and make this delightful property yours! contact Ricky now at 9***** , thanks
Amenities
Air conditioner
Affordability
Can I afford this property?
Tell us your monthly income and expenses to see if this home fits your budget.
Mortgage breakdown
Est. monthly repayment
S$ 0 / mo
S$ 0 Principal
S$ 0 Interest
Upfront costs
Total downpayment
S$ 0
Downpayment
S$ 0 Loan amount at 0% Loan-to-value
93 Commonwealth Drive

93 Commonwealth Drive
View project detailsFAQs
The sale price of this unit at 93 Commonwealth Drive is S$ 400,000.
Current PSF at 93 Commonwealth Drive is about S$ 531.21 psf.
The estimated loan repayment is S$ 1,240 / mo.
93 Commonwealth Drive is located at 93 Commonwealth Drive Alexandra / Commonwealth City & South West (D01-08).
Floor size of this unit at 93 Commonwealth Drive is 753 sqft.
Explore other options in and around Alexandra / Commonwealth
Based on the property criteria, you might be interested on the following
HDB Flat For Sale
Show MoreNearest MRT Stations























