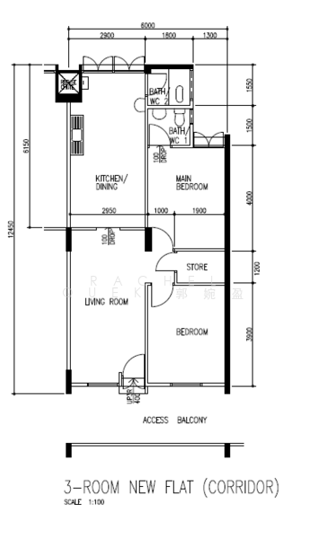
69 Bedok South Avenue 3 - 2 Units for Sale
Map View
We’ve shown you all the matches
Almost there!
Refining your recommendations.
This may take a few seconds...
69 Bedok South Avenue 3
69 Bedok South Avenue 3 460069(D16) Bedok / Upper East Coast
Summary
69 Bedok South Avenue 3
Read more
Project details
TypeHDB
PriceS$ 428K - 440K
Completion year1977
Tenure99-year Leasehold
No. of blocks1
No. of floors10
DeveloperHousing & Development Board (HDB)
Explore PropertyGuru
Properties by ownership








