562 Hougang Street 51 - 1 Units for Sale
Map View
We’ve shown you all the matches
Almost there!
Refining your recommendations.
This may take a few seconds...
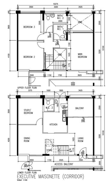
562 Hougang Street 51
562 Hougang Street 51 530562(D19) Hougang / Punggol / Sengkang
Summary
562 Hougang Street 51
Read more
Project details
TypeHDB
Completion year1990
Tenure99-year Leasehold
No. of blocks1
No. of floors11
DeveloperHousing & Development Board (HDB)
Explore PropertyGuru
Properties by ownership











