547A Segar Road
547A Segar Road
S$ 638,000
Starting From3
Beds
2
Baths
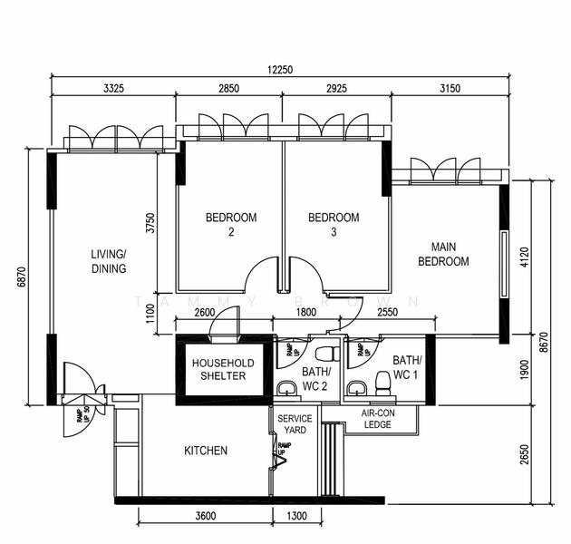
990
sqft (floor)
S$ 644
psf (floor)
130 m (2 mins) from BP11 Segar LRT
About this property
A home that feels just right from the moment you step in!
Perched on a high floor, this bright and breezy 3-bedroom home welcomes you with a refreshing sense of space and comfort. Natural light filters gently through windows thoughtfully oriented towards the south-east, keeping the interior cool without harsh direct sunlight. The simple, clean-cut renovation creates a modern, fuss-free canvas — a home you can move into immediately, and make your own with ease. Every bedroom is fully air-conditioned, and the functional layout, complete with a well-planned service yard, makes everyday living not just convenient, but enjoyable.
Step outside and the neighborhood comes alive almost instantly. A quick stroll brings you to Sheng Siong supermarket, a cozy bakery, a bustling food court, and even Segar LRT — practically at your doorstep. Daily errands become effortless, and last-minute cravings are easily satisfied.
Connectivity here is exceptional. Whether you’re heading to Bukit Panjang, Choa Chu Kang, or town, several bus stops just minutes away offer direct routes to keep you moving. Both Fajar LRT/MRT (BP10) and Bukit Panjang MRT (DT1) sit within a comfortable 1.3km radius, and the highly anticipated Segar MRT will be just 1.1km away, making future travel even smoother.
On weekends, you’ll have no shortage of places to unwind. Fajar Shopping Centre and Greenridge Shopping Centre are close enough for quick grocery runs, while Bukit Panjang Plaza and Hillion Mall offer dining, retail, and lifestyle options just under 2.6km away.
Families will find even more to love. Within 200 metres, trusted preschools like Little Footprints, YMCA Child Development Centre, PCF Sparkletots, and MyFirst Skool provide quality early education. For primary levels, respected schools such as Greenridge, West Spring, Beacon, and Zhenghua Primary are all conveniently situated within 1km — a major plus for enrolment.
This is more than just a flat. It’s a comfortable retreat, thoughtfully located, beautifully maintained, and ready for the next family.
Step outside and the neighborhood comes alive almost instantly. A quick stroll brings you to Sheng Siong supermarket, a cozy bakery, a bustling food court, and even Segar LRT — practically at your doorstep. Daily errands become effortless, and last-minute cravings are easily satisfied.
Connectivity here is exceptional. Whether you’re heading to Bukit Panjang, Choa Chu Kang, or town, several bus stops just minutes away offer direct routes to keep you moving. Both Fajar LRT/MRT (BP10) and Bukit Panjang MRT (DT1) sit within a comfortable 1.3km radius, and the highly anticipated Segar MRT will be just 1.1km away, making future travel even smoother.
On weekends, you’ll have no shortage of places to unwind. Fajar Shopping Centre and Greenridge Shopping Centre are close enough for quick grocery runs, while Bukit Panjang Plaza and Hillion Mall offer dining, retail, and lifestyle options just under 2.6km away.
Families will find even more to love. Within 200 metres, trusted preschools like Little Footprints, YMCA Child Development Centre, PCF Sparkletots, and MyFirst Skool provide quality early education. For primary levels, respected schools such as Greenridge, West Spring, Beacon, and Zhenghua Primary are all conveniently situated within 1km — a major plus for enrolment.
This is more than just a flat. It’s a comfortable retreat, thoughtfully located, beautifully maintained, and ready for the next family.
Amenities
Air-conditioning
Bed
Cooker hob/hood
Corner unit
Common facilities
Car park
Multi-storey car park
Affordability
Can I afford this property?
Tell us your monthly income and expenses to see if this home fits your budget.
Mortgage breakdown
Est. monthly repayment
S$ 0 / mo
S$ 0 Principal
S$ 0 Interest
Upfront costs
Total downpayment
S$ 0
Downpayment
S$ 0 Loan amount at 0% Loan-to-value
547A Segar Road
FAQs
The sale price of this unit at 547A Segar Road is S$ 638,000.
Current PSF at 547A Segar Road is about S$ 644.44 psf.
The estimated loan repayment is S$ 1,978 / mo.
547A Segar Road is located at 547A Segar Road Dairy Farm / Bukit Panjang / Choa Chu Kang West (D22-24).
Floor size of this unit at 547A Segar Road is 990 sqft.
Explore other options in and around Dairy Farm / Bukit Panjang / Choa Chu Kang
Based on the property criteria, you might be interested on the following
Nearest MRT Stations





















