Listing has an ongoing offer.You can still contact the agent to indicate interest in the property
547A Bedok North Avenue 1
547A Bedok North Avenue 1
S$ 650,000
2
Beds
2
Baths
732
sqft (floor)
S$ 888
psf (floor)
1.1 km (13 mins) from EW5 Bedok MRT
About this property
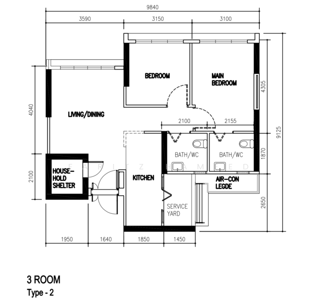
Beautifully renovated 3 Room, No Extension, Move-In Ready
Discover this unit at 547A Bedok North Avenue 1, thoughtfully renovated and meticulously maintained — ideal for buyers who want a move-in ready home!
This unit offers a clean, efficient layout with tasteful finishes, making it suitable for couples, small families, or buyers looking for a fuss-free purchase. With no extension required, buyers can enjoy a smoother transaction timeline and peace of mind.
Unit Highlights
• 3-Room HDB
• Beautifully renovated with modern finishes
• No extension (ideal for straightforward resale transaction)
• Bright and airy living spaces with good natural ventilation
• Functional layout with excellent space optimisation
• Well-maintained and move-in ready condition
The living and dining areas are designed to feel open and welcoming, perfect for everyday living or entertaining guests. Bedrooms are well-proportioned, providing comfort and privacy, while the kitchen is practical and efficient for daily use.
Situated in a well-established Bedok North estate, the unit enjoys excellent accessibility and convenience:
• Easy access to public transport options
• Close to supermarkets, coffee shops and daily amenities
• Near parks and green spaces for leisure and relaxation
• Surrounded by reputable schools and childcare options
• Short drive or commute to Bedok Central and key town amenities
This mature estate offers a balance of connectivity, lifestyle convenience and family-friendly surroundings, making it highly attractive for both own-stay buyers and investors.
Why This Unit Stands Out
• Renovated condition saves buyers significant renovation costs
• No extension simplifies approval and resale process
• Practical layout suitable for long-term stay
• Located in a consistently popular and well-supported neighbourhood
This is an excellent opportunity for buyers seeking a quality 3-room HDB in Bedok North that is ready for immediate occupation.
Contact now to arrange a viewing and experience the unit in person.
This unit offers a clean, efficient layout with tasteful finishes, making it suitable for couples, small families, or buyers looking for a fuss-free purchase. With no extension required, buyers can enjoy a smoother transaction timeline and peace of mind.
Unit Highlights
• 3-Room HDB
• Beautifully renovated with modern finishes
• No extension (ideal for straightforward resale transaction)
• Bright and airy living spaces with good natural ventilation
• Functional layout with excellent space optimisation
• Well-maintained and move-in ready condition
The living and dining areas are designed to feel open and welcoming, perfect for everyday living or entertaining guests. Bedrooms are well-proportioned, providing comfort and privacy, while the kitchen is practical and efficient for daily use.
Situated in a well-established Bedok North estate, the unit enjoys excellent accessibility and convenience:
• Easy access to public transport options
• Close to supermarkets, coffee shops and daily amenities
• Near parks and green spaces for leisure and relaxation
• Surrounded by reputable schools and childcare options
• Short drive or commute to Bedok Central and key town amenities
This mature estate offers a balance of connectivity, lifestyle convenience and family-friendly surroundings, making it highly attractive for both own-stay buyers and investors.
Why This Unit Stands Out
• Renovated condition saves buyers significant renovation costs
• No extension simplifies approval and resale process
• Practical layout suitable for long-term stay
• Located in a consistently popular and well-supported neighbourhood
This is an excellent opportunity for buyers seeking a quality 3-room HDB in Bedok North that is ready for immediate occupation.
Contact now to arrange a viewing and experience the unit in person.
Common facilities
Car park
Affordability
Can I afford this property?
Tell us your monthly income and expenses to see if this home fits your budget.
Mortgage breakdown
Est. monthly repayment
S$ 0 / mo
S$ 0 Principal
S$ 0 Interest
Upfront costs
Total downpayment
S$ 0
Downpayment
S$ 0 Loan amount at 0% Loan-to-value
547A Bedok North Avenue 1
FAQs
The sale price of this unit at 547A Bedok North Avenue 1 is S$ 650,000.
Current PSF at 547A Bedok North Avenue 1 is about S$ 887.98 psf.
The estimated loan repayment is S$ 2,016 / mo.
547A Bedok North Avenue 1 is located at 547A Bedok North Avenue 1 Bedok / Upper East Coast East Coast (D15-16).
Floor size of this unit at 547A Bedok North Avenue 1 is 732 sqft.
Explore other options in and around Bedok / Upper East Coast
Based on the property criteria, you might be interested on the following
HDB Flat For Sale
Show MoreNearest MRT Stations















