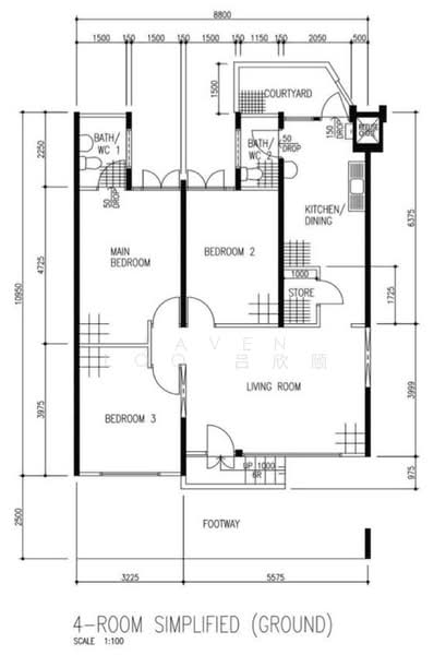
532 Hougang Avenue 6 - 2 Units for Sale
Map View
We’ve shown you all the matches
Almost there!
Refining your recommendations.
This may take a few seconds...
532 Hougang Avenue 6
532 Hougang Avenue 6 530532(D19) Hougang / Punggol / Sengkang
Summary
532 Hougang Avenue 6
Read more
Project details
TypeHDB
PriceS$ 580K - 819K
Completion year1986
Tenure99-year Leasehold
No. of blocks1
No. of floors10
DeveloperHousing & Development Board (HDB)
Explore PropertyGuru
Properties by ownership











