523 Serangoon North Avenue 4
523 Serangoon North Avenue 4
S$ 675,000
3
Beds
2
Baths
1,119
sqft (floor)
S$ 603
psf (floor)
600 m (7 mins) from CR9 Serangoon North MRT
About this property
Spacious, quiet. North-South facing. Rosyth School only 200m away
Spacious 4rm flat. Quiet facing.
Just 200m away from Rosyth School, 600m from Bowen Secondary School
NS facing. Door facing South
Mid floor
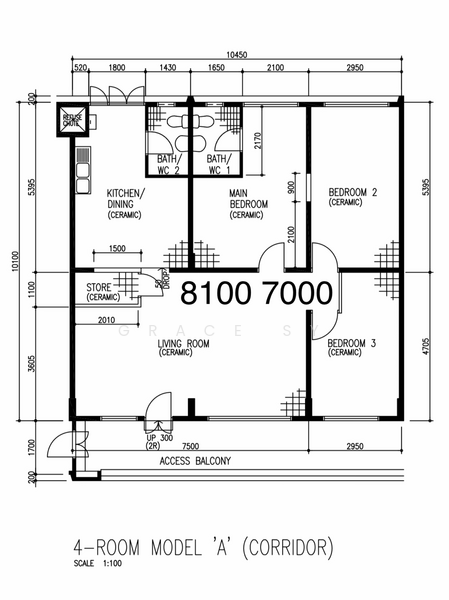
Simple renovation, Corridor unit.
Very rectangular unit, no odd corners
Call Grace @ 8***** for viewing
~350m from future Serangoon North Cross Island Line (CR9), about 4-5mins walk away!!!
~400m or more to Popular, KLA Tencor, UTAC, STM, AEM, Daikin, Ang Mo Kuo Industrial Park
Provision shop at L1 void deck of this block itself.
~200m away from coffeeshop / market
~350m away from Sheng Siong supermarket
3 bus stops to Hougang 1
Other nearby schools are
- International French School
- Serangoon Garden Secondary School
- Xinmin Primary School
- Xinmin Secondary School
- Hougang Primary School
- Hougang Secondary School
Just 200m away from Rosyth School, 600m from Bowen Secondary School
NS facing. Door facing South
Mid floor
Simple renovation, Corridor unit.
Very rectangular unit, no odd corners
Call Grace @ 8***** for viewing
~350m from future Serangoon North Cross Island Line (CR9), about 4-5mins walk away!!!
~400m or more to Popular, KLA Tencor, UTAC, STM, AEM, Daikin, Ang Mo Kuo Industrial Park
Provision shop at L1 void deck of this block itself.
~200m away from coffeeshop / market
~350m away from Sheng Siong supermarket
3 bus stops to Hougang 1
Other nearby schools are
- International French School
- Serangoon Garden Secondary School
- Xinmin Primary School
- Xinmin Secondary School
- Hougang Primary School
- Hougang Secondary School
Amenities
Air-conditioning
Cooker hob/hood
Water heater
Common facilities
Car park
Affordability
Can I afford this property?
Tell us your monthly income and expenses to see if this home fits your budget.
Mortgage breakdown
Est. monthly repayment
S$ 0 / mo
S$ 0 Principal
S$ 0 Interest
Upfront costs
Total downpayment
S$ 0
Downpayment
S$ 0 Loan amount at 0% Loan-to-value
523 Serangoon North Avenue 4

523 Serangoon North Avenue 4
View project detailsFAQs
The sale price of this unit at 523 Serangoon North Avenue 4 is S$ 675,000.
Current PSF at 523 Serangoon North Avenue 4 is about S$ 603.22 psf.
The estimated loan repayment is S$ 2,013 / mo.
523 Serangoon North Avenue 4 is located at 523 Serangoon North Avenue 4 Hougang / Punggol / Sengkang Serangoon / Thomson (D19-20).
Floor size of this unit at 523 Serangoon North Avenue 4 is 1,119 sqft.
Explore other options in and around Hougang / Punggol / Sengkang
Based on the property criteria, you might be interested on the following
HDB Flat For Sale
Show MoreNearest MRT Stations