467B Admiralty Drive
467B Admiralty Drive
S$ 638,000
Starting From3
Beds
2
Baths
1,237
sqft (floor)
S$ 516
psf (floor)
1 km (12 mins) from NS11 Sembawang MRT
About this property
Living by the river & enjoying the beauty of the park, quiet & serene.
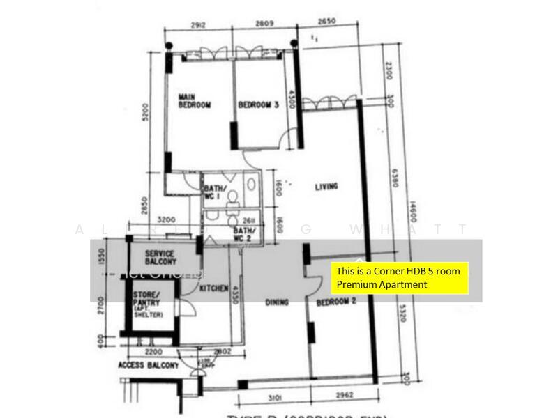
✨ For Sale: Rare 5-Room HDB, Corner Unit with Unblocked View
“Rare 5-room premium apartment in Blue Riverview, Admiralty Drive: spacious ~1,238 sq ft, quiet green estate in Sembawang, close to MRT and schools — great for families who want value + comfort. Viewing strongly recommended as units like this move quickly.”
Your dream HDB: spacious 5-room, high-floor corner unit with privacy
Living by the riverside and enjoying the beauty of the park and park
connectors.
Staying in the quiet and serene ambience of Admiralty Drive estate
Location & Estate Context
• The block is in the estate commonly known as Blue Riverview (which comprises Blocks 467, 467A, 467B, 468A–D, 469, 469A–B) along Admiralty Drive in the town of Sembawang, North Region of Singapore. SLA App+2EdgeProp+2
• Block is completed circa 2000, with a lease commencement from 2001 — so roughly ~99-year lease from that date (remaining about 83 years) for Block 467. StackProperty+1
• Flat types: includes 4-room, 5-room and Executive flats. EdgeProp+1
• Floor count: Highest floor ~16. StackProperty+1
• Neighbourhood vibe: Sembawang is quieter than the inner-city, has green pockets, and is increasingly well-connected in the North. The estate is attractive for families wanting more space and a calmer environment. EdgeProp+1
Category Important Amenities
Trains (MRT)
Sembawang (NS11) 0.70 km
Bus Stops
Blk 478 (Bus: 962, 962B, 859, 859B) 0.23 km
Groceries & Supermarts
COLD STORAGE 0.25 km
GIANT 0.32 km
FORTUNE SUPERMARKET 0.37 km
FAIRPRICE 0.56 km
ANY MO SUPERMARKET 0.66 km
Schools (Primary, Secondary, Integrated, International, Kindergarten)
Canberra Secondary School 0.11 km
Canberra Primary School 0.19 km
Endeavour Primary School 0.39 km
Northoaks Primary School 0.49 km
Sembawang Secondary School 0.82 km
Wellington Primary School 0.88 km
Lifestyle Home
Home TeamNS - Sembawang Resort 1.09 km
“Rare 5-room premium apartment in Blue Riverview, Admiralty Drive: spacious ~1,238 sq ft, quiet green estate in Sembawang, close to MRT and schools — great for families who want value + comfort. Viewing strongly recommended as units like this move quickly.”
Your dream HDB: spacious 5-room, high-floor corner unit with privacy
Living by the riverside and enjoying the beauty of the park and park
connectors.
Staying in the quiet and serene ambience of Admiralty Drive estate
Location & Estate Context
• The block is in the estate commonly known as Blue Riverview (which comprises Blocks 467, 467A, 467B, 468A–D, 469, 469A–B) along Admiralty Drive in the town of Sembawang, North Region of Singapore. SLA App+2EdgeProp+2
• Block is completed circa 2000, with a lease commencement from 2001 — so roughly ~99-year lease from that date (remaining about 83 years) for Block 467. StackProperty+1
• Flat types: includes 4-room, 5-room and Executive flats. EdgeProp+1
• Floor count: Highest floor ~16. StackProperty+1
• Neighbourhood vibe: Sembawang is quieter than the inner-city, has green pockets, and is increasingly well-connected in the North. The estate is attractive for families wanting more space and a calmer environment. EdgeProp+1
Category Important Amenities
Trains (MRT)
Sembawang (NS11) 0.70 km
Bus Stops
Blk 478 (Bus: 962, 962B, 859, 859B) 0.23 km
Groceries & Supermarts
COLD STORAGE 0.25 km
GIANT 0.32 km
FORTUNE SUPERMARKET 0.37 km
FAIRPRICE 0.56 km
ANY MO SUPERMARKET 0.66 km
Schools (Primary, Secondary, Integrated, International, Kindergarten)
Canberra Secondary School 0.11 km
Canberra Primary School 0.19 km
Endeavour Primary School 0.39 km
Northoaks Primary School 0.49 km
Sembawang Secondary School 0.82 km
Wellington Primary School 0.88 km
Lifestyle Home
Home TeamNS - Sembawang Resort 1.09 km
Amenities
Air conditioner
Bed
Cabinets
Covered car parking
Affordability
Can I afford this property?
Tell us your monthly income and expenses to see if this home fits your budget.
Mortgage breakdown
Est. monthly repayment
S$ 0 / mo
S$ 0 Principal
S$ 0 Interest
Upfront costs
Total downpayment
S$ 0
Downpayment
S$ 0 Loan amount at 0% Loan-to-value
467B Admiralty Drive

467B Admiralty Drive
View project detailsFAQs
The sale price of this unit at 467B Admiralty Drive is S$ 638,000.
Current PSF at 467B Admiralty Drive is about S$ 515.76 psf.
The estimated loan repayment is S$ 1,978 / mo.
467B Admiralty Drive is located at 467B Admiralty Drive Sembawang / Yishun North (D25-28).
Floor size of this unit at 467B Admiralty Drive is 1,237 sqft.
Explore other options in and around Sembawang / Yishun
Based on the property criteria, you might be interested on the following
HDB Flat For Sale
Show MoreNearest MRT Stations














