40 Cambridge Road
40 Cambridge Road
S$ 948,000
Negotiable3
Beds
2
Baths
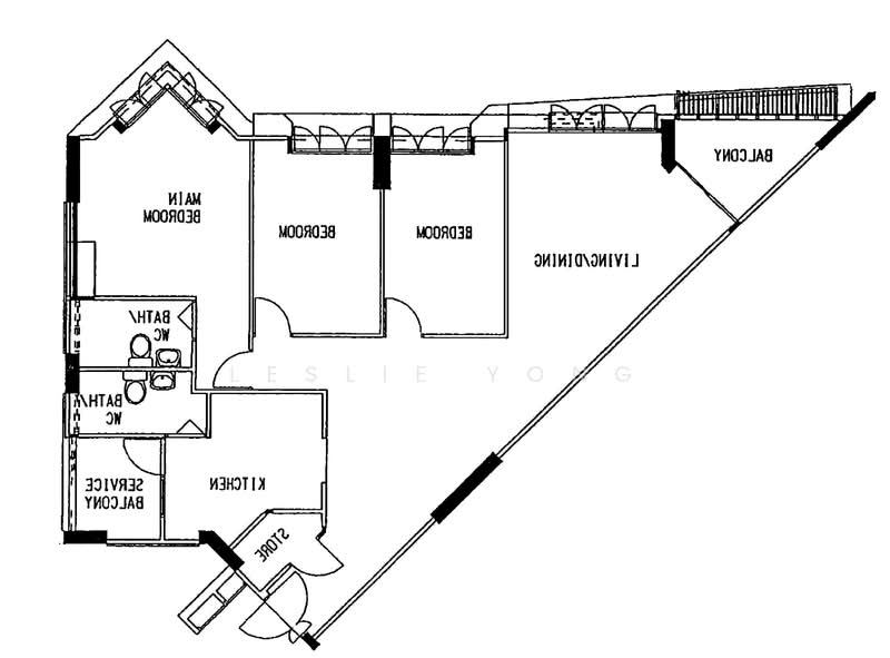
1,292
sqft (floor)
S$ 734
psf (floor)
1 km (12 mins) from NE8 Farrer Park MRT
1.2 km (15 mins) from NS20 Novena MRT
About this property
HDB 5 Room, Corner unit with unobstructed views
Discover your dream home in this spacious -HDB 5 Room located at 40, Cambridge Road, Singapore, available for sale from
2*****
. Spanning 1292 sqft, this delightful unit is perfect for families seeking comfort and convenience. The property features a cozy balcony for relaxation, air conditioning for your comfort, and covered car parking for your convenience. You'll love the proximity to Novena MRT (1.2 km) and Farrer Park MRT (1.5 km), making commuting a breeze. For families, Concept Math Novena (0.7 km) and St. Joseph's Institution Junior (0.9 km) are excellent educational options nearby. Grocery shopping is easy with CS Fresh (1.1 km) and Saravana Stores Pte. Ltd. (1.3 km) just a short distance away. Enjoy shopping and entertainment at Square 2 (1.2 km) and Galaxy World Indoor (1.4 km). This prime location offers a vibrant lifestyle with everything you need within reach. Don’t miss this opportunity to own a beautiful home in a sought-after area. Act now and make it yours!
Amenities
Air conditioner
Balcony
Covered car parking
Affordability
Can I afford this property?
Tell us your monthly income and expenses to see if this home fits your budget.
Mortgage breakdown
Est. monthly repayment
S$ 0 / mo
S$ 0 Principal
S$ 0 Interest
Upfront costs
Total downpayment
S$ 0
Downpayment
S$ 0 Loan amount at 0% Loan-to-value
40 Cambridge Road

40 Cambridge Road
View project detailsFAQs
The sale price of this unit at 40 Cambridge Road is S$ 948,000.
Current PSF at 40 Cambridge Road is about S$ 733.75 psf.
The estimated loan repayment is S$ 2,827 / mo.
40 Cambridge Road is located at 40 Cambridge Road Farrer Park / Serangoon Rd City & South West (D01-08).
Floor size of this unit at 40 Cambridge Road is 1,292 sqft.
Explore other options in and around Farrer Park / Serangoon Rd
Based on the property criteria, you might be interested on the following
HDB Flat For Sale
Show MoreNearest MRT Stations














