383 Bukit Batok West Avenue 5 - 3 Units for Sale
Map View
We’ve shown you all the matches
Almost there!
Refining your recommendations.
This may take a few seconds...
383 Bukit Batok West Avenue 5
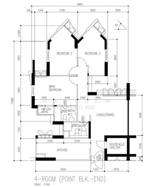
383 Bukit Batok West Avenue 5 650383(D23) Dairy Farm / Bukit Panjang / Choa Chu Kang
Summary
383 Bukit Batok West Avenue 5
Read more
Project details
TypeHDB
PriceS$ 580K - 764K
Completion year2004
Tenure99-year Leasehold
No. of blocks1
No. of floors28
DeveloperHousing & Development Board (HDB)
Explore PropertyGuru
Properties by ownership





















