3 Beach Road

3 Beach Road

S$ 485,000

Starting From

Beds

2

Beds

Baths

2

Baths

sqft (floor)

731

sqft (floor)

auto-size-o

S$ 663

psf (floor)


660 m (8 mins) from CC5 Nicoll Highway MRT


photo

Photos

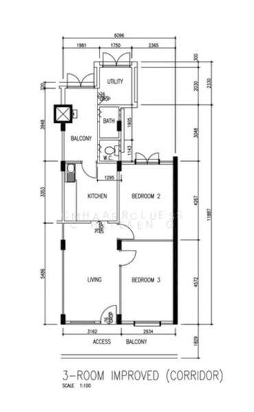
floorplan

Floor Plan

map

Map View

Property details

home-open-o
3I (Improved) HDB for sale
furnished-o
Unfurnished
document-with-lines-o
TOP in 1970
calendar-days-o
99-year lease
calendar-time-o
Listed on 3 Jan 2026
document-with-lines-o
Listing ID - 60217180

About this property

3 Beach Road

Blk 3 Beach Road 3i Flat for Sale – High Floor Gem!
• Prime Location: Blk 3 Beach Road – city-fringe convenience in a mature estate.
• High Floor Perks: Naturally bright and spacious with excellent ventilation.
• Lease Details: Balance of 52 years remaining – solid for long-term value.
• Smart Layout: 2 bedrooms additional utility room (perfect for study, storage or wardrobe).
• Practical Bathroom: Separate shower and toilet for daily ease.
• Renovation Ready: Ideal blank canvas – customise to your dream home style.
• Urgent Action: Grab now before it’s gone – limited high-floor units!
Contact now for full details and viewing!
Amenities
kitchen-o

Cooker hob/hood

original-condition-o

Original condition

Affordability

Can I afford this property?

Tell us your monthly income and expenses to see if this home fits your budget.

Mortgage breakdown
Est. monthly repayment
S$ 0 / mo
0%
0%
S$ 0 Principal
S$ 0 Interest
Upfront costs
Total downpayment
S$ 0
0%
0%
Downpayment
S$ 0 Loan amount at 0% Loan-to-value

S$
S$
%
Yrs
Key to home analytics
Track this home's value
Get insights on past sales, rentals, and value trends for this home
trend iconTrack now

3 Beach Road

Project Image
FAQs
The sale price of this unit at 3 Beach Road is S$ 485,000.
Current PSF at 3 Beach Road is about S$ 663.47 psf.
The estimated loan repayment is S$ 1,504 / mo.
3 Beach Road is located at 3 Beach Road Beach Road / Bugis / Rochor City & South West (D01-08).
Floor size of this unit at 3 Beach Road is 731 sqft.