195 Golden Clover
195 Kim Keat Avenue
S$ 390,000
Negotiable2
Beds
1
Bath
710
sqft (floor)
S$ 549
psf (floor)
About this property
Move-in condition, save on renovation, genuine seller
Move-In Condition:
- Full home renovation done just 6 years ago (~40k)
- New A/C systems (~1 yr old)
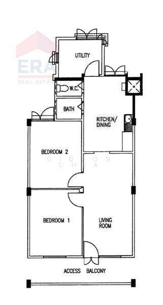
- Functional utility room that can be converted to extra bedroom (3 bedrooms total)
Future Potential:
Upcoming integrated development in Toa Payoh - New Sports Hub, Toa Payoh Polyclinic and a library among several other recreational and community facilities. Surrounded by new BTO projects with new facilities great for all families young and old.
Superb connectivity:
- 3 bus stops to multiple MRT stations - Toa Payoh (North-South Line), Potong Pasir (North-East Line), Geylang Bahru (Downtown Line)
- Right beside PIE and CTE
Great convenience:
- Walking distance to Giant Supermarket, Kim Keat Palm Market & Food Centre, Toa Payoh Polyclinic, Toa Payoh SAFRA
Primary schools:
[<1 km]
- PEI CHUN PUBLIC SCHOOL
- HONG WEN SCHOOL
- BENDEMEER PRIMARY SCHOOL
[ 1 - 2 km]
- ST. JOSEPH'S INSTITUTION JUNIOR
- CEDAR PRIMARY SCHOOL
- CHIJ PRIMARY (TOA PAYOH)
- FARRER PARK PRIMARY SCHOOL
- FIRST TOA PAYOH PRIMARY SCHOOL
- KHENG CHENG SCHOOL
- ST. GABRIEL'S PRIMARY SCHOOL
- Full home renovation done just 6 years ago (~40k)
- New A/C systems (~1 yr old)
- Functional utility room that can be converted to extra bedroom (3 bedrooms total)
Future Potential:
Upcoming integrated development in Toa Payoh - New Sports Hub, Toa Payoh Polyclinic and a library among several other recreational and community facilities. Surrounded by new BTO projects with new facilities great for all families young and old.
Superb connectivity:
- 3 bus stops to multiple MRT stations - Toa Payoh (North-South Line), Potong Pasir (North-East Line), Geylang Bahru (Downtown Line)
- Right beside PIE and CTE
Great convenience:
- Walking distance to Giant Supermarket, Kim Keat Palm Market & Food Centre, Toa Payoh Polyclinic, Toa Payoh SAFRA
Primary schools:
[<1 km]
- PEI CHUN PUBLIC SCHOOL
- HONG WEN SCHOOL
- BENDEMEER PRIMARY SCHOOL
[ 1 - 2 km]
- ST. JOSEPH'S INSTITUTION JUNIOR
- CEDAR PRIMARY SCHOOL
- CHIJ PRIMARY (TOA PAYOH)
- FARRER PARK PRIMARY SCHOOL
- FIRST TOA PAYOH PRIMARY SCHOOL
- KHENG CHENG SCHOOL
- ST. GABRIEL'S PRIMARY SCHOOL
Amenities
Air conditioner
Fridge
Helper's room
Renovated
Common facilities
Car park
Affordability
Can I afford this property?
Tell us your monthly income and expenses to see if this home fits your budget.
Mortgage breakdown
Est. monthly repayment
S$ 0 / mo
S$ 0 Principal
S$ 0 Interest
Upfront costs
Total downpayment
S$ 0
Downpayment
S$ 0 Loan amount at 0% Loan-to-value
195 Golden Clover

195 Kim Keat Avenue
View project detailsWhat’s your enquiry about?
FAQs
The sale price of this unit at 195 Golden Clover is S$ 390,000.
Current PSF at 195 Golden Clover is about S$ 549.30 psf.
The estimated loan repayment is S$ 1,209 / mo.
195 Golden Clover is located at 195 Kim Keat Avenue Balestier / Toa Payoh Balestier / Geylang (D12-14).
Floor size of this unit at 195 Golden Clover is 710 sqft.
Explore other options in and around Balestier / Toa Payoh
Based on the property criteria, you might be interested on the following
HDB Flat For Sale
Show MoreNearest MRT Stations
What’s your enquiry about?










