16 Telok Blangah Crescent
16 Telok Blangah Crescent
S$ 360,000
3
Beds
1
Bath
699
sqft (floor)
S$ 515
psf (floor)
About this property
C.H.E.A.P! Rare! 2 bedroom plus extra Utility room. Beautiful unit!
MUST VIEW!! MUST SELL!!
New list
Beautiful unit
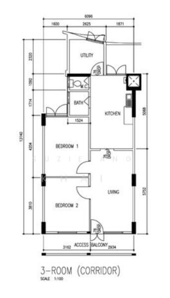
3”I” 65sqm / 699sqft
** 2 BEDROOM PLUS EXTRA UTILITY ROOM **
Lease Start date 1975
Balance lease 49 years
Low floor lover
Clean corridor
Unblocked greenery view
North South facing
Very breezy
Efficient layout
Best to create your dream home
Pure selling.. no extension needed
Immediate submission
!! Serious and motivated seller !!
Mins walk to amenities such as Market & Hawker Centre, SAFRA Clubhouse (Mount Faber) and Mount Faber Park
Many buses available to different part of the city. Bus No. 121, 123, 131,195, 65, 855, 272, 124, 146, 175, 176, 273 & 57
Short Drive to Tiong Bahru Plaza, Vivo City and Valley Point
Within 1km to famous Radin Mas Primary Sch, CHIJ (Kellock), Zhangde Primary School
Best for Nature lovers… walkable to Mount Faber Park and Telok Blangah Hill Park
Hurry! Call Suzie @ 9011.6693 for viewing appt now
Suzie @ 9011.6693
New list
Beautiful unit
3”I” 65sqm / 699sqft
** 2 BEDROOM PLUS EXTRA UTILITY ROOM **
Lease Start date 1975
Balance lease 49 years
Low floor lover
Clean corridor
Unblocked greenery view
North South facing
Very breezy
Efficient layout
Best to create your dream home
Pure selling.. no extension needed
Immediate submission
!! Serious and motivated seller !!
Mins walk to amenities such as Market & Hawker Centre, SAFRA Clubhouse (Mount Faber) and Mount Faber Park
Many buses available to different part of the city. Bus No. 121, 123, 131,195, 65, 855, 272, 124, 146, 175, 176, 273 & 57
Short Drive to Tiong Bahru Plaza, Vivo City and Valley Point
Within 1km to famous Radin Mas Primary Sch, CHIJ (Kellock), Zhangde Primary School
Best for Nature lovers… walkable to Mount Faber Park and Telok Blangah Hill Park
Hurry! Call Suzie @ 9011.6693 for viewing appt now
Suzie @ 9011.6693
Affordability
Can I afford this property?
Tell us your monthly income and expenses to see if this home fits your budget.
Mortgage breakdown
Est. monthly repayment
S$ 0 / mo
S$ 0 Principal
S$ 0 Interest
Upfront costs
Total downpayment
S$ 0
Downpayment
S$ 0 Loan amount at 0% Loan-to-value
16 Telok Blangah Crescent

16 Telok Blangah Crescent
View project detailsFAQs
The sale price of this unit at 16 Telok Blangah Crescent is S$ 360,000.
Current PSF at 16 Telok Blangah Crescent is about S$ 515.02 psf.
The estimated loan repayment is S$ 1,116 / mo.
16 Telok Blangah Crescent is located at 16 Telok Blangah Crescent Harbourfront / Telok Blangah City & South West (D01-08).
Floor size of this unit at 16 Telok Blangah Crescent is 699 sqft.
Explore other options in and around Harbourfront / Telok Blangah
Based on the property criteria, you might be interested on the following
HDB Flat For Sale
Show MoreNearest MRT Stations


















