154 Jalan Teck Whye
154 Jalan Teck Whye
S$ 699,999
Starting From3
Beds
2
Baths
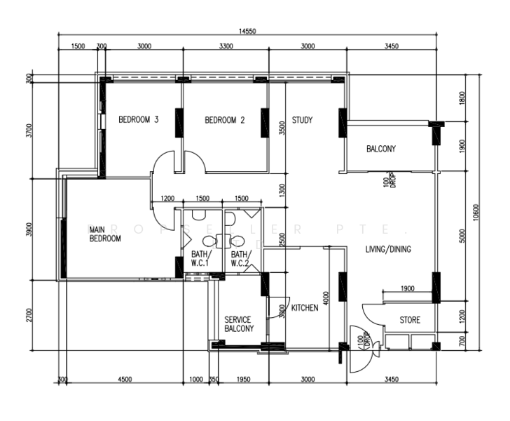
1,302
sqft (floor)
S$ 538
psf (floor)
280 m (3 mins) from BP5 Phoenix LRT
About this property
High-Floor Corner Unit, No Extension Needed
CEA Registration: L3010858B / R067393Z
Discover comfortable living in this high-floor corner unit at 154 Jalan Teck Whye, offering a bright and breezy environment perfect for families. This northeast-facing home enjoys good natural light and ventilation throughout the day. The unit is in its original condition, giving buyers the exciting opportunity to redesign and create their dream home exactly as they envision — with no extension of stay required.
Conveniently located just 3 minutes’ walk to Phoenix LRT Station, this home provides easy access to transport, groceries, and daily essentials. You’re just minutes away from Sheng Siong Supermarket, nearby eateries, and FairPrice at Jalan Teck Whye, ensuring everything you need is within reach. Families will also appreciate being within 1–2km of reputable schools like Teck Whye Primary, West View Primary, and Beacon Primary.
With its high-floor location and unbeatable accessibility, this corner unit is a hidden gem — book a viewing today and see the potential for yourself!
Exclusive Propseller Listing!
Size:
- 1302 sqft
- 3 bedrooms + 2 bathrooms
Attributes:
- EIP Quota: None not eligible
- Extension needed: None
- Unit orientation: Corner unit
- High floor unit
- Original condition
- Main door facing: North-East
Convenience:
- 4 min walk to the nearest bus stop (bus services: 67, 160, 180, etc.)
- 10 min walk to Sheng Siong Supermarket
- 15 min walk to FairPrice Jalan Teck Whye Supermarket
- 1 min walk to the nearest eateries
- 3 min walk to Phoenix LRT Station (BP5)
- 8 min walk to Bukit Panjang MRT (DT1)
- Within 1-2km of these schools: Teck Whye Primary School, West View Primary School, Beacon Primary School, and more.
Discover comfortable living in this high-floor corner unit at 154 Jalan Teck Whye, offering a bright and breezy environment perfect for families. This northeast-facing home enjoys good natural light and ventilation throughout the day. The unit is in its original condition, giving buyers the exciting opportunity to redesign and create their dream home exactly as they envision — with no extension of stay required.
Conveniently located just 3 minutes’ walk to Phoenix LRT Station, this home provides easy access to transport, groceries, and daily essentials. You’re just minutes away from Sheng Siong Supermarket, nearby eateries, and FairPrice at Jalan Teck Whye, ensuring everything you need is within reach. Families will also appreciate being within 1–2km of reputable schools like Teck Whye Primary, West View Primary, and Beacon Primary.
With its high-floor location and unbeatable accessibility, this corner unit is a hidden gem — book a viewing today and see the potential for yourself!
Exclusive Propseller Listing!
Size:
- 1302 sqft
- 3 bedrooms + 2 bathrooms
Attributes:
- EIP Quota: None not eligible
- Extension needed: None
- Unit orientation: Corner unit
- High floor unit
- Original condition
- Main door facing: North-East
Convenience:
- 4 min walk to the nearest bus stop (bus services: 67, 160, 180, etc.)
- 10 min walk to Sheng Siong Supermarket
- 15 min walk to FairPrice Jalan Teck Whye Supermarket
- 1 min walk to the nearest eateries
- 3 min walk to Phoenix LRT Station (BP5)
- 8 min walk to Bukit Panjang MRT (DT1)
- Within 1-2km of these schools: Teck Whye Primary School, West View Primary School, Beacon Primary School, and more.
Affordability
Can I afford this property?
Tell us your monthly income and expenses to see if this home fits your budget.
Mortgage breakdown
Est. monthly repayment
S$ 0 / mo
S$ 0 Principal
S$ 0 Interest
Upfront costs
Total downpayment
S$ 0
Downpayment
S$ 0 Loan amount at 0% Loan-to-value
154 Jalan Teck Whye

154 Jalan Teck Whye
View project detailsFAQs
The sale price of this unit at 154 Jalan Teck Whye is S$ 699,999.
Current PSF at 154 Jalan Teck Whye is about S$ 537.63 psf.
The estimated loan repayment is S$ 2,088 / mo.
154 Jalan Teck Whye is located at 154 Jalan Teck Whye Dairy Farm / Bukit Panjang / Choa Chu Kang West (D22-24).
Floor size of this unit at 154 Jalan Teck Whye is 1,302 sqft.
Explore other options in and around Dairy Farm / Bukit Panjang / Choa Chu Kang
Based on the property criteria, you might be interested on the following
HDB Flat For Sale
Show MoreNearest MRT Stations




















