153B Bedok South Road
153B Bedok South Road
S$ 1,090,000
3
Beds
2
Baths
1,001
sqft
S$ 1,089
psf
560 m (7 mins) from TE30 Bedok South MRT
1.3 km (16 mins) from TE29 Bayshore MRT
About this property
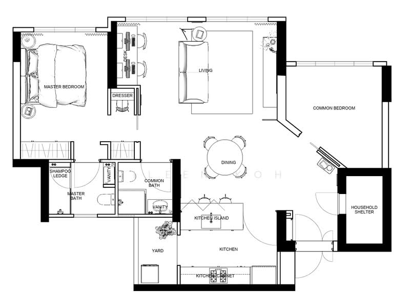
High floor corner unit. Fully renovated. Just MOP.
- Just MOP
- Above level 12
- Converted 2 common rooms to a large living room with study area
- Master bedroom ensuite
- 2nd bedroom (can fit double bed with study area)
- Kitchen with expensive white marbled island top and marble backsplash.
- Kitchen comes with quality finishes and sliding/folding doors to have a choice whether to have open concept or enclose it
- Household shelter (Maid's room or storage room)
- Suitable for couples (with 1 child) who is looking for modern layout and spacious living room
- Quiet, bright and breezy
2 minutes walk to Temasek Primary School (Within 1km).
Supermarkets like Fairprice, Cold Storage, Sheng Siong within 1km.
Close to Siglap Community Club and East Coast Recreation area.
Call Eileen at 9.0.2.2.5.5.9.9. for an exclusive viewing.
Amenities
Air conditioner
Bedroom cabinets
Modern kitchen furnishing
Common facilities
Car park
Affordability
Tell us your monthly income and expenses to see if this home fits your budget.
153B Bedok South Road
An upcoming 99-year leasehold HDB flat in Bedok, 153B Bedok South Road is one of the blocks in Bedok South Horizon BTO. Located amidst the private enclaves of Limau estate and East Coast, Bedok South Horizon enjoys privacy and tranquillity. 153B Bedok South Road also enjoys close proximity to popular schools and the scenic East Coast Park (ECP). Accessibility is also another selling point for 153B Bedok South Road with the upcoming Bedok South MRT station on the Thomson-East Coast Line (TEL) that’s set to begin operation by 2025. The new MRT station makes it convenient to travel to Marine Parade and the Central Area. Expected to be ready by 2022, 153B Bedok South Road will be one of the newer developments in the Bedok (District 16). This means that you’ll be buying a property with a fresh 99-year lease. Bedok South Horizon is located right next to Bedok South MRT station on the TEL. The entrance is at the edge of Bedok South Horizon, making it highly convenient and accessible for residents at 153B Bedok South Road. 153B Bedok South Road is also six bus stops away from Tanah Merah MRT station on the East-West Line (EWL), giving residents travelling options between the two MRT lines. There are several preschools in the area, including private preschools such as Sunflower Preschool, Alphabet Playhouse @ East Coast, Wharton Preschool East Coast Centre, and Star Tots Playgroup. Apart from that, there are also public preschools like PCF Sparkletots. There are various school choices around Bedok South Horizon. Temasek Primary School is one of them. It is a popular school that is also affiliated with Temasek Secondary School just across the street from 153B Bedok South Road. Since 153B Bedok South Road is located right next to Temasek Primary School, residents can apply for priority admission into the school. Residents can find general practitioner clinics around Bedok South Horizon at 58 New Upper Changi Road and Bedok Town Centre. For subsidised healthcare, the SingHealth Polyclinic is located in Heartbeat@Bedok. Shopping malls can be found at Bedok Town Centre where you have Bedok Mall and Bedok Point. Besides the two shopping malls, there are also many neighbourhood-level shops and supermarkets like Sheng Siong and NTUC FairPrice. Neighbourhood-level shops are also conveniently located at the foot of blocks around 153B Bedok South Road. There are several coffee shops and minimarts both at Bedok South Horizon and neighbouring blocks like 168 Bedok South Road and 69 Bedok South Avenue 3. Popular food stalls like 58 Minced Meat Mee and Bei Chuan Ting Fish Soup at 58 New Upper Changi Market & Hawker Centre are just 15 minutes away on foot. The ECP is 700m away from 153B Bedok South Road and accessible via the nearby Bedok Park Connector. The popular park is a spot for physical activities like cycling and jogging and also a quiet place for a weekend getaway. The surrounding schools at 153B Bedok South Road are under the SportsSG dual-use scheme. Under the scheme, the public can use school facilities such as field and indoor sports hall for sports like basketball, volleyball and badminton at neighbouring schools such as Temasek Primary School, Temasek Secondary School, Bedok View Secondary School, and Bedok South Secondary School. Residents can also find facilities like gym and fitness studios and sign up for recreational after-work workouts at Heartbeat@Bedok. Bedok South Horizon is nearby both the Changi Business Park and logistics hub in the Changi area. Changi Business Park is a tech hub for the technology arm of multinational corporations such as IBM, Xilinx, Nestle, JP Morgan, Standard Chartered Bank, and DBS Bank. The Changi logistics hub is where multinational logistics firms like DB Schenker, SF Express, DHL, and U-Freight operate. 153B Bedok South Road at Bedok South Horizon has 100 units in total with a mix of 4-room (32 units) and 5-room (68 units) flats across 18 storeys.
View project details




















