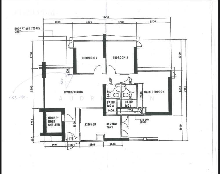
145 Lorong 2 Toa Payoh - 2 Units for Sale
Map View
We’ve shown you all the matches
Almost there!
Refining your recommendations.
This may take a few seconds...
145 Lorong 2 Toa Payoh
145 Lorong 2 Toa Payoh 310145(D12) Balestier / Toa Payoh
Summary
145 Lorong 2 Toa Payoh
Read more
Project details
TypeHDB
PriceS$ 980K - 1,000K
Completion year2005
Tenure99-year Leasehold
No. of blocks1
No. of floors40
DeveloperHousing & Development Board (HDB)
Explore PropertyGuru
Properties by ownership












