141 Bedok Reservoir Road
141 Bedok Reservoir Road
S$ 550,000
3
Beds
2
Baths
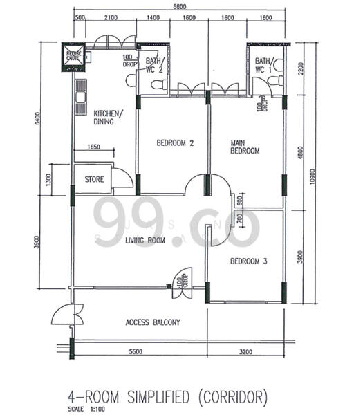
904
sqft (floor)
S$ 608
psf (floor)
600 m (7 mins) from DT28 Kaki Bukit MRT
About this property
No Extension needed
Mid floor, corridor unit
No extension needed
Asking $550,000
Near various amenities
Near MRT (mins walk)
Quiet facing
Main door facing Southeast
Kitchen facing Northwest
Call Jason @ 8***** to view
No extension needed
Asking $550,000
Near various amenities
Near MRT (mins walk)
Quiet facing
Main door facing Southeast
Kitchen facing Northwest
Call Jason @ 8***** to view
Amenities
Air conditioner
Affordability
Can I afford this property?
Tell us your monthly income and expenses to see if this home fits your budget.
Mortgage breakdown
Est. monthly repayment
S$ 0 / mo
S$ 0 Principal
S$ 0 Interest
Upfront costs
Total downpayment
S$ 0
Downpayment
S$ 0 Loan amount at 0% Loan-to-value
141 Bedok Reservoir Road

141 Bedok Reservoir Road
View project detailsFAQs
The sale price of this unit at 141 Bedok Reservoir Road is S$ 550,000.
Current PSF at 141 Bedok Reservoir Road is about S$ 608.41 psf.
The estimated loan repayment is S$ 1,705 / mo.
141 Bedok Reservoir Road is located at 141 Bedok Reservoir Road Bedok / Upper East Coast East Coast (D15-16).
Floor size of this unit at 141 Bedok Reservoir Road is 904 sqft.
Explore other options in and around Bedok / Upper East Coast
Based on the property criteria, you might be interested on the following
HDB Flat For Sale
Show MoreNearest MRT Stations













