120A Kim Tian Place
120A Kim Tian Place
S$ 1,180,000
Starting From3
Beds
2
Baths
1,238
sqft (floor)
S$ 953
psf (floor)
570 m (7 mins) from EW17 Tiong Bahru MRT
About this property
Quiet! Unblocked! High flr! Renovated! No Extension! Tiong Bahru MRT!
Blk 120A is located along Kim Tian Road, within walking distance of Tiong Bahru MRT station, Tiong Bahru Plaza.
The property is located near a variety of amenities, including retail shops, coffeeshops, food court, and supermarkets, ensuring residents have convenient access to daily essentials.
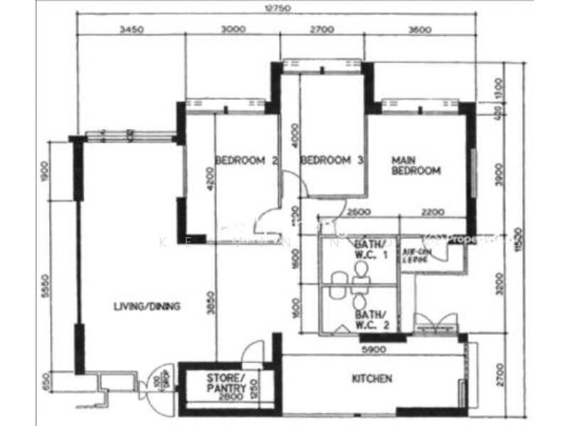
- Model: 5-Room, Improved (New Series)
- Size: 115 sqm (1238 sqft)
- Lease start: 2001
- 17th floor
- 3 Bedrooms
- 2 bathrooms
- Main door: North-East
- Living room window: South-West
- Regular layout
- Well-maintained
- Bright & breezy
- Unblocked view
- Natural daylight
- Quiet ambience
- Away from the main road
- No west sun
- Buyers can contra
- Flexible timeline
- No extension of stay is required
- No ethnic group or citizenship restriction
- Dealing with motivated sellers
Schools within 1km
ZHANGDE PRIMARY SCHOOL
CHIJ (KELLOCK)
ALEXANDRA PRIMARY SCHOOL
RADIN MAS PRIMARY SCHOOL
Viewing appointment WhatsApp 9025/2388 Kelvin Neo LS
Disclaimer:
- The price of the subject property stated is for guidance only.
- The size or area of the subject property stated is approximate; the actual size or area is based on an on-site inspection.
- Photographs and videos posted are for illustration purposes; they may differ from the subject property.
- The school's information was obtained from Onemap (a Singapore govt agency website) and was accurate at the time of the query.
The property is located near a variety of amenities, including retail shops, coffeeshops, food court, and supermarkets, ensuring residents have convenient access to daily essentials.
- Model: 5-Room, Improved (New Series)
- Size: 115 sqm (1238 sqft)
- Lease start: 2001
- 17th floor
- 3 Bedrooms
- 2 bathrooms
- Main door: North-East
- Living room window: South-West
- Regular layout
- Well-maintained
- Bright & breezy
- Unblocked view
- Natural daylight
- Quiet ambience
- Away from the main road
- No west sun
- Buyers can contra
- Flexible timeline
- No extension of stay is required
- No ethnic group or citizenship restriction
- Dealing with motivated sellers
Schools within 1km
ZHANGDE PRIMARY SCHOOL
CHIJ (KELLOCK)
ALEXANDRA PRIMARY SCHOOL
RADIN MAS PRIMARY SCHOOL
Viewing appointment WhatsApp 9025/2388 Kelvin Neo LS
Disclaimer:
- The price of the subject property stated is for guidance only.
- The size or area of the subject property stated is approximate; the actual size or area is based on an on-site inspection.
- Photographs and videos posted are for illustration purposes; they may differ from the subject property.
- The school's information was obtained from Onemap (a Singapore govt agency website) and was accurate at the time of the query.
Amenities
Air conditioner
Affordability
Can I afford this property?
Tell us your monthly income and expenses to see if this home fits your budget.
Mortgage breakdown
Est. monthly repayment
S$ 0 / mo
S$ 0 Principal
S$ 0 Interest
Upfront costs
Total downpayment
S$ 0
Downpayment
S$ 0 Loan amount at 0% Loan-to-value
120A Kim Tian Place

120A Kim Tian Place
View project detailsFAQs
The sale price of this unit at 120A Kim Tian Place is S$ 1,180,000.
Current PSF at 120A Kim Tian Place is about S$ 953.15 psf.
The estimated loan repayment is S$ 3,519 / mo.
120A Kim Tian Place is located at 120A Kim Tian Place Alexandra / Commonwealth City & South West (D01-08).
Floor size of this unit at 120A Kim Tian Place is 1,238 sqft.
Explore other options in and around Alexandra / Commonwealth
Based on the property criteria, you might be interested on the following
HDB Flat For Sale
Show MoreNearest MRT Stations