114 Lengkong Tiga
114 Lengkong Tiga
S$ 835,000
3
Beds
2
Baths
1,119
sqft (floor)
S$ 746
psf (floor)
270 m (3 mins) from EW6 Kembangan MRT
About this property
Renovated, Large Open Living Space, Open Concept Unit
*** This is a lovely home but the it may not be for you. Please read the description and view the 360 tour in the listing to check if it is suitable.
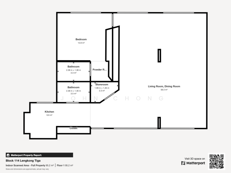
This was originally a 4 room flat.
2 of the bedrooms were knocked down to create an open concept design and layout.
One enclosed master bedroom with attached bathroom remains.
Total 2 bathrooms in this 1120 sqft unit.
Renovated unit.
Large, airy and bright living space.
No west sun.
Tranquil, peaceful and serene neighbourhood.
4 minutes sheltered walk to Kembangan MRT.
Nearby 24 hour supermarket and coffeeshop within walking distance.
Several more eateries more eateries in the the surrounding area.
No extension required.
All ethnic groups eligible.
Contact John Chong for viewing appointment.
This was originally a 4 room flat.
2 of the bedrooms were knocked down to create an open concept design and layout.
One enclosed master bedroom with attached bathroom remains.
Total 2 bathrooms in this 1120 sqft unit.
Renovated unit.
Large, airy and bright living space.
No west sun.
Tranquil, peaceful and serene neighbourhood.
4 minutes sheltered walk to Kembangan MRT.
Nearby 24 hour supermarket and coffeeshop within walking distance.
Several more eateries more eateries in the the surrounding area.
No extension required.
All ethnic groups eligible.
Contact John Chong for viewing appointment.
Amenities
Air conditioner
Bedroom cabinets
Cabinets
False ceiling
Common facilities
Car park
Affordability
Can I afford this property?
Tell us your monthly income and expenses to see if this home fits your budget.
Mortgage breakdown
Est. monthly repayment
S$ 0 / mo
S$ 0 Principal
S$ 0 Interest
Upfront costs
Total downpayment
S$ 0
Downpayment
S$ 0 Loan amount at 0% Loan-to-value
114 Lengkong Tiga

114 Lengkong Tiga
View project detailsFAQs
The sale price of this unit at 114 Lengkong Tiga is S$ 835,000.
Current PSF at 114 Lengkong Tiga is about S$ 746.20 psf.
The estimated loan repayment is S$ 2,490 / mo.
114 Lengkong Tiga is located at 114 Lengkong Tiga Eunos / Geylang / Paya Lebar Balestier / Geylang (D12-14).
Floor size of this unit at 114 Lengkong Tiga is 1,119 sqft.
Explore other options in and around Eunos / Geylang / Paya Lebar
Based on the property criteria, you might be interested on the following
Nearest MRT Stations
Nearest Schools


























