114 Ho Ching Road - 2 Units for Sale
Map View
We’ve shown you all the matches
Almost there!
Refining your recommendations.
This may take a few seconds...
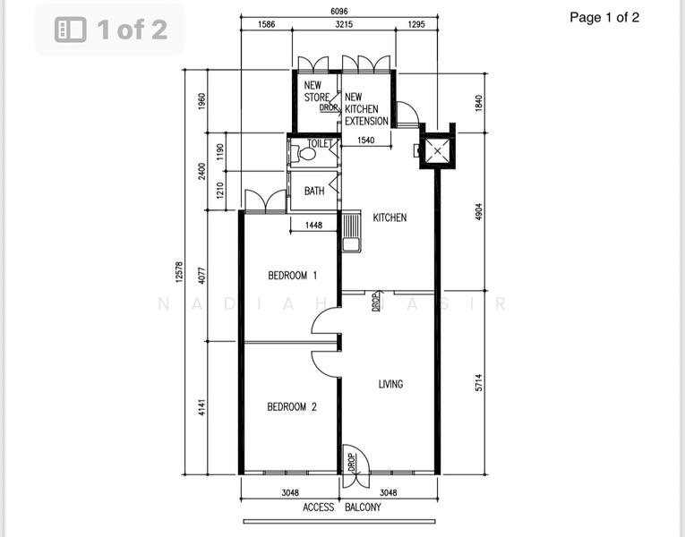
114 Ho Ching Road
114 Ho Ching Road 610114(D22) Boon Lay / Jurong / Tuas
Summary
114 Ho Ching Road
Read more
Project details
TypeHDB
PriceS$ 328K - 330K
Completion year1971
Tenure99-year Leasehold
No. of blocks1
No. of floors10
DeveloperHousing & Development Board (HDB)
Explore PropertyGuru
Properties by ownership








