103B Depot Road
103B Depot Road
S$ 980 /mo
NegotiableRoom
150
sqft (floor)
Ready to move in HDB Flat
About this property
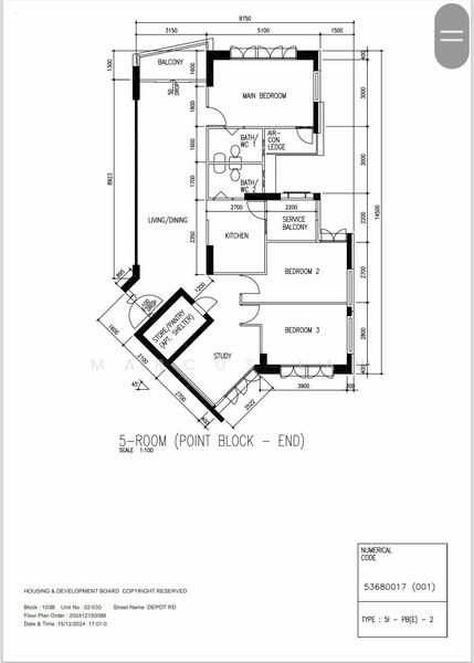
Spacious and Private HDB Common Room at 103B Depot Road
Spacious 5RM HDB at 103B Depot Road
1 Common Room available for Rent!
Unit Details:
Type: 5RM HDB
Size: 1,237 sqft
Configuration: 4 bedrooms, 2 bathrooms
Main Door Facing: South
Key Highlights:
Thoughtfully designed layout with bright and airy spaces.
Separated bedroom spaces from master bedroom. (As per floorplan)
Perfect for big family or multi-generation family with 4 bedrooms.
Spacious living and dining areas, perfect for family gatherings.
Well-maintained kitchen with ample storage and counter space.
Generously sized bedrooms that accommodate various lifestyle needs.
Prime Location:
Situated in the serene and sought-after Depot Road neighborhood.
Convenient access to public transport and major expressways.
Minutes away from amenities like supermarkets, dining options, and parks.
Proximity to reputable schools, making it ideal for families.
- **Nearby Schools:**
- Gan Eng Seng Primary School (0.60KM)
- Blangah Rise Primary School (0.72KM)
- Bukit Merah Secondary School (0.55KM)
Alexandra Retail Centre (ARC) and Anchorpoint Shopping Centre are a short drive away for shopping, dining, and groceries.
Various local eateries and hawker centers are located within the Bukit Merah neighborhood.
NTUC FairPrice: Located at Depot Heights Shopping Centre, 108 Depot Road (approximately 0.03 km away)
1 Common Room available for Rent!
Unit Details:
Type: 5RM HDB
Size: 1,237 sqft
Configuration: 4 bedrooms, 2 bathrooms
Main Door Facing: South
Key Highlights:
Thoughtfully designed layout with bright and airy spaces.
Separated bedroom spaces from master bedroom. (As per floorplan)
Perfect for big family or multi-generation family with 4 bedrooms.
Spacious living and dining areas, perfect for family gatherings.
Well-maintained kitchen with ample storage and counter space.
Generously sized bedrooms that accommodate various lifestyle needs.
Prime Location:
Situated in the serene and sought-after Depot Road neighborhood.
Convenient access to public transport and major expressways.
Minutes away from amenities like supermarkets, dining options, and parks.
Proximity to reputable schools, making it ideal for families.
- **Nearby Schools:**
- Gan Eng Seng Primary School (0.60KM)
- Blangah Rise Primary School (0.72KM)
- Bukit Merah Secondary School (0.55KM)
Alexandra Retail Centre (ARC) and Anchorpoint Shopping Centre are a short drive away for shopping, dining, and groceries.
Various local eateries and hawker centers are located within the Bukit Merah neighborhood.
NTUC FairPrice: Located at Depot Heights Shopping Centre, 108 Depot Road (approximately 0.03 km away)
Amenities
Air-conditioning
Corner unit
Low floor
Park / greenery view
Common facilities
Car park
103B Depot Road

103B Depot Road
View project detailsFAQs
There are 1 bedroom(s) with 0 bathroom(s) in this unit.
The rent of this unit at 103B Depot Road is about S$ 980 /mo.
The current rental PSF at 103B Depot Road is about S$ 6.53 psf.
103B Depot Road is located at 103B Depot Road Harbourfront / Telok Blangah City & South West (D01-08).
Floor size of this unit at 103B Depot Road is 150 sqft.
Explore other options in and around Harbourfront / Telok Blangah
Based on the property criteria, you might be interested on the following
Nearest MRT Stations











