Waterfront @ Faber
46 Faber Walk
S$ 1,999,999
Starting From4
Beds
3
Baths
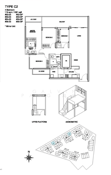
1,281
sqft (floor)
S$ 1,561
psf (floor)
About this property
C.H.E.A.P! Unblocked Greenery View! Flexible Timeline! No Extension!
---------------------------------------------
SAVE $7xxK FROM NEW LAUNCH NEXT DOOR!
Must Sell! Motivated & Sincere Seller!
4 Bedrm (hacked into 3BR + Study)
HUGE & SPACIOUS Living & Master Bedroom
Design To Your Taste With Hackable Bedrooms!
Exclusive Unblocked Greenery Views! No Neighbour Looking In Front
Super Breezy, Quiet & Serene Environment
Well-Kept & Maintained
Main Door Facing SE (from inside facing out)
Ample Basement Parking Spaces
Beautiful Pool, Gymnasium & Open Spaces
Within 1KM to Nan Hua Primary School!
Shuttle Service Provided to Clementi MRT
Short Drive to West Coast Plaza & Clementi Mall
Connected to Park Connector & Pandan Reservoir
Price Negotiable! Cobroke Welcome!
Viewing Anytime by Appointment!
Call Galvin 9.7.5.1.0.8.3.2. for An Exclusive Viewing!
*Included Virtual Staging Photos for your reference!
Amenities
Air conditioner
Balcony
Barbeque pavilion
Barbeque pits
Common facilities
24 hours security
Barbeque pits
Children's playground
Clubhouse
Affordability
Tell us your monthly income and expenses to see if this home fits your budget.
Waterfront @ Faber
Waterfront @ FaberFrom its position alongside the river in the very much up and coming District 5, Waterfront @ Faber is comprised of 210 units spread over several low rise, 5 storey blocks, in keeping with the surrounding landed property. As well as 2, 3 and 4 bed units – all with a dual key option, Waterfront @ Faber also features 11 strata landed units ranging from 2,799 to 3,035 sqft. Though the nearest MRT – Clementi on the East West Line, is 15 minutes’ walk, it is only a 2 minutes’ drive, and both Jurong with its business Parks, and the CBD are easily reachable by car or MRT.World Class Land (WCL) is a property development arm of Singapore mainboard listed Aspial Corporation Limited whose portfolio includes landed properties, condominiums and major commercial projects in Singapore. WCL is fast expanding on the international front, having established a presence in Malaysia and Australia.Waterfront @ Faber – Unique Selling PointsWaterfront living is always desirable, and Waterfront @ Faber provides that in the form of the Sungei Ulu Pandan, with the Pandan reservoir and the coast not much further away. The low rise development and area means views are unrestricted, and the proximity of Waterfront @ Faber to the AYE means commuting into the CBD or Jurong and its numerous business parks is easily and quickly achieved.Waterfront @ Faber – AccessibilityClementi MRT on the East West Line is the nearest MRT station to Waterfront @ Faber. It is a 15 minute walk away, or a 2 minute drive. From there it is just one stop to Jurong East with its selection of malls and business parks, as well as to the forthcoming Jurong Lake District. For commuters into the CBD, the MRT ride will take a little more than 20 minutes. For drivers, the AYE is very nearby, and allows access to the CBD within quarter of an hour. The park connector that runs along the river is an ideal route for joggers, cyclists and pedestrians alike.Waterfront @ Faber - Amenities & AttractionsDining near Waterfront @ Faber:OotoyaNobiroFaber Valley RestaurantCrystal Jade KitchenSwensen’sShopping near Waterfront @ Faber:Jurong Gateway (JEM, Westgate and JCube)Clementi MallSchools and Education near Waterfront @ Faber:Nan Hua Primary SchoolClementi Primary SchoolPei Tong Primary SchoolClementi Town Secondary SchoolTanglin Secondary SchoolNan Hua High SchoolNUS High School of Mathematics and ScienceWaterfront @ Faber - Project informationAs its name suggests, Waterfront @ Faber is located alongside Sungei Ulu Pandan, on Faber Walk. Due to the building restrictions in place in the mostly landed housing estate, Waterfront @ Faber is a low rise development, with several 5 storey plus 11 strata landed units. The 2, 3 and 4 bedroom units are all available in dual key format with the 3 and 4 bedroom units also having a deluxe option.Facility wise, Waterfront @ Faber has all the usual suspects, including a gymnasium and 50 metre lap pool and are divided between 4 distinctive zones, namely the Forest, The Coast, The Lake and The Valley. There is also a “Sky Park” located on the roof across two of the blocks that faces the waterfront. Appliances are Bosch and Electrolux, while the bathroom fixture and fittings are all Grohe and Duravit.Project Name: Waterfront @ FaberAddress: Faber WalkSite area: Approx. 162,809 sqftTenure: 99 years from 17th September 2013District: 5Configuration: 210 unitsUnit types:25 x 2-bedroom units (700 – 721 sqft)29 x 2-bedroom Dual Key units (753 – 764 sqft)10 x 3-bedroom units (1,033 sqft)60 x 3-bedroom deluxe units (1,066 – 1,076 sqft)10 x 3-bedroom Dual Key units (1,023 sqft)25 x 4-bedroom units (1,173 – 1,292 sqft)30 x 4-bedroom deluxe units (1,313 – 1,389 sqft)10 x 4-bedroom Dual Key units (1,259 sqft)11 x strata landed units (2,799 – 3,035 sqft)Maintenance fees: TBAParking lots:203 normal lots, excluding private lots for strata landed houses3 handicapped lotsExpected TOP: July 2018Expected legal completion: July 2021Waterfront @ Faber - Historical DataAs of September 2015, the number of caveated transactions for Waterfront @ Faber stood at 121, with all of the 2 bed units having been sold. Those 121 transactions ranged in price from $798K to $2.69M. Approximately 88 percent of those transactions were at $1.5M or below, with just 15 sales above that figure. In terms of the median price, the smallest units in Waterfront @ Faber – the 2 bedroom ones, transacted at $1,288 psf. This figure falls to $1,169 psf for the standard 3 bedders. Regarding the 4 bedroom units, the median prices were $1,228 psf, $1,236 psf and $1,305 psf for the standard, deluxe and dual key units respectively, while the strata landed units had a median of $868 psf.Waterfront @ Faber - Related ProjectsThe following projects are by the same developer as Waterfront @ Faber:City GateKensington SquareUrban VistaWaterfront @ Faber - Nearby ProjectsThe following developments are in the same neighbourhood as Waterfront @ Faber:Regent ParkThe TrilinqPark West
View project details

















