Undervalued ❤️$14xxpsf❤️Renovated Condo❤️Premium 3bed + 1study 3bath ❤️Sengkang MRT Mall Punggol
S$ 1,649,000
Starting From3
Beds
3
Baths
1,098
sqft (floor)
S$ 1,502
psf (floor)
590 m (7 mins) from SW3 Kupang LRT
About this property
Undervalued Premium 3bed 1study 3bath Condo Sengkang Fernvale MRT LRT
[NEW EXCLUSIVE LISTING]
[TREETOP GREENERY VIEW]
[BRANDED DEVELOPER: City Development Limited (CDL)]
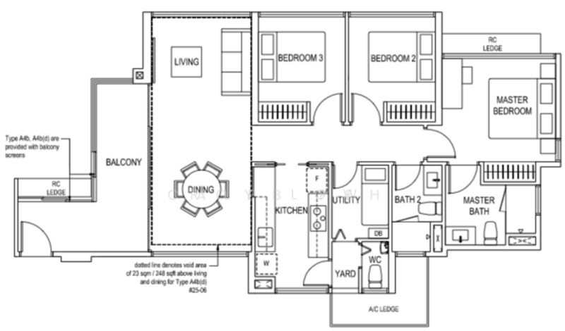
3 Bedroom + 1 Study
3 Bathroom
1 Balcony
** Unit available for vacant possession
** 3 months rent free extension is optional
The unit is fully renovated with a modern design, well kept and offer ready move in for next occupants. A well configured layout of 1098 sqft unit, corner unit, great size - always provides a welcoming gestures to a dignified home.
It welcomes you with a unique layout of balcony entrance that gives you a private entry as if stepping out of a private lift lobby. You will be greeted by a large, airy living room filled with natural light.
- 1st Master bedroom is spacious and having full height windows in the unit
- 2nd Common Room - fits Queen Bed
- 3rd Common Room - fits Queen Bed
- 4th Study Room - fitted with lighting with a Study Desk
Plenty of storages has been planned out for you even without having a yard or utility area.
This is a low density condo of 380 units but comes equiped with full condo facilities:
- Gym
- Function Room with high ceiling
- 100M Swimming Pool
- Children Pool and playground
- Indoor Sheltered Carpark (2 basements)
- Carwashing Bay
- Tennis Court
- 2 BBQ Pits
- EV charger
This condo is located in a quiet, private area while being closed to all amenities (Minutes walk to Layar LRT, Seletar Mall, Supermarkets and Coffeeshops, 3 bus stops to Sengkang MRT where it lands you to Orchard Road in 30minutes)
Come see it for yourself - you will feel the difference the moment you walk
[TREETOP GREENERY VIEW]
[BRANDED DEVELOPER: City Development Limited (CDL)]
3 Bedroom + 1 Study
3 Bathroom
1 Balcony
** Unit available for vacant possession
** 3 months rent free extension is optional
The unit is fully renovated with a modern design, well kept and offer ready move in for next occupants. A well configured layout of 1098 sqft unit, corner unit, great size - always provides a welcoming gestures to a dignified home.
It welcomes you with a unique layout of balcony entrance that gives you a private entry as if stepping out of a private lift lobby. You will be greeted by a large, airy living room filled with natural light.
- 1st Master bedroom is spacious and having full height windows in the unit
- 2nd Common Room - fits Queen Bed
- 3rd Common Room - fits Queen Bed
- 4th Study Room - fitted with lighting with a Study Desk
Plenty of storages has been planned out for you even without having a yard or utility area.
This is a low density condo of 380 units but comes equiped with full condo facilities:
- Gym
- Function Room with high ceiling
- 100M Swimming Pool
- Children Pool and playground
- Indoor Sheltered Carpark (2 basements)
- Carwashing Bay
- Tennis Court
- 2 BBQ Pits
- EV charger
This condo is located in a quiet, private area while being closed to all amenities (Minutes walk to Layar LRT, Seletar Mall, Supermarkets and Coffeeshops, 3 bus stops to Sengkang MRT where it lands you to Orchard Road in 30minutes)
Come see it for yourself - you will feel the difference the moment you walk
Affordability
Can I afford this property?
Tell us your monthly income and expenses to see if this home fits your budget.
Mortgage breakdown
Est. monthly repayment
S$ 0 / mo
S$ 0 Principal
S$ 0 Interest
Upfront costs
Total downpayment
S$ 0
Downpayment
S$ 0 Loan amount at 0% Loan-to-value
FAQs
The sale price of this unit at Undervalued ❤️$14xxpsf❤️Renovated Condo❤️Premium 3bed + 1study 3bath ❤️Sengkang MRT Mall Punggol is S$ 1,649,000.
Current PSF at Undervalued ❤️$14xxpsf❤️Renovated Condo❤️Premium 3bed + 1study 3bath ❤️Sengkang MRT Mall Punggol is about S$ 1,501.82 psf.
The estimated loan repayment is S$ 4,835 / mo.
Undervalued ❤️$14xxpsf❤️Renovated Condo❤️Premium 3bed + 1study 3bath ❤️Sengkang MRT Mall Punggol is located at Hougang / Punggol / Sengkang Serangoon / Thomson (D19-20).
Floor size of this unit at Undervalued ❤️$14xxpsf❤️Renovated Condo❤️Premium 3bed + 1study 3bath ❤️Sengkang MRT Mall Punggol is 1,098 sqft.
Explore other options in and around Hougang / Punggol / Sengkang
Based on the property criteria, you might be interested on the following
Condominium For Sale
Nearest MRT Stations






















