The Myst
800 Upper Bukit Timah Road
S$ 3,179,999
5
Beds
4
Baths
1,690
sqft
S$ 1,881.66
psf
420 m (5 mins) from DT2 Cashew MRT
700 m (8 mins) from BP7 Petir LRT
About this property
Rare Large 5-Bedroom Family Home at The Myst
** Prime Bukit Timah Address: Located along Upper Bukit Timah Road, a serene and prestigious neighbourhood surrounded by nature parks.
** Excellent MRT Access: About 5 minutes’ walk to Cashew MRT, and close to Bukit Panjang MRT/LRT, providing direct Downtown Line access to Newton, Stevens, and the CBD.
** Convenient Connectivity: Easy access to BKE and PIE, ensuring smooth commutes islandwide.
** Lifestyle & Dining: Near HillV2, The Rail Mall, Dairy Farm Residences Mall, and Bukit Panjang Plaza for diverse retail and F&B options.
** Top Educational Institutions: Within proximity to CHIJ Our Lady Queen of Peace, GESS (German European School), Assumption English School, and Bukit Panjang Primary.
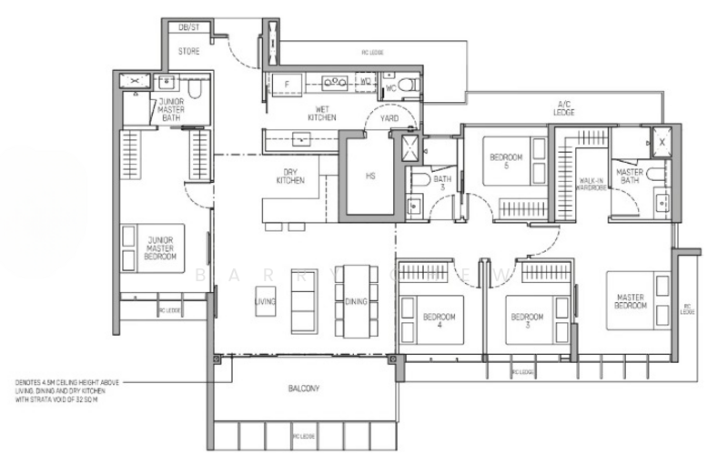
** Luxurious & Spacious Layout: Approximately 1,750–1,900 sq ft with private lift access, 5 spacious bedrooms, dry & wet kitchens, and large balcony for entertaining or relaxation.
** Resort-Style Facilities: Infinity pool, gym, yoga lawn, clubhouse, BBQ terraces, function rooms, and scenic walking trails throughout lush landscaped grounds.
** Nature at Your Doorstep: Walk or cycle to Dairy Farm Nature Park and Bukit Timah Nature Reserve — a rare lifestyle blend of urban comfort and natural beauty.
** Developer: Reputable City Developments Limited (CDL), ensuring top build quality and long-term value.
** Expected TOP: 2029, with 408 exclusive units across two sleek towers designed for modern resort-style living.
The 5-bedroom residence at The Myst offers an exceptional lifestyle for those seeking spacious luxury, privacy, and nature-inspired living — a true sanctuary in one of Singapore’s most desirable residential enclaves.
Common facilities
24 hours security
Aircon facilities
Barbeque pits
Basement car park
Affordability
Tell us your monthly income and expenses to see if this home fits your budget.
The Myst

The Myst is a newly launched 99-year leasehold condominium located at 800 and 802 Upper Bukit Timah Road in District 23 (D23). The Myst comprises 408 units spread across two 24-storey residential towers. Situated in D23, The Myst, is for home seekers looking for both convenience and comfort in a home. The development serves residents a great balance between enjoying the ease of convenience and the beauty of nature. While being within good proximity to some of Singapore’s most popular attractions such as the Orchard shopping belt, Marina Bay Sands, and Sentosa, The Myst is also strategically located near a myriad of green spaces. As a perfect home for those who prefer the tranquillity of nature over the hustle and bustle of the city centre, The development is within good proximity to a plethora of nature parks. The Myst’s key selling point is its location. Located in the tranquil neighbourhood of Bukit Timah surrounded by lush greenery and abundant amenities in the vicinity, The development offers residents sound options when it comes to healthcare, education, and places of attraction. About five to seven-minutes’ walk away from The Myst will take residents to Cashew MRT station on the Downtown Line (DTL). The DTL is one of Singapore’s newest MRT lines that efficiently connects commuters from residential areas to commercial districts. Travelling via the DTL, residents can explore places such as Beauty World, Botanic Gardens, Bayfront, and Little India. The Bukit Panjang Integrated Transport Hub is also under a 10-minutes’ walk away. Conveniently integrated with Hillion Mall, the Bukit Panjang transport hub comprises the Bukit Panjang MRT Station, LRT station, and bus interchange. For drivers, The development is a short six-minutes’ drive to the Bukit Timah Expressway (BKE). Connecting directly to the Pan Island Expressway (PIE), drivers get easy access to the eastern region of Singapore, including Changi Airport. This will be exceptionally convenient for residents who travel frequently for work or leisure. 2 Clubhouses 50m Infinity Pool Kids Pool Family Pool Water Courtyard Treetop Walk Sunken Tennis Court Forest Lounge Tranquil Pavilion Relaxation Pavilion Gym Coworking Lounge Entertainment Room Outdoor Fitness Spa Alcove Chill Out Lounge Host Concierge (for services such as transport, hotel and restaurant bookings, laundry, and housekeeping) Smart features including digital lockset, smart surveillance, smart air conditioning, and smart lighting controls. All units come fitted with quality bathroom accessories from renowned brands such as Geberit, Kohler, Hansgrohe, and Franke as well as Bosche and Smeg kitchen appliances. Assumption English School Bukit Panjang Primary School (within 1km radius) CHIJ Our Lady Queen of Peace (within 1km radius) Greenridge Secondary School Zhenghua Primary School Hwa Chong Institution For expatriates with school going children, the German European School Singapore (GESS) and the Canadian International School are both viable options close to The development. For families with younger children, pre-schools such as the Giggles and Wiggles Childcare Centre and the Little Stars Kindergarten are also easily available in the area. Nearby healthcare facilities include: Bukit Panjang Polyclinic National University Hospital Sengkang Clinic Tan Tock Seng Hospital Gleneagles Hospital Mount Elizabeth Novena Hospital International Medical Clinic The Myst is near a cluster of malls in Bukit Panjang. These include HillV2, Hillion Mall, Junction 10, and Bukit Panjang Plaza. At HillV2, shoppers get to check out various retail and lifestyle stores and F&B options. These include popular clothing outlets such as Zara and Uniqlo, Challenger, Courts Megastore and a food court. Junction 10 offers the residents plenty of shops selling a wide variety of items ranging from fashion to furniture, toys, and more. Residents can also head over to the movie theatres to catch the latest films with family or friends. For grocery runs, the residents can head to NTUC Fairprice Xtra at Bukit Panjang Plaza. The mall also offers a wide range of retail and service options such as Giordano, Watsons, and beauty salons. For more dining options, residents can take a quick four-minutes’ drive to The Rail Mall which offers a variety of cuisines such as Springleaf Prata, Acqua e Farina, BLooiE’s Roadhouse, and Green on Earth. For those who prefer local favourites, the Bukit Panjang Hawker Centre and Market is a seven-minutes’ drive away. For those looking to spend some time outdoors, the Bukit Timah Nature reserve is just six-minutes’ away. Home to the famous Bukit Timah Hill, residents can break out a good sweat exploring the various hiking trails. Alternatively, residents can also check out the Rail Corridor right across from The Myst. Formerly a railway line connecting Singapore to Malaysia, the place has since been converted into a multi-use trail for cyclists, hikers, and nature lovers alike. Nature lovers who would like to explore beyond the Bukit Timah area can check out other green spaces such as the MacRitchie Reservoir Park, Bukit Batok Nature Park, and Dairy Farm Nature Park nearby. City Developments Limited (CDL) is a reputable and experienced developer in Singapore. CDL’s 60 years of proven track record is testament of the developer’s consistency in delivering high quality projects on time. CDL’s residential portfolio comprises a wide range of projects varying from luxury developments to affordable housing. All of CDL’s developments are designed with the environment in mind; green features such as solar panels and rainwater harvesting systems are purposefully incorporated into project designs to facilitate greener living. Notable projects under their belt include Haus on Handy, Tembusu Grand, Canninghill Piers, and Boulevard 88. The Myst has already been launched for viewing and sale since June 2023. To book a showflat viewing and learn more about the development and floor plans, potential buyers can contact The Myst's official development team or listed agents. The Myst comprises 408 units with a mix of 1-bedroom + study to 5-bedroom configurations. Both 24-storey tower blocks sitting on 16,620 sqm of land at The Myst are orientated to face the north-south direction to optimise views for all units. South-facing units on the 10th floor and above will enjoy unblocked views of Bukit Timah Nature Reserve while north-facing units will be faced with views of the Rail Corridor. Bukit Timah is a well-developed housing area in one of Singapore’s most popular neighbourhoods. As an area with rich greeneries and heritage, Bukit Timah remains a hot option for homeseekers. Connecting commuters from residential areas such as Bukit Timah and Bukit Panjang to commercial and leisure areas in Singapore, the DTL serves unrivalled convenience to residents. The residents will also benefit from amenities at the Bukit Timah Community Club and the redeveloped Market & Hawker Centre right outside Beauty World MRT station. Housing a wide range of facilities including an indoor sports hall, community library, and elderly facility, these enhancements in Bukit Timah seeks to enhance liveability for residents in the area. The Myst is a redevelopment of the former Tan Chong Industrial Park, which CDL purchased for $126.3 million in 2022. With the last major residential project launch in Upper Bukit Timah being more than two decades ago, new condominium launches such as The Myst could meet pent-up demand for new homes in one of Singapore’s highly sought after neighbourhoods. With a fraction of units priced attractively at $1.5 million and below, The Myst makes for a desirable option for HDB upgraders and homeowners looking to upgrade from older condominiums in the area. This lower price quantum will also be a viable consideration for investors looking to ride on The Myst’s strategic location in Singapore’s central region to profit from rental yields. Check out The Myst listings for sale and units for rent on PropertyGuru Singapore.
View project details










