The LakeGarden Residences
82 Yuan Ching Road
S$ 2,390,000
3
Beds
2
Baths
1,012
sqft (floor)
S$ 2,362
psf (floor)
1.1 km (13 mins) from EW26 Lakeside MRT
About this property
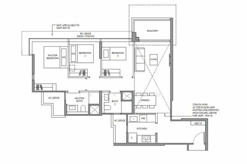
Spacious 3-Bed Family Home Unblocked Living
This unit features a generous living and dining area, well-sized bedrooms, and a practical kitchen configuration suitable for daily family use. The layout balances privacy and openness, making it ideal for both family time and quiet retreats.
Set within The LakeGarden Residences, residents enjoy a tranquil waterfront environment while being positioned at the heart of Singapore’s largest upcoming second CBD.
Key highlights:
Well-proportioned 3-bedroom configuration
Ideal for owner-occupiers and upgraders
Strong family appeal with lifestyle amenities nearby
Excellent long-term growth potential in Jurong Lake District
Arrange a private viewing and experience the space in person.
Disclaimer: Photos used are solely for reference use only and may not represent the final result.
Disclaimer: All land and built-up areas are based on approximate measurements only and are subject to final survey and shall not form part of any offer or contract nor constitute any warranty by the salesperson and shall not be regarded as statements or representations of fact.
Amenities
Air conditioner
Balcony
Common facilities
24 hours security
Adult fitness stations
Barbeque pits
Basement car park
Affordability
Tell us your monthly income and expenses to see if this home fits your budget.
The LakeGarden Residences

The LakeGarden Residences is a 99-year leasehold condominium located at 80–82 Yuan Ching Road in District 22, within the Jurong Lake District, Singapore's fast-rising second Central Business District (CBD). Developed by Winville Investment Pte. Ltd., a subsidiary of Wing Tai Holdings, this thoughtfully planned condominium features 306 exclusive homes across two elegant 19-storey towers. Slated for completion in 2027, the development spans approximately 134,177 sq ft (12,465 sqm) and fronts the scenic Jurong Lake Gardens, offering serene water views framed by greenery. Blending nature, architecture, and smart urban design, The LakeGarden Residences redefines modern waterfront living. It caters to those seeking a calm and connected lifestyle, as well as to investors drawn to long-term value in one of Singapore's most transformative districts. Positioned in the heart of the Jurong Lake District, The LakeGarden Residences benefits from being part of Singapore's visionary western hub. The condominium's prized lakefront location offers both privacy and prestige. Large glass panels and spacious balconies invite natural light and peaceful views of Jurong Lake, while interiors reflect a blend of elegance and practicality. Surrounded by greenery yet close to key business and transport networks, The LakeGarden Residences delivers a rare balance of nature, convenience, and city connectivity. Residents relish easy access to major transport links. The property sits near Lakeside MRT station (EW26) and Chinese Garden MRT station (EW25) on the East–West Line, providing direct connectivity to Jurong East Interchange, Raffles Place, and the city core. For those who drive, the Ayer Rajah Expressway (AYE) and Pan Island Expressway (PIE) provide swift connections to the Central Business District and Changi Airport. Everyday amenities surround the area. Taman Jurong Shopping Centre is merely a short drive out, offering a variety of shops, eateries, and supermarkets. The nearby Jurong Lake Gardens, Singapore's national garden in the heartlands, spans 90 hectares of lush green landscapes, walking trails, cycling paths, and lakefront promenades, creating a natural extension of home life. Upcoming transport projects such as the Jurong Region Line and the Cross Island Line (CRL) further enhance accessibility, adding value for both residents and investors. Designed around wellness, relaxation, and recreation, The LakeGarden Residences presents resort-inspired facilities that mirror its tranquil lakefront setting. 50-metre Stardust Pool for leisure and fitness Aqua lounge and jacuzzi decks Tennis court and multi-purpose sports lawn Fully equipped gymnasium and yoga lawn Children's pool, sensory play areas, and edible garden BBQ pavilions, glamping pavilion, and picnic lawn Sky terrace and wellness trail with lake views Function rooms and co-working lounge Basement car park and 24-hour security The site layout maximises lake views while maintaining privacy between towers. Extensive greenery, reflective pools, and landscaped gardens create a seamless connection between the residence and its natural surroundings, fostering a peaceful yet engaging community environment. Families enjoy proximity to a range of schools near The LakeGarden Residences, including: Jurong Primary School Jurong Secondary School Lakeside Primary School Nearby choice schools offer convenient education options for young families. Popular Dining Spots: Canopy Jurong Lake Gardens Fusion Spoon Wang Xing Seafood You can enjoy a variety of dining preferences just minutes from home. Residents can access a comprehensive network of healthcare facilities nearby, including: Ng Dental Surgery (Jurong Town) HMI OneCare Clinic Jurong West EHA Clinic @ Jurong These options ensure prompt medical services for residents of all ages. Daily shopping and grocery needs are well-supported in the area, with supermarkets and convenience stores such as: FairPrice Taman Jurong Shopping Centre Linn Mini Mart Sheng Siong Supermarket Local wet markets and mini-marts throughout the neighbourhood offer fresh produce and household essentials for easy day-to-day living. The LakeGarden Residences features two striking 19-storey towers that complement the surrounding waterfront landscape. The layout follows the gentle curves of Jurong Lake, with water features, lawns, and pavilions weaving through the grounds. Each tower is oriented to capture scenic lake or city views, while common spaces are framed by greenery to evoke a resort-like calm. The LakeGarden Residences 99-year Leasehold Condominium 22 (Jurong Lake District) Winville Investment Pte. Ltd. (Subsidiary of Wing Tai Holdings) 306 residential units across two 19-storey towers Approx. 134,177 sq ft (12,465 sqm) One-bedroom units (484 to 538 sq ft) Two-bedroom units (592 to 797 sq ft) Three-bedroom units (1,012 to 1,130 sq ft) Four-bedroom units (1,238 to 1,356 sq ft) Five-bedroom units (1,550 to 2,260 sq ft) Each unit combines contemporary design with practical comfort, offering spacious layouts, premium finishes, and intelligent features for modern living. The LakeGarden Residences is developed by Winville Investment Pte. Ltd., which is a subsidiary of Wing Tai Holdings. The company is one of Singapore's most respected property developers, known for its commitment to design excellence and innovation. With over six decades of experience, Wing Tai has established a reputation for architectural excellence and sustainable craftsmanship. The LakeGarden Residences showcase its signature touch to the Jurong Lake District, combining luxury and liveability in an environment inspired by nature. Wing Tai Holdings has an impressive portfolio of residential developments across Singapore. The M: Wing Tai Asia The Tembusu: WingTai Asia Le Nouvel Ardmore: Wing Tai Holdings These projects demonstrate the developer's commitment to timeless design, exceptional craftsmanship, and contemporary living. Other notable developments near Jurong Lake include: The Lakefront Residences Parc Oasis J Gateway These projects collectively showcase the district's transformation into a thriving hub of lifestyle, leisure, and investment opportunities. The LakeGarden Residences presents an exceptional opportunity to embrace lakefront living beside Singapore's largest recreational waterfront. With its modern design, scenic views, and resort-style amenities, it provides a calm and connected lifestyle that suits families, professionals, and investors. As Jurong Lake District continues to take shape as Singapore’s second CBD, homes like The LakeGarden Residences stand positioned for long-term growth, strong rental demand, and enduring value. Browse The LakeGarden Residences sales listings on PropertyGuru and uncover the ideal place to call home.
View project details










