The Hillford: 27 Units for Sale
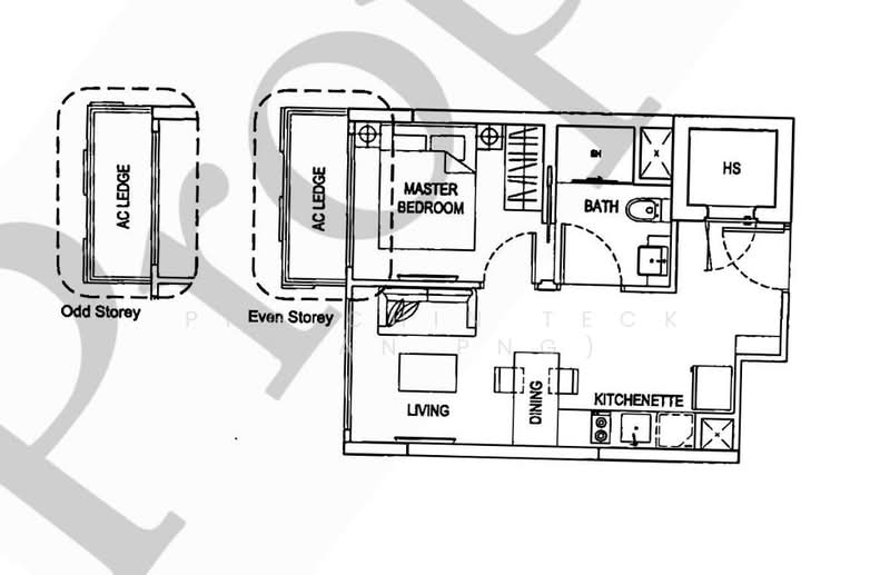
The Hillford is a leasehold condominium development that is located at Jalan Jurong Kechil in District 11. It is a condominium project that was completed recently. The project was completed in 2017 with a total of 281 units available for sale or rent. The condominium development is located close to public transportation that allows residents to move easily from one place to another from the condominium. There are many shops and amenities close to the condominium development which would ease the process for residents and they do not need to go far to find what they need as it is built in a strategic place.The project was developed World Class Land Pte Ltdis a large real estate organization held privately, and it has undertaken around 20 real estate projects in Singapore. - The Hillford is a beautiful condominium development that has many charms to it. There are various facilities that residents can enjoy while living in The Hillford. Residents of The Hillford would not have to travel far to get their basic necessities as everything is close within their reach. Residents can enjoy the Barbeque Area, pentaquin lawn, golfing green, poolside pavilion, yoga alcove, indoor gymnasium, sunshine deck, splash pool, aqua aerobic pool, spa pool, dip pool, aqua deck, blue lagoon, reading room, multipurpose hall, tea gazebo, workout pod, meditation and there is also a reading pavilion provided for all residents who love to read to check that place out. There is a number of public transportation close to The Hillford that residents can make use of. The closest MRT station to the condominium is Beauty World MRT. The closest bus stops are located at after Bukit Batok East Avenue 6, Who Hup building, after Jalan Jurong Kechil and after Toh Tuck Terrace. For those with vehicles, the shopping district located at Orchard Road can be easily accessed via Pan Island Expressway, Dunearn Road and Thomson Road in 20 to 25 minutes. Maru Korean BBQ BuffetKoon Bak Kut TehFive Star Kampung Chicken Rice & KitchenJew Kit Bukit TimahGayageum Korean Family Restaurant Bukit Timah Primary SchoolThe Garden House PreschoolKids Space Learning PlaceLearning Project Education CentreDe Capo Music Academy Bukit Timah Nam Sang ClinicCheong Medical ClinicToh Yi Medical Clinic Pte LtdMandarin Medical & Dental Centre Sinar Suria ServicesGiant Supermarket – Upper Bukit Timah Road The Hillford is a condominium development that is made up of a number of units. There are 2 types of unit available with various layouts that residents can browse through. The size for the unit ranges between 398 square feet to 657 square feet. The layouts for the units in The Hillford aim to provide residents with homes that is comfortable for working adults, couples or families looking to own a spacious and manageable condominium unit. The sale price for the units can go up to S$ 938,000. The rental for the units ranges between S$ 1,600 to S$ 2,300. Project Name: The HillfordType: CondominiumDistrict: 11 Unit Types:1 bedroom (398 sqft)2 bedroom (506 sqft - 657 sqft) The following developments are projects developed by the same developer as The Hillford:Blu CoralCardiff ResidencePalm LoftThe Morning Glory The following developments are in the same neighborhood as The Hillford:Fyve DerbyshirePullman ResidencesNeu at Novena35 GilsteadThe Whitley Residences26 Newton
DeveloperWorld Class Developement (North) Pte Ltd



























