The Citron Residences
1 marne road
S$ 1,500,000
Negotiable2
Beds
2
Baths
732
sqft (floor)
S$ 2,049
psf (floor)
420 m (5 mins) from NE8 Farrer Park MRT
About this property
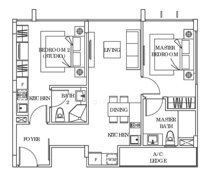
Versatile Dual Key, 2 Bed 2 Bath Unit for Sale. High Floor!
This 732sqft, Freehold 2 bedroom, 2 bathroom dual-key residence presents an outstanding opportunity for homeowners, multi-generation families, and investors alike.
Property Highlights:
• Dual-key layout with one bedroom unit and one studio-style unit
• Self-contained, each with its bathroom and kitchen, providing privacy and independent living.
• Efficient design with excellent space utilisation
• Main bedroom with ensuite bathroom
• Self-contained studio with its own private bathroom
Ideal for owner-occupiers and investors seeking flexibility, privacy, and long-term value.
Contact Wenqi @ 9105.5217 to arrange for viewings today
Amenities
Air conditioner
Bed
Bedroom cabinets
Fridge
Common facilities
Barbeque pits
Fitness corner
Gymnasium room
Jacuzzi
Affordability
Tell us your monthly income and expenses to see if this home fits your budget.
The Citron Residences

District 8 is exploding with hype in regard to the latest development of an apartment complex just along Marne Road, City & South West. It is due to complete in 2019. Spearheaded by Goodland Assets Pte Ltd, a wholly owned subsidiary company of The Goodland Group, it is no doubt that this project will be nothing short of sheer elegance, class and sophistication. Several prominent landmarks are located nearby the residence. They include the Singapore Flyer, Istana Kampong Glam, Gardens by the Bay and Marina Bay Sands. The Goodland Group (Goodland) is a Singapore based premier lifestyle property developer specializing in residential developments. Goodland caters to the needs of a wide spectrum of home owners, with an established reputation for building quality, signature, environment friendly developments. Goodland plans to increase its footprint significantly in the residential, commercial and industrial property segments, and is strategically placed for sustained growth for years to come. Apart from being precariously close to several fun filled amenities, the complex is also within accessible entry points to and from the tower. Being strategically located within prime commercial zone, this apartment would fetch a great deal of value- that is if the allocation is for investment purposes. Besides that, the developer had in mind to also construct a township surrounding the apartment complex where there will be host of facilities such as supermarkets, office spaces, a mall, dining options and many more; all to cater to the needs and wants of the inhabitants of The Citron Residences. Apart from that, residents will be able to grill/roast their favorite delicacies at the designated barbeque pits located at the rooftop, within close proximity to the pool area. Partaking in such activities informal or semi- formal gatherings often times strengthen bonds between family and friends. Residents will also be able to enjoy a specifically designated fitness area within the premise. Residents that are into the sport of calisthenics would find the feature of great value. Residents that prefer to work out indoors also have the option of utilizing the fully equipped gymnasium. After a long day at work, residents can unwind and relax at the convenience of a Jacuzzi, located also at the rooftop, adjacent to the swimming pool. With multiple facilities of quality to be enjoyed, it is not a surprise that The Citron Residences is amongst the highly sought apartments in the district. As of today, the management has received many enquiries and bookings despite it still being under construction. The very location of which it was procured was a calculated move by the developers. Being in a prime land of urban business and development, the very location, boast a broad spectrum of various accessibilities. There has not been any challenge to get to and from the popular apartment of choice thus far. Firstly, there are bus feeders available within walking distance. Several MRT Station are situated within a stone’s throw away from The Citron Residences. They include NE8 Farrer Park MRT Station, DT23 Bendemeer MRT Station and DT22 Jalan Besar MRT Station. Residents who have vehicles of their own can find themselves maneuvering onto Petain Road and are able to reach the apartment in no time. Besides that, there are a few malls that further accommodate residents with a horde of amenities such as dining outlets, entertainment establishments, financial institutions and many more. Gopals RestaurantPUTIEN Kitchener RdHillman RestaurantBalaji BhawanMing Chung Restaurant Singapore City Square MallTimezoneNew World CentreAperia Mall Soma SchoolLEAP SchoolHouseIms SchoolACTFA School of Dance & Performing Arts Somme Road PlaygroundSmall Open ParkSate Kelinci Park El- Shaddai Revival CenterBerean Bible-Presbyterian ChurchChurch Of Praise The apartment will be open for viewing and occupancy in 2019. As of now, the project is on-going. It is the mastermind of the real estate developers- Goodland Assets Pte Ltd. Prices are estimated to range between S$784,000 – S$ 1.8 million. Project Name: The Citron ResidencesType: ApartmentDistrict: 8 Unit Types:3 -bedroom 2 -bathroom (915 square feet, S$1.8 million)2 -bedroom 2 –bathroom (732 square feet, S$1.5 million)1 -bedroom 1 –bathroom (431 square feet, S$784,000) The following are some of the other projects that were developed by the same real estate buildersSturdee ResidencesOne RobeyThe Bently Residences @ Kovan The following are examples of similar listings that are worthy for viewingPristine HeightsClydes ResidenceKentish GreenCity Square ResidencesThe Citron Residences
View project details






