The Beacon
130 Cantonment Road
S$ 1,990,000
Negotiable2
Beds
2
Baths
1,109
sqft (floor)
S$ 1,794
psf (floor)
530 m (6 mins) from EW16/NE3/TE17 Outram Park MRT
About this property
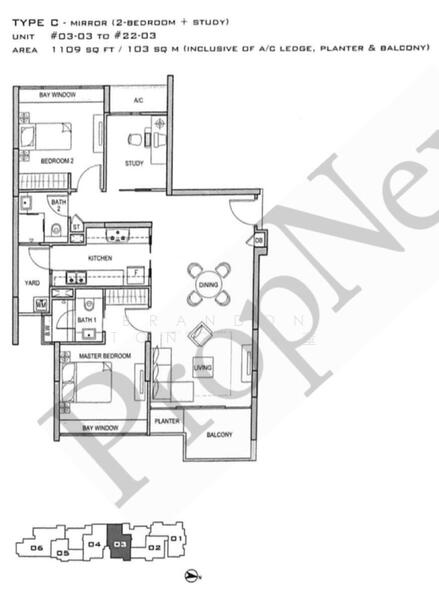
Affordable 3br compact in the heart of city
This 1109 sqft 2+Study unit is one of the most flexible layouts in Prime District 02.
• Currently configured as 2 Bedrooms + Study
• Easily functions as a compact 3-Bedroom
• Achieving ~3.5% rental yield under normal leasing
• Strong upside potential for higher yield strategies
Very Good & Efficient Layout
Unlike many newer launches today, this unit is designed with liveable internal space, not wasted “developer add-ons”.
• Minimal bay windows
• Minimal planter box space
• Only ONE balcony (no over-allocation to non-usable areas)
• Squarish, efficient layout – easy furnishing & partitioning
• Large 1109 sqft footprint (rare in D02 today)
More usable space = more flexibility = better returns
Safe Entry Price , Investment & Rental Potential
• Safe Entry Price below $1800 psf ( 52 weeks average psf is $1831 psf)
Good margin of safety
• Current ~3.5% rental yield on conventional leasing
• Located in a proven rental haven (CBD fringe / city professionals)
• Layout supports co-living concept due to size & room distribution
• Higher yield achievable with room-by-room or co-living strategy (subject to regulations)
Size comparison against new properties
Most newer 2-bedroom layouts today are ~650–750 sqft:
• Limited flexibility
• Difficult to reconfigure
• Capped rental strategies
This unit offers 1109 sqft — giving you:
•More rooms
•More tenant profiles
•Better long-term adaptability
Who is it suitable for ?
• Own-stay buyers wanting space in D02
• Investors seeking yield + flexibility
• Buyers who understand layout advantages and safe entry price point
Unlike many newer launches today, this unit is designed with liveable internal space, not wasted “developer add-ons”.
Physical Viewing / Video Call viewing available
Brandon Tong | PropNex
=============================================
Lets discuss on How to Take Advantage of Today’s Prices even though it may seems high
Amenities
Air-conditioning
Balcony
Bed
City view
Common facilities
24 hours security
Basement car park
Drop off point
Gymnasium room
Affordability
Tell us your monthly income and expenses to see if this home fits your budget.
The Beacon
BeaconThe Beacon is a 99 years leasehold condominium of apartments located Cantonment Road, which is one of the renowned area in of Chinatown (known as district 2), which is actually an integral part of the central city centre of Singapore; business hubs and home of lots of skyscrapers in Singapore. This project has been developed by Cantonment Realty Pte Ltd. The wonderful strategic location of this prestigious establishment, being residing to wonderful location of Chinatown and Tanjong Pagar (District 2), which is gifted with the special architectural design along with different types of modernized facilities and solid transportation system, which makes this development a very special one.Beacon - Unique Selling PointsThe property, The Beacon is located strategically in the place of district number 2 consisting of two areas, Chinatown and Tanjong Pagar, famous area for Singapore’s residential and commercial hub, is also an up-growing area in this region, a perfect combination of urban establishments and natural beauty along with different types of modernized facilities available in this property area is making this area a special property indeed. Besides this, a standard number of lavish facilities available in the surrounding areas make this property a standard establishment. Apart from that, this project has been equipped with special modernized security system which is normally missing in regular establishments in recent times in this locality.Beacon – AccessibilityThe Beacon is also unique for its supreme location as being connected to different parts of Singapore. It’s positioned in such a way that makes it highly accessible to different busy and important areas through Cantonment Road and Ayer Rajah Expressway (AYE). Apart from that, it is located very close to EW15 Tanjong Pagar MRT station, NE3 Outram Park MRT station and EW16 Outram Park MRT Station, which are located within half kilometres boundary from this property area making the transportation system more dynamic and easily accessible.The Beacon featured a handful number of standardized facilities for the residents including basement car park, gymnasium room, Jacuzzi, swimming pool, and wading pool and so on. Moreover, this property has been equipped with 24 hours securities system, which makes the establishment an ultra-modern secured zone to live with.Beacon - Amenities & Attractions. In addition to that, this development has been surrounded by a good number of modern amenities like Restaurants, Shop lots, Banks, Hospitals and so on. Reputed educational institutions like Radin Mas Primary School, Zhangde Primary School and CHIJ Kellock Primary School, Outram Secondary School and Canadian International School and a good number of national and international schools and colleges are located within short driving distance from this area. Those who are passionate about shopping, for them this place is being attractive as its located very close to Tanjong Pagar Plaza and Amara Shopping Mall. Lots of supermarkets, restaurants and eating establishments along with Fairway Country Club make the recreational activities stronger in this residential zone.Schools and Education near Beacon:Radin Mas Primary SchoolZhangde Primary SchoolCHIJ Kellock Primary SchoolOutram Secondary SchoolCanadian International SchoolShopping near Beacon:Tanjong Pagar PlazaAmara Shopping MallBeacon - Project informationThis premium establishment is being designed with one block of apartments which consists of total 124 residential units in its occupied land area. These premium residential units are being built up with the 2 different design layouts where size of the units ranging from 75 square meters up to 138 square meters. The first layout is being provided with 2 bedrooms facilities in its built up area ranging from 75 square meters up to 108 square meters, whereas, the next layout is being provided with 3 bedrooms facilities in its occupied area of 138 square meters. The initial price of the lavish designed units ranges from SGD1,580,000 up to SGD3,500,000 which makes this property affordable to only middle and high income groups in this region as being little bit expensive to maintain the costs here.The project completed by the year, 2008. The average total price per unit ranges from SGD1,580,000 up to SGD3,500,000 and also the price per square meter ranges from SGD103 up to SGD260, which is a comparatively high price compared to adjacent properties like the Clift, Emerald Garden, Five On Shenton, Eon Shenton, Lumiere and some other properties in this region. Project Name: BeaconDistrict: 2Configuration: 124 residential unitsUnit types for Beacon :2 bedrooms (75 square meters - 108 square meters) 3 bedrooms (138 square meters)Beacon - Nearby ProjectsThe following developments are in the same neighbourhood as Beacon:76 ShentonAltezCraig PlaceDorsett ResidencesEon Shenton
View project details


