Tenet
650 Tampines St 62
S$ 1,955,000
4
Beds
2
Baths
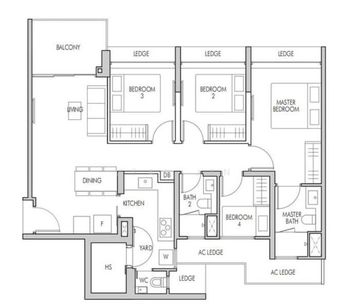
1,098
sqft (floor)
S$ 1,781
psf (floor)
470 m (6 mins) from CR6 Tampines North MRT
About this property
4bedroom, TOP Obtained! Near MRT, Mall
️️DIRECT DEVELOPER SALE : Bounced out unit 4bedroom
️TOP obtained, immediately move in
️No Agent Fee from Buyer
️ -11 blocks of 15-storey
️ -618 units ranging from 3 to 5 bedroom units
️ -Walk to upcoming Tampinese North MRT and upcoming Tampines North Hub (comprising residential , commercial facilities and a bus interchange, which will be integrated with a plaza square and a green arcade where the residents can gather for community activities) within 500m to 600m
️ -North-South Orientation
Unit Mix :
3 Bedroom Deluxe Study, 893-1098 sqft: 140 units
3 Bedroom Premium Study, 947-1152 sqft: 223 units
4 Bedroom Deluxe, 1***** sqft: 150 units
4 Bedroom Premium Study, 1***** sqft: 60 units
5 Bedroom Premium Study, 1***** sqft: 45 units
Up to $30k Grant
️CALL / SMS Jean at 9***** to enquire !
Common facilities
24 hours security
Car park
Fitness corner
Gymnasium room
Affordability
Tell us your monthly income and expenses to see if this home fits your budget.
Tenet

Touted as a green, sustainable, car-lite housing project, Tenet EC is an executive condominium (EC) located at Tampines Street 62 in District 18 (D18). This 99-year leasehold project offering 618 units of various configurations is spearheaded by TQS Development Pte Ltd; a joint venture between Qingjian Realty, Santarli Realty Pte Ltd, and Heeton Holdings Limited.Situated in a mature HDB estate, the project is surrounded by malls, educational institutions, restaurants, and lifestyle amenities. Tenet EC can be said to be an extension of the vibrant Tampines Regional Centre. Thanks to its strategic location, residents enjoy an excellent public transport system that is well connected to various parts of Singapore. It is also within close proximity to key employment hubs such as the Seletar Aerospace Park, Changi Business Park, Changi Airport, and Marina Bay Financial Centre.While the Tampines North Integrated Transport Hub (ITH) is still in the works, Tenet Condo residents will have to commute to the temporary bus interchange at Tampines North Drive 2, an approximate five-minute walk away. With the completion of the Cross Island Line (CRL) in phases, Tampines North MRT station will be a short two-minute walk away after Phase 1 is completed in 2029. When Phase 1 of the CRL is completed, 12 new stations from Bright Hill to Changi Aviation Park will be in operation. Major economic hubs such as Changi Airport, Punggol Digital District, and the Paya Lebar Airbase (slated for relocation in 2030 to make way for a township five times larger than Toa Payoh) will be within six stations of Tampines North MRT station. For drivers, the development is conveniently located right next to the Tampines Expressway (TPE) and is also well-served by the Pan Island Expressway (PIE) and Kallang-Paya Lebar Expressway (KPE). Major employment hubs are a 20-minute or less car ride away. Tampines Central Park is home to the iconic watermelon and mangosteen playgrounds that pay homage to the fruit farms that were once found in Tampines Tampines Eco Green is 500m from the development and is an eco-friendly park that is popular with nature enthusiasts and birdwatchers. Bedok Reservoir Park (eight minutes’ drive from Tenet EC) is a hotspot for fitness lovers and those looking to try out water sports such as dragon-boat racing, kayaking, and wakeboarding. Park connectors and cycling paths are in plans to create a car-lite city. Other nearby healthcare facilities include:SingHealth Polyclinic - TampinesRaffles MedicalChangi General HospitalAndrew’s Community HospitalHealthway Medical (Tampines Central)Praise Family ClinicResidents of Tenet EC will get to enjoy up to 49 different facilities in the comfort of their own homes. While the Tampines regional area and ITH are still in the works, The facilities ensures that residents still get to enjoy a good selection of recreational options. These facilities span across three large categories: entertainment, communal breakout zones, and quiet spaces. Entertainment facilities include a tennis court, BBQ pavilions, entertainment and multi-purpose rooms, and an infinity pool. On the other hand, the 50m lap pool, gym, communal pavilions, and library are considered communal breakout zones while the meditation retreat and reflexology trail provide a zen space for residents to wind down.While condos typically only sport basement car parks, Tenet EC features both a basement and multi-storey car park which will provide a total of 618 parking lots comprising six electric charging lots for electric vehicles. Other utilities such as the bin centre, and bicycle racks can also be found near the basement car park.As an added bonus, units also come with built-in smart living features such as a smart gateway offering central control of units, a virtual doorman to unlock doors remotely, pre-arrival cooling to cool homes in advance, and fuss-free app payment for maintenance fees.Once the Tampines North ITH is up and running, Tenet EC would be a mere four-minute walk away from a myriad of amenities such as a fully air-conditioned bus interchange linked to MRT stations, withdirect access to shopping malls. While the Tampines ITH is still in the works, residents still enjoy convenient access to other shopping malls and retail outlets in Tampines: Tampines Retail Park with three megastores: Giant Hypermarket - Tampines, IKEA Tampines, and COURTS Megastore Tampines (two-minute drive away) Tampines Central, home to several popular heartland malls: Tampines Mall, Tampines One, Century Square, and Our Tampines Hub (five-minute drive away or two MRT stations away, after the launch of Tampines North MRT station) White Sands shopping mall (beside Pasir Ris MRT station) and Eastpoint Mall (next to Simei MRT station).Poi Ching SchoolSt Hilda’s Primary SchoolGongshang Primary SchoolYumin Primary SchoolHai Sing Catholic SchoolHoly Innocents’ High SchoolSpringfield Secondary SchoolDunman Secondary SchoolTampines Meridian Junior College, Temasek Polytechnic, Singapore University of Technology and Design, and Singapore Institute of Technology are less than a 15-minute drive away. United World College South East Asia (East Campus) is a short four-minute drive away, providing an added appeal for homeowners who may want to rent out their property to expatriates.Qingjian Realty, a subsidiary of Qingjian Group Co, Ltd (CNQC), entered the Singapore market in 2008 and focused on developing residential, industrial, and commercial properties. In addition, Santarli Realty Pte Ltd, established in 1983 as a general contractor, has expanded into property development and become a renowned builder of complex engineering works. As an industry leader in construction and civil engineering, Santarli also achieved the RoSPA award.Similarly, founded in 1976, Heeton Holdings Limited is a real estate conglomerate that focuses on property development, investment, and management. Heeton has an outstanding reputation across the globe for its high-quality properties in exclusive districts in some of the world’s major cities..Tenet EC has already been launched for viewing and sale since November 2022. To book a showflat viewing and learn more about available units and selling pricing, potential buyers can contact Tenet EC's official development team or listed agents.Tenet EC is a 11-block residential development with 618 units of three, four, and five bedroom apartments located on a site with a land area of 23,799.2 sq m. Residents get to enjoy a host of full facilities and communal areas such as a 50m-long swimming pool, an infinity pool, private dining rooms, and entertainment rooms across the first, fifth, and sixth storeys. Furthermore, all residential blocks will be either northeast or southwest facing with a point block design so residents can enjoy a good level of privacy.Include: TQS Development Pte Ltd was awarded the Tenet EC project plot with its top bid of $442 million, which works out to $659 per sq ft per plot ratio (psf ppr). Prices for each room are as follows:893 sq ft - From $1.098 million980 sq ft - From $1.268 million1,098 sq ft - From $1.438 million1,561 sq ft - From $2.078 millionAll in all, Tenet EC is an asset to be considered given its potential for capital appreciation given the shortfall in supply of ECs in the East. Arc @ Tampines, Tampines Trilliant, and CityLife @ Tampines – ECs launched in Tampines between 2011 and 2012 – have seen . As compared to these nearby ECs, Tenet EC is the closest to an MRT station; it is a four-minute walk to the upcoming Tampines North MRT station. When considering the walk to their nearest MRT stations, Arc @ Tampines is an 18-minute walk away, while Tampines Trilliant and CityLife @ Tampines are both a 10-minute walk away. This will further add to the value of Tenet EC and increase its appeal among property seekers. Check out all available Tenet EC listings for sale on PropertyGuru Singapore and for rental units please click here.
View project details


































