Suites @ Guillemard
70 Lim Ah Woo Road
S$ 1,250,000
Negotiable2
Beds
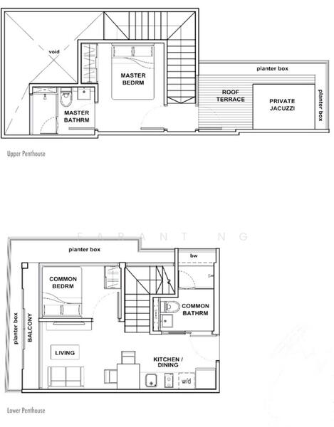
2
Baths
883
sqft (floor)
S$ 1,416
psf (floor)
670 m (8 mins) from EW8/CC9 Paya Lebar MRT
About this property
Freehold Penthouse Quiet Facing Good For Own Stay and Investment
Viewing by appointment only.
For viewing please call 8***** .
Suites @ Guillemard is a freehold apartment development located at 70, Lim Ah Woo Road, (S)438133, in District 15, minutes walk to from Paya Lebar MRT Station. It stands 5 storeys tall and comprises of 72 units. Suites @ Guillemard is close to the CBD and Sports Hub. Facilities at Suites @ Guillemard include swimming pool, jacuzzi, gym and BBQ pit. Several feeder bus services are available near Suites @ Guillemard. It is also close to a number of local and international schools, such as Tanjong Katong Secondary School and Tanjong Katong Primary School. Suites @ Guillemard is also within walking distance to a stretch of eateries and restaurants located at Tanjong Katong Eateries such as Santos cafe and Greenland Vegetarian restaurant. Residents can head down to the nearby shopping malls like City Plaza for amenities such as supermarkets, restaurants, banks, and more. For vehicle owners, driving from Suites @ Guillemard to either the business hub or the vibrant Orchard Road shopping district takes 10 - 15 minutes, via ECP and Geylang road respectively.
Amenities
Air-conditioning
Balcony
City view
Cooker hob/hood
Common facilities
Barbeque pits
Gymnasium room
Jacuzzi
Swimming pool
Affordability
Tell us your monthly income and expenses to see if this home fits your budget.
Suites @ Guillemard

Suites @ Guillemard is a freehold apartment development located at 70, Lim Ah Woo Road, in District 15. Suites @ Guillemard is situated few minutes walk to from Paya Lebar MRT Station. Suites @ Guillemard is constructed by the famous developer of Singapore named Oxley Land Pte. Ltd. Suites @ Guillemard has different facilities such as swimming pool, jacuzzi, gym and BBQ pit. There are different MRT Stations avalible near Suites @ Guillemard.mMRT stations are available just 7 to 8 minutes walking distance from Suites @ Guillemard. Famous and well-known schools of the area are available just in the 5 to 9 minutes walking distance from Suites @ Guillemard. Suites @ Guillemard is also close to a stretch of eateries and restaurants located at Tanjong Katong Eateries such as Santos cafe and Greenland Vegetarian restaurant. Different supermarkets, restaurants, banks, and many more facilities are available in the few minutes distance to Suites @ Guillemard. The vehicle owner needs 10 to 15 minutes distance to reach business hub or the vibrant Orchard Road shopping distance from Suites @ Guillemard Suites @ Guillemard is 5 storeys tall and comprises of 72 units. All the facilities of life are just a few minutes away from Suites @ Guillemard. Different MRT Stations are just a few minutes walking distances from Suites @ Guillemard. It is also close toa number of local and international schools, such as Tanjong Katong Secondary School and Tanjong Katong Primary School. The unique selling points is its beautiful building from where the perfect people can see the perfect view of the city. The famous restaurant of the area such as Santos cafe and Greenland Vegetarian restaurant is available near Suites @ Guillemard. All these facilities of life make Suites @ Guillemard unique selling point. Suites @ Guillemard is close to the CBD and Sports Hub.Suites @ Guillemard is also close to the MRT Stations Paya Lebar MRT Station and Dakota MRT Station, these stations are 7 to 8 minutes walking distance to Suites @ Guillemard. Diffe different rent schools are also available near to Suites @ Guillemard such as Kong Hwa School, Northlight School, and Tanjong Katong Girls' School are just 5, 6 and 9 minutes walking distance to Suites @ Guillemard, respectively. Other facilities like super malls, supermarkets, entertainment places are just a few minutes riding distances to Suites @ Guillemard. Almost all the facilities of life are available near the Suites @ Guillemard. Stick To EatMerdandy Bar & CaféRochor Beancurd Giant SupermarketJulian and FriendsCold Storage Kong Hwa SchoolNorthlight SchoolTanjong Katong Girls' School Suites @ Guillemard 5 storeys tall and comprises of 72 units completed in 2015. There are different size of bedrooms and washrooms available according to the personal need of the people. There is 1 bedroom 1 washroom and 2 bedrooms and 2 washrooms facilities are available. It is constructed with a lot of facilities like swimming pool, Barbeque Area, Gymnasium room and Jacuzzi. Suites @ Guillemard is the perfect apartment in this area according to the different facilities, building, and location. Project Name: Suites @ GuillemardDistrict: 15Configuration: 72 residential units Unit types for Suites @ Guillemard:1 bedroom with 1 bathroom (431 sqft)2 bedrooms with 2 bathroom (527 sqft) The following developments are in the same neighbourhood as Suites @ Guillemard:The SoundOne AmberSuites @ East CoastParc EleganceCubik
View project details


















