Stars of Kovan
986 Upper Serangoon Road
S$ 930,000
Negotiable1
Bed
1
Bath
517
sqft (floor)
S$ 1,799
psf (floor)
340 m (4 mins) from NE13 Kovan MRT
About this property
1 bedroom unit in mixed use development - 5 min walk from Kovan MRT!
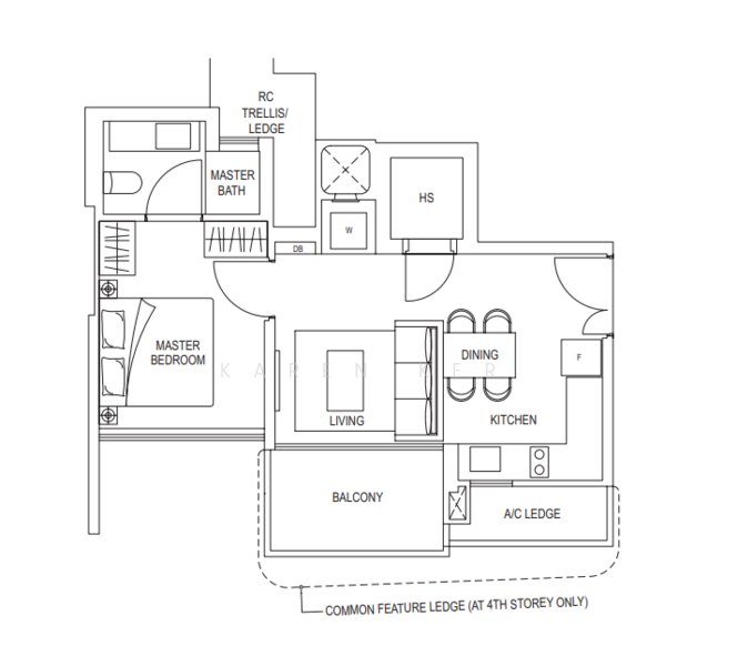
✓ Type: A 1-bedroom apartment with balcony
✓ Floor area: Approx. 517 sqft
✓ Tenure: Leasehold 99 years wef 2015 (TOP in 2020)
✓ Flexibility to buy with existing tenancy / vacant possession !
FEATURES
✓ 1 bedroom with attached bathroom
✓ Living area with kitchenette (Note: The image has been virtually staged. For illustrative purposes only)
✓ Balcony
✓ Home shelter
LOCALITY
✓ Within 1km from Xinghua Pri / Holy Innocents’ Pri
✓ Within 2km from Paya Lebar Methodist Girls’ Pri / Rosyth School / Montfort Junior School
✓ Approx 5-min walk to Kovan MRT / Heartland Mall / HDB shops
✓ Nearest MRT: Kovan (NE line)
Call Karen Ker @ 8-111.4957
Knight Frank (Auction & Sales)
Licensed Appraiser (IRAS)
MSISV (Member of Singapore Institute of Surveyors & Valuers)
Common facilities
24 hours security
Car park
Drop off point
Gymnasium room
Affordability
Tell us your monthly income and expenses to see if this home fits your budget.
Stars of Kovan

Stars of KovanStars of Kovan is a high quality, British themed mixed development, located in Kovan, a suburb of Hougang New Town in District 19. It consists of four 17 storey blocks, which house the 390 residential units with a further 5 strata terrace units slightly away from the main development. Stars of Kovan also has 46 commercial units located in a standalone low-rise block, giving residents extra convenience. The development is just a 5-minute walk from Kovan MRT Station which takes commuters into the CBD in 20 minutes. By car, assuming good conditions it is even quicker. Stars of Kovan itself is a high class development with Smeg appliances and good range of facilities organised into 4 distinct zones.Cheung Kong Property Holdings Limited is one of the main property developers in Hong Kong. Its principal activities include such as residential, commercial and industrial property development as well as investment; hotel and serviced suite operation; and property and project management. Their core operations are in Mainland China, Singapore, United Kingdom and Bahamas.Stars of Kovan – Unique Selling PointsStars of Kovan is a high quality, British themed mixed development. It is within easy and quick reach of several malls, dining options and schools, from primary up to tertiary institutions. It is also just a 5 minutes’ walk to Kovan MRT Station on the North East Line which would in turn deliver you to the CBD in 20 minutes. Car drivers can get into town even quicker courtesy of the PIE and CTE. Stars of Kovan itself is a mixed development with 46 commercial units giving residents even more convenience. The development has several well thought out and classy facilities arranged in 4 different zones.Stars of Kovan – AccessibilityThe nearest MRT station to Stars of Kovan is Kovan on the North East Line, which is a 5 minute walk from the development. One stop in either direction you have Serangoon with NEX and Hougang with Hougang Mall and the forthcoming Hougang Integrated Hub. Raffles Place is a 20-minute ride. A bus stop next door to Stars of Kovan is serviced by 53, 62 and 112, which between them will take you to Bishan, Ang Mo Kio, Pasir Ris, Aljunied, Punggol, Hougang and Upper Serangoon.For those wishing and able to drive, assuming good traffic conditions, it is around a quarter of an hour trip into the city, via the PIE and CTE. Being a mixed development with 46 commercial units, residents of Stars of Kovan won’t need to leave the development for many of their daily necessities.Stars of Kovan - Amenities & AttractionsDining near Stars of Kovan:Rocky FishDing TeleSin Chie Toke Huan Hainanese Curry RiceJin Sa Wan Seafood RestaurantShopping near Stars of Kovan:Heartland MallHougang MallNEXSchools and Education near Stars of Kovan:Xinghua Primary SchoolYuying Secondary SchoolHoly Innocents’ Primary SchoolSerangoon Junior College
View project details































































