Sengkang Grand Residences
86 Compassvale Bow
S$ 1,130,000
Negotiable1
Bed
1
Bath
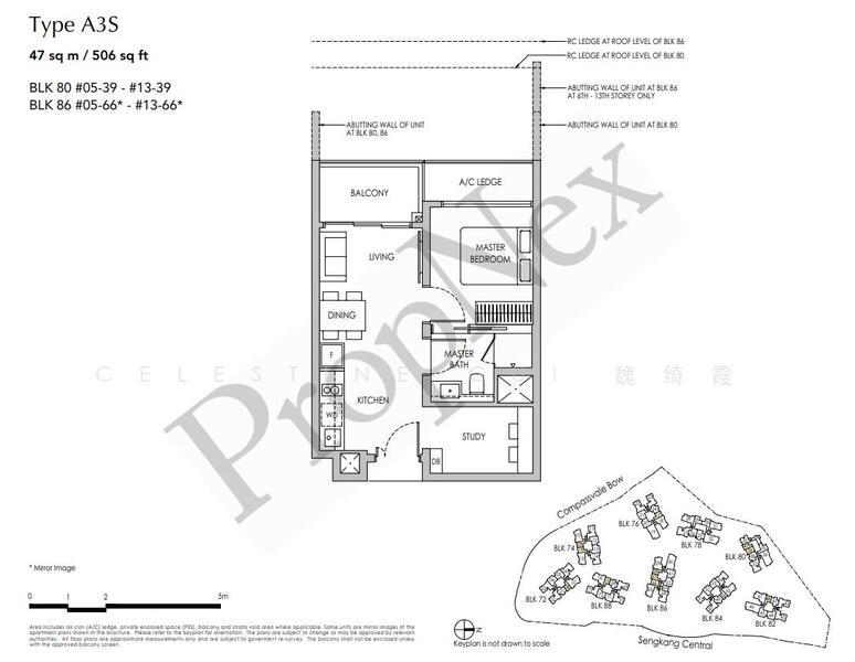
506
sqft (floor)
S$ 2,233
psf (floor)
10 m (1 min) from NE15 Buangkok MRT
About this property
High floor well kept 1 plus study with MRT and mall right below!
Looking for a well-kept, move-in-ready home in a vibrant integrated development? This high-floor 1-bedroom + study unit (506 sqft) at Sengkang Grand Residences might for you.
✨ Property Highlights:
• Efficient layout - perfect for singles, couples, or investors
• High floor with unblocked views – enjoy natural light and breezy ventilation
• Well-maintained and in move-in condition
• Functional study area, ideal for WFH or extra storage. Comes ready with a fitted door
• Quality fittings and cool modern interiors
Amenities
Air conditioner
Balcony
Bed
Cabinets
Common facilities
Car park
Affordability
Tell us your monthly income and expenses to see if this home fits your budget.
Sengkang Grand Residences

Sengkang Grand Residences is a 99-year leasehold development consisting of 680 units situated at Sengkang Central / Compassvale Bow in District 19. The integrated development consists of Sengkang Grand Residences and Sengkang Grand Mall, is scheduled to be completed in the first half of year 2022. The project is developed by Siena Residential Development Pte Ltd and Siena Trustee Pte Ltd, a subsidiary of CapitaLand and City Developments Limited (CDL). Sengkang Grand Residences comes with unique attributes that proves to be huge potential. The development serves as Sengkang Central and Buangkok iconic landmark with the convenience of integrated amenities and recreational facilities such as hawker centre, childcare centre and civic plaza which forms a vibrant community that will attract many potential home buyers especially first-time home buyers and upgraders. The development blends distinctive architecture feature with lush landscaping and community programming. Meanwhile, residents get to enjoy seamless and sheltered connectivity to the MRT station and the future bus interchange. Amidst the bustling lifestyle, residents of Sengkang Grand can relish in sports and recreational activities utilizing the facilities provided such as a 50m lap pool, parkour gym, treetop walk, five senses garden, and trampoline thrill or go to the nearby Sengkang Sports and Recreation Centre which has sports facilities, community club and swimming pools. As for nature lovers, the Sengkang Riverside Park is an ideal location to enjoy jogging or cycling round the scenic North Easter Riverine Loop. Sengkang Grand Residences is situated next to the Buangkok MRT station and Sengkang MRT station. There is an upcoming Cross-Island Line where the interchange will be at Hougang MRT station, one MRT station away from Buangkok MRT station. There are several bus feeders services available within the vicinity, with an expectation that there will be significantly more bus services once the development is completed. The residence is also easily accessible via major expressways such as KPE, Seletar Expressway and Central Expressway which make connectivity to the Central Business District easy. Teck Ee SeafoodChicken Up BuangkokSakae Sushi (Compass One) Punggol Primary SchoolMontfort Junior SchoolNan Chiau Primary SchoolCHIJ St Joseph’s ConventNorth Vista Primary School Healthway Medical (Compassvale)Healthway Medical (Rivervale)Mutual Health Care Medical ClinicMy Family Clinic (Rivervale Mall) Sheng ShiongHuogang Green Shopping MallHuogang MallHuogang PlazaCompass PointRivervale Mall There is a total of 680 residential units in Sengkang Grand Residences, with unit size ranging from 474 to 1,324 square feet. Unit layouts available range from 1 Bedroom + Study unit to 4 Bedroom Premium + Flexi units. All units are spread across 9 residential towers. Each unit is well equipped with quality fixtures and branded appliances furnishings while also deploying the latest smart home technology.Project Name: Sengkang Grand ResidencesType: Mixed development of residential and commercial spaceDistrict: 19Configuration: 680 residential unitsSite area: 401,008.4 square feet Unit types for Sengkang Grand Residences:1 bedroom + Study (474 – 506 square feet)2 bedrooms (624 – 678 square feet)2 bedrooms + Study (624 square feet)2 bedrooms premium + Study (732 – 764 square feet)3 bedrooms (936 – 947 square feet)3 bedrooms premium (1,023 – 1,055 square feet)3 bedrooms premium + Flexi (1,012 square feet)4 bedrooms premium + Flexi (1,313 – 1,324 square feet) The following developments are in the same neighbourhood as Sengkang Grand Residences:The Florence ResidencesAffinity At SerangoonRiverfront ResidencesLa FiestaKingsford WaterbaySengkang Grand Residences
View project details