Seahill
119 West Coast Crescent
S$ 950,000
Starting From1
Bed
1
Bath
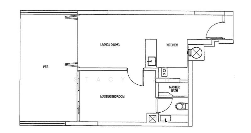
764
sqft (floor)
S$ 1,243
psf (floor)
About this property
Chic spacious studio with direct pool access and amazing sunset view
- Nestled on West Coast Crescent, this chic studio offers 764 sqft of serene living.
- Enjoy direct pool access from your own balcony, perfect for a refreshing dip.
- Experience tranquility in a quiet environment with unblocked views and breathtaking sunset vistas.
- No afternoon sun ensures a cool, comfortable home.
Nearby Amenities:
- Schools: National University of Singapore, Anglo-Chinese School (Independent)
- Hawker Center: Clementi West St 2 Blk 726
- Shopping: West Coast Plaza
High rental yield - tenanted at $3,550 till June 2027.
Discover the lifestyle with this unique home.
Amenities
Air conditioner
Balcony
Bicycle parking
Covered car parking
Common facilities
24 hours security
Basement car park
Drop off point
Gymnasium room
Affordability
Tell us your monthly income and expenses to see if this home fits your budget.
Seahill

SeaHillLocated in the up and coming West Coast district, SeaHill offers the best of 4 different worlds, in one attractive package. As well as SOHO, and condominium units, SeaHill also has separate blocks housing villa style triplex townhouses that give residents direct access to the swimming pool. Though there is no MRT in easy walking distance, SeaHill has access to local bus routes, there is a free shuttle bus that goes to both MRT stations, and the development is in easy reach of the AYE and several arterial roads. As well as its close proximity to the coast, SeaHill nestles between Clementi Woods Park and West Coast Park.Far East Organization is the largest property developer in Singapore and have developed over 500 properties in Singapore, especially in the Orchard Road area. It is the only developer in the world to have won eight FIABCI Prix d’Excellence Awards, which is considered the highest honour in international real estate.SeaHill – Unique Selling PointsWith the amount of investment and development being ploughed into the area, the West Coast is tipped to become as popular as the East Coast, with the building of the Waterfront City complex an example of things to come. SeaHill provides 3 (4 if you include the serviced apartments) distinctly different options, meaning there really should be something for everyone. The SOHO and condo units benefit from views of the sea and/or the surrounding parks. The triplex townhouses resemble villas, and afford residents direct access to the swimming pool. Due to the developer purchasing the land prior to new legislation, foreigners are able to purchase the townhouse units at SeaHill without LDAU approval, something they are no longer normally allowed to do.SeaHill – AccessibilityThe nearest MRT stations to SeaHill are Clementi and Haw Par Villa, but in reality neither are in realistic walking distance. There is talk about extending the Jurong Region MRT line via a West Coast Extension in just this area however, so if that does go ahead, it would very much benefit future residents of SeaHill. There are bus routes that serve the area, with the 175 and 176 stopping outside the side entrance into SeaHill. A free shuttle bus runs from the SeaHill development to both Haw Par Villa and Clementi MRT stations.SeaHill - Amenities & AttractionsDining near SeaHill:Al Amaan RestaurantRong Liang RestaurantCrystal Jade KitchenRangooliSakuraShopping near SeaHill:West Coast PlazaDepot HeightsVivoCitySchools and Education near SeaHill:Kent Ridge Secondary SchoolClementi PrimaryPei Tong PrimaryClementi Woods SecondaryTanglin SecondaryJapanese Secondary SchoolUnited World College South East AsiaNUSNgee Ann PolytechnicSeaHill - Project informationSeaHill comprises of 4 separate blocks, each dedicated to a different type of unit. Tower one and two, are home to the condominium and SOHO units respectively. These both have their own sky pools. The remaining 2 blocks, are where the townhouses are, separated by a plunge pool. There is also a 50 metre lap pool for all SeaHill residents, as well as an aqua gym, sea mist spa pool, outdoor fitness area and children’s playground. Townhouses are triplex units with direct access to the pool. There is also an additional block that is purely for serviced apartments.Project Name: SeaHillAddress: 119 West Coast Crescent 126777Type: ResidentialSite area: Approx. 136,301 sqftTenure: 99-years leaseholdDistrict: 5Configuration: 338 residential (SOHO, Condo, Townhouse) and 1 commercialParking lots: Condo & SOHO, 320 lotsTownhouses: 2 lots per unitExpected TOP: 2nd quarter 2016SeaHill - Historical DataAll SeaHill’s condominium units were sold relatively quickly, leaving only the townhouses. Regarding the townhouses, the first four that sold went for between $4.6M and $4.8M, but it is likely they were part of an early bird discount. The median value for the units (in the spring of 2016) $1,371psf for the 1 bed units, $1,472 for the 2 beds, $1,389 for 3 bedroom units, $1,511 for the 4 bedders and $1,342 for the townhouses (with the caveat that the townhouses were very likely part of a special deal).SeaHill - Related ProjectsThe following projects are by the same developer as SeaHill:Greenwood MewsAlanaRivertrees ResidencesThe SeawindBijouSeaHill - Nearby ProjectsThe following developments are in the same neighbourhood as SeaHill:The VisionBlue HorizonThe Sorrento
View project details























































