Piccadilly Grand
Northumberland Road
S$ 1,800,000
Negotiable2
Beds
2
Baths
646
sqft
S$ 2,786
psf
380 m (5 mins) from NE8 Farrer Park MRT
700 m (8 mins) from NE7/DT12 Little India MRT
About this property
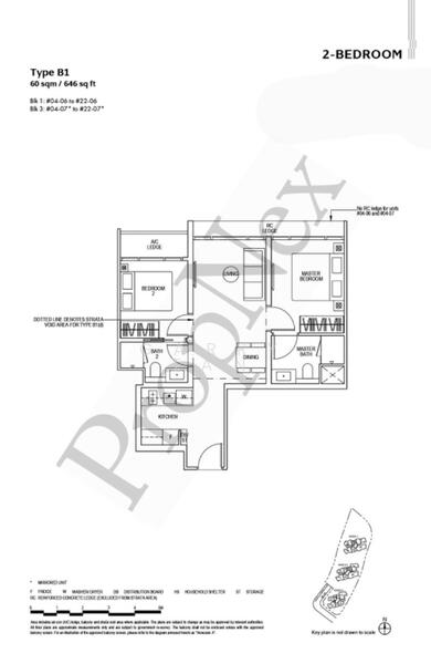
Piccadilly Grand 2br2bath
646sqft 2 Bedrooms
Maintenance Fee: $403/month
Asking $1,800,000 negotiable
Escape the hustle without sacrificing the convenience in this beautifully appointed high-floor home. Designed for modern living, this unit offers a perfect blend of comfort, style, and stunning views.
Key Highlights:
· Spacious Master Bedroom: A true retreat that comfortably fits a king-sized bed. Wake up to a refreshing open pocket view of the city and let the natural light flood in.
· Prime Location: Situated on a high floor, the unit is directly facing the development's facilities, offering both a lively outlook and incredible convenience.
· Smart Layout: The well-designed kitchen is neatly tucked into the corner, maximising living space while providing a functional and discreet area for meal preparation.
· Unbeatable Convenience: Enjoy the ultimate lifestyle where the swimming pool, gym, and other amenities are just a glance away from your window.
Amenities
Air conditioner
Air-conditioning
Barbeque pavilion
Barbeque pits
Common facilities
24 hours security
Car park
Spa pool
Swimming pool
Affordability
Tell us your monthly income and expenses to see if this home fits your budget.
Piccadilly Grand

Piccadilly Grand is a 99-year leasehold mixed development by established developers City Developments Limited (CDL) and MCL Land. The development is located in the Farrer Park area in District 8. The Farrer Park site was awarded to CDL and MCL Land in a government land sales bid for $445.9 million, which translates to an average cost price of $1,129 per square foot (psf) per plot ratio. The 407-unit 23-storey residential development is set to be completed in August 2026. Piccadilly Grand is situated in Farrer Park and enjoys a great city fringe location. It is located away from the hustle and bustle of city living but yet stays close enough to make travelling to and from the city centre very convenient. The neighbourhood that Piccadilly Grand is located in comes with an abundance of amenities, from hawker centres to shopping malls to schools. Piccadilly Grand is also located close to two major developments, according to the URA Master Plan. The up and coming healthcare city in Novena and redevelopment along the Kallang River will create positive knock-on effects for those planning to live at Piccadilly Grand. All of these for a starting price from $1,300+ psf onwards seem like a great deal not to be missed. Piccadilly Grand is in the middle of two MRT stations, namely Farrer Park MRT (NE8) and Little India MRT (DT12, NE7) stations with Farrer Park MRT station being the closer of the two. Little India MRT station is also not too far away, just 600m from Piccadilly Grand. For those who drive, the development is a short drive away from the Central Expressway (CTE) and Dunearn Road. From the CTE, you can get access to the Pan-Island Expressway (PIE). The facilities at Piccadilly Grand are split into four zones: Botanical Zone, Tranquillity Zone, Vitality Zone, and Social Zone. At the Botanical Zone, you can find relaxation facilities like Botanical Spa Pool and Secret Garden. The Tranquillity Zone comprises of Tranquillity Spa, Tranquillity Clubhouse, including a Co-Work Lounge and Wellness Studio. The Vitality Zone is where the swimming pool (Vitality Pool) is located while the Social Zone is fitted with facilities for gathering such as Social Clubhouse and Family Pool. As a mixed development, residents at Piccadilly Grand not only have access to condo facilities, but they also have easy access to the stores at the foot of the development. Piccadilly Grand is a three-block condo sitting on a site area of 94,000 sq ft, roughly the size of two football fields. The plot ratio of Piccadilly Grand stands at 4.2, which allows the developers to build a high-rise residential project that is 23 storeys tall to yield 407 units. Types of unit available in Piccadilly Grand: 1-Bedroom, 1-Bedroom + Study - 484 sq ft (85 Units) 2-Bedroom, 2-Bedroom + Study - 646 to 678 sq ft (120 Units) 3-Bedroom, 3-Bedroom + Flexi - 883 to 1,076 sq ft (101 Units) 4-Bedroom + Flexi, 4-Bedroom Dual Key - 1,378 to 1,410 sq ft (61 Units) 5-Bedroom, 5-Bedroom Premium - 1,582 to 1,679 sq ft (40 Units) Piccadilly Grand is just down the street from Farrer Park Primary School. Within a 1km radius, you can also find popular primary schools like St Margaret’s Primary School, Stamford Primary School, and St Joseph’s Institution Junior. Anglo-Chinese School (Junior) is slightly further from Piccadilly Grand at 1.2km distance. Other schools within a 2km radius from Piccadilly Grand include Hong Wen School, Towner Road Primary School, Northlight School, Rangoon Road Secondary School, Bendemeer Primary School, and Bendemeer Secondary School. Its location in Farrer Park puts Piccadilly Grand in proximity to the hospitals in Singapore. Raffles Hospital, Farrer Park Hospital, Kwong Wai Shiu Hospital, KK Women’s and Children’s Hospital, Mount Elizabeth Hospital, Mount Elizabeth Novena Hospital, and Tan Tock Seng Hospital are less than 2km from Piccadilly Grand. In addition, the upcoming Health City Novena is also going to be just 1.7km from Piccadilly Grand. Out of the hospitals, Farrer Park Hospital is the closest. It is located right next to Farrer Park MRT station. City Square Mall, Jalan Besar Plaza, Mustafa Centre, Tekka Place are some of the shopping malls that you can find in the vicinity of Piccadilly Grand. All of these shopping places are within a 10-minute walk from Piccadilly Grand. Piccadilly Grand is also two MRT stations away from Bugis where you can find more shopping destinations like Bugis Junction, Bugis+, and Bugis Street. Besides the malls, there are also lots of shopping options at the shophouses around Farrer Park, Little India, and Jalan Besar on popular streets like Serangoon Road and Jalan Besar. Piccadilly Grand is located near Little India, an area that is famous for its authentic and delicious Indian cuisine. Shivam Restaurant, Gandhi Restaurant, Muthu’s Curry, and The Banana Leaf Apollo are all just a short walking distance away from Piccadilly Grand. You can also find many popular supper places like Swee Choon Tim Sum and ABC Nasi Kandar Restaurant in the area. For affordable and sumptuous hawker fare, you can find them at the neighbouring hawker centres. From Pek Kio Market and Food Centre to Tekka Market and Food Centre to Berseh Food Centre, there is no shortfall of food choices for residents at Piccadilly Grand. Its location at Farrer Park puts it in proximity to the upcoming integrated community of healthcare, medical education and translational research at the new Health City Novena. Health City Novena will bring the concept of Total Care to life with the expansion of Tan Tock Seng Hospital and other medical and medical education facilities. Not only will this bring more healthcare jobs to the region, but it will also create openings for complementary jobs for the new healthcare city. Piccadilly Grand is a joint development between CDL and MCL Land. MCL Land is a subsidiary of Jardine Matheson Group under Hong Kong Land Holdings while CDL is a leading global real estate developer with a presence in Singapore and overseas markets like the United Kingdom. Both developers combine to bring more than 100 years of real estate development experience to Piccadilly Grand. They have a strong track record of residential projects in Singapore, having delivered award-winning projects like Tree House (FIABCI World Prix d'Excellence Awards 2015 World Gold Winner), H2O Residences (FIABCI World Prix d’Excellence Awards 2017 World Gold Winner in the Sustainable Development category), Quinn (Best Residential High-Rise Development Apartment and Condominium at the Asia Pacific Property Awards 2021), and Gramercy Park (FIABCI Singapore Property Awards 2017 Residential Mid Rise Category Winner). Piccadilly Grand’s new launch is in April 2022. Piccadilly Grand is expected to be completed and obtain its Temporary Occupation Permit (TOP) in August 2026. The Piccadilly Grand showflat is located slightly off-site. However, it is very near the development site. In fact, it is right across the project development, just behind Farrer Park Hospital (Gloucester Road). Piccadilly Grand’s selling price is expected to start from $1,372 psf onwards. To find out the latest Piccadilly Grand selling price, you can check out the available condo units on PropertyGuru.
View project details









